Evolis, votre partenaire en immobilier d’entreprise! Que vous soyez une entreprise, utilisateur de locaux professionnels, investisseur, ou propriétaire, Evolis met à votre service son expertise ...
En savoir plus

2 016 m²
HT HC
Location activité/entrepôt - 2016 m²
Chilly-Mazarin (91380)
Dernière mise à jour : Il y a 29 jours
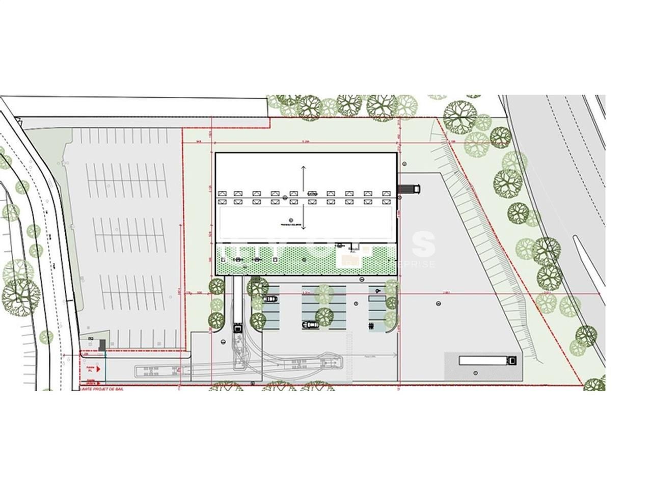
Bâtiment neuf rare sur le secteur
A proximité immédiate de l'autoroute A6 et de la nationale 20, au sein du parc d'activité de la vigne aux loups à Chilly Mazarin, EVOLIS vous propose un bâtiment à construire développant une surface de 1908m² à la location sur un terrain de 7565m². Ce bâtiment certifié RE 2020 pour les bureaux et RT 2012 pour la partie activité offrira un cadre de travail agréable pour toute société industrielle souhaitant s'implanter sur le secteur.
Régime Fiscal : T.V.A.
Dépôt de garantie : 3 mois de loyer HT HC
Honoraires : 15% HT du loyer annuel HT HC à la charge du preneur
Taxe Bureau : 11,87 €/m²/an
Prestations :
Accessibilité:
Tram Chilly-Mazarin (T12)
SNCF Chilly-Mazarin (Gare SNCF)
Autoroute A6, A126, A10
Route N20
Bus 4501, 9115, 9118
RER C Longjumeau
Les informations sur les risques auxquels ce bien est exposé sont disponibles sur le site Géorisques : www.georisques.gouv.fr
A proximité immédiate de l'autoroute A6 et de la nationale 20, au sein du parc d'activité de la vigne aux loups à Chilly Mazarin, EVOLIS vous propose un bâtiment à construire développant une surface de 1908m² à la location sur un terrain de 7565m². Ce bâtiment certifié RE 2020 pour les bureaux et RT 2012 pour la partie activité offrira un cadre de travail agréable pour toute société industrielle souhaitant s'implanter sur le secteur.
| Étage | Type | Surfaces | Dispo | Loyer | Charges | Type de bailRév. annuelle |
|---|---|---|---|---|---|---|
| 1 | Bureaux | 176,81 | ILAT Indice des Loyers des Activités Tertiaires | |||
| RDC | Activités | 1609,2 | ILAT Indice des Loyers des Activités Tertiaires | |||
| RDC | Bureaux | 229,85 | ILAT Indice des Loyers des Activités Tertiaires | |||
| Total Cellule | Activités | 2015,86 | 15 mois après accord | 136,41 m²/an HT HC | Bail commercial 3-6-9 ansILAT Indice des Loyers des Activités Tertiaires |
Régime Fiscal : T.V.A.
Dépôt de garantie : 3 mois de loyer HT HC
Honoraires : 15% HT du loyer annuel HT HC à la charge du preneur
Taxe Bureau : 11,87 €/m²/an
Prestations :
- 2.760 m² de voiries : 10 PL/jour et 200 VUL/jour.
- Bardage double peau
- 1 quai poids lourds H 1,2m avec niveleur.
- 2 quais de plein pied pour véhicules utilitaires.
- 3 bornes de recharge électrique.
- Dalle quartzée entrepôt 3T/m².
- VMC double flux, pompe à chaleur, double vitrage.
- Panneaux photovoltaïques en toiture prod < 100 KwC.
- Autoconsommation d'électricité au bénéfice de l'exploitant.
- Bassin de rétention des EP enterré.
- Tarif jaune 250 KVA
- Pas d'activité soumise à ICPE ni d'ERP prévus aux Travaux
- Immeuble indépendant
- Surface RDC : 1839,05 m²
Accessibilité:
Tram Chilly-Mazarin (T12)
SNCF Chilly-Mazarin (Gare SNCF)
Autoroute A6, A126, A10
Route N20
Bus 4501, 9115, 9118
RER C Longjumeau
Les informations sur les risques auxquels ce bien est exposé sont disponibles sur le site Géorisques : www.georisques.gouv.fr
Voir plus
Afficher les consommations énergétiques
Localisation et transport aux alentours
Favoris
Exporter
Appeler
Contacter
Signaler cette annonce
