Située dans le 3ème arrondissement de Lyon au 15 rue des Cuirassiers, notre agence compte environ 35 collaborateurs expérimentés pour vous accompagner tout au long de la mise en œuvre de votre proj ...
En savoir plus

Location activité/entrepôt - 666 m²
La zone industrielle Mi Plaine est implantée sur les communes de Chassieu, Genas et une partie de Saint Priest.
Elle compte près de 1200 entreprises, ses 22000 emplois, la ZI Mi Plaine est la plus grosse zone d’activité d’Europe.
Bénéficiant d’une situation géographique idéale et stratégique, avec la proximité Urbain Est - BUE …), des aéroports (Aérodrome de Bron et aéroport de Lyon Saint Exupéry et de transports en commun (bus), la ZI Chassieu Genas est un acteur majeur de l’Est de l’agglomération lyonnaise.
De nombreuses entreprises bénéficient d'une belle visibilité le long des axes autoroutiers A42/A43.
C’est sur ce secteur que l’on trouve la plus forte concentration d’entreprises de l’agglomération lyonnaise avec identité industrielle forte.
Disponibilité: ImmédiateHonoraires: 15% HT du loyer HT/HC. à la signature du bail
| Fiche technique du bien | |
|---|---|
| Bus | Ligne TCL 76 et ZI5 |
| Desserte routière | E15 / A43 / D306 / A46 / A7 / A42 |
| Aéroport | Lyon Saint Exupery à 14 min |
| Gare | Part Dieu à 26 min |
| Etat de l'immeuble | Rénové |
| Etat des locaux | Rénové |
| Etat du terrain | Goudronné Terrain nu clôturé et fermé par un portail manuel |
| Parking(s) | 4 Places |
| Immeuble copropriété | Oui |
| Type chauffage | Individuel |
| Source chauffage | Electrique Bureaux |
| Charpente | Métallique |
| Sols du bâtiment | Béton |
| Hauteur libre | 5,00 mètre(s) |
| Hauteur sous poutre | 4,30 mètre(s) |
| Hauteur sous porte plain-pied | 3,00 mètre(s) |
| Porte(s) d'accès plain-pied | 1 |
| Aire de manoeuvre | Oui |
| Accessibilité type véhicules | Camionnettes |
| Eclairage intérieur | Néon |
| Eclairage naturel | Skydomes |
| Locaux sociaux | Sanitaires |
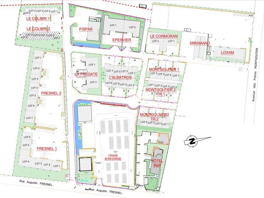
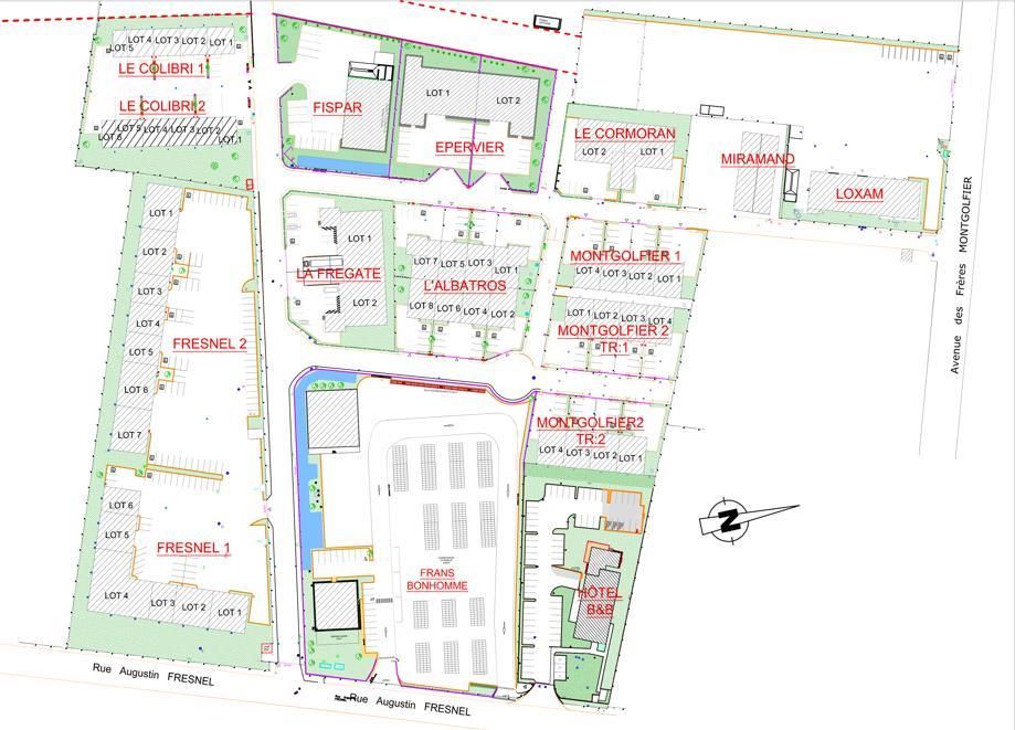
Surfaces divisibles : 8
| Surface | LoyerHT/HC/m²/an | Étage / Batiment | Infos complémentaires |
| 254 m² | N.C | RDC | MONTGOLFIER 1 & 2 |
| 50 m² | N.C | RDC | MONTGOLFIER 1 & 2 |
| 100 m² | N.C | 0 | Colibri 2 - 3 |
| 20 m² | N.C | 0 | Colibri 2 - 3 |
| 142 m² | N.C | RDC | Albatros- Lot 8 |
| 25 m² | N.C | R+1 | Albatros- Lot 8 |
| 25 m² | N.C | R+1 | Albatros- Lot 8 |
| 50 m² | N.C | R+1 | MONTGOLFIER 1 & 2 |










