Conseil en immobilier d'entreprise, Cushman & Wakefield est un acteur incontournable au rayonnement international. Cushman & Wakefield offre des solutions dans toutes les étapes que comporte un p ...
En savoir plus



467 m² divisible dès 205 m²
HT HC
Location activité/entrepôt - 467 m²
Chassieu (69680)
Dernière mise à jour : Il y a 5 mois
A LOUER - LOCAL D'ACTIVITE - CHASSIEU 69680- SECTEUR MI PLAINE.
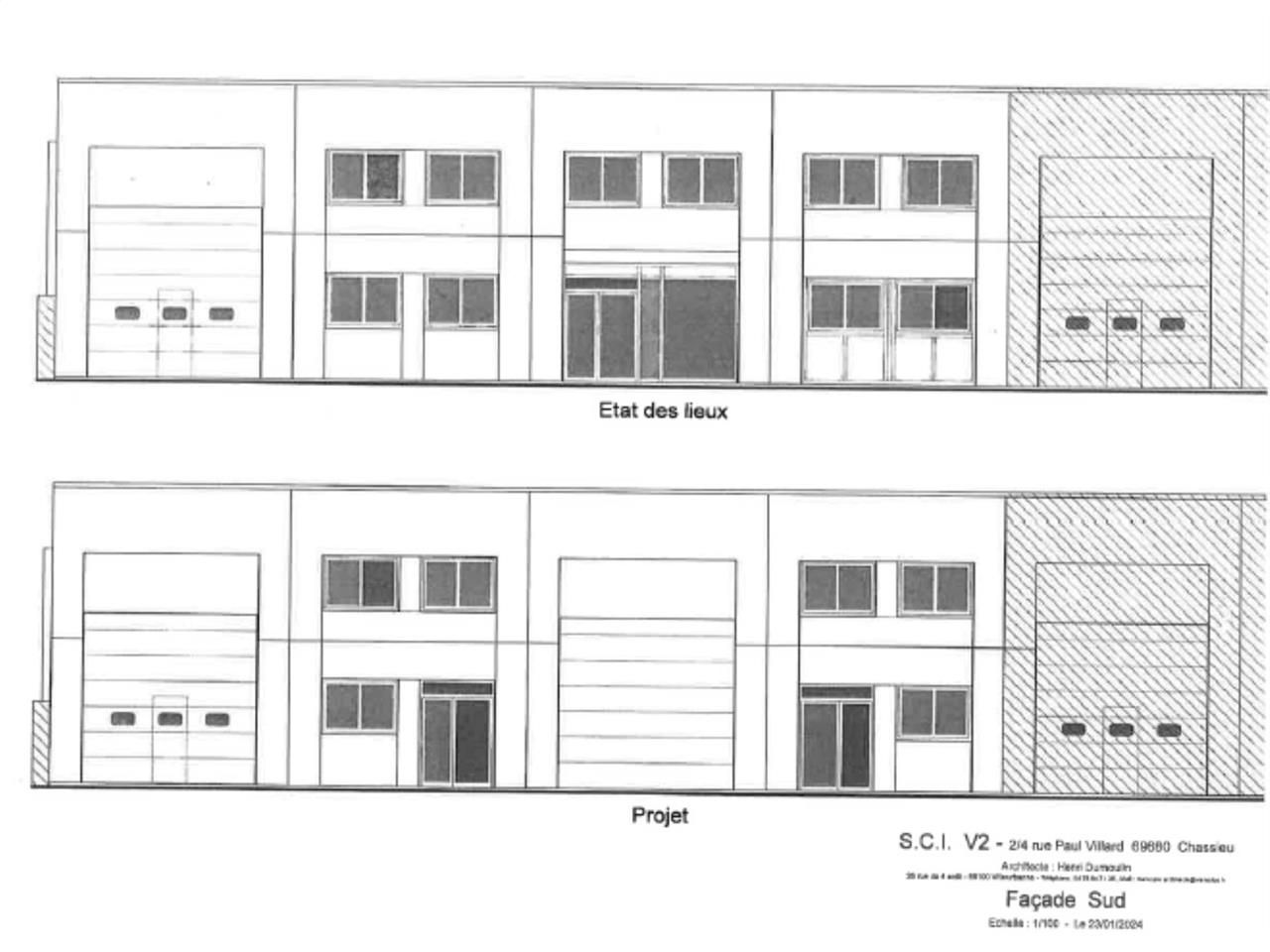
Découvrez ce local d'activités à la location situé dans le dynamique Parc d'Activité du Golf à Chassieu, au coeur de la région lyonnaise. Ce bâtiment à louer offre une surface totale de 467 m², divisible à partir de 205 m², idéal pour répondre à vos besoins spécifiques.
L'entrepôt industriel à louer bénéficie d'une ossature en béton et d'une couverture en bac acier, garantissant robustesse et durabilité. Les murs périmétriques en béton assurent une isolation optimale, tandis que l'éclairage Full LED et le chauffage électrique apportent confort et efficacité énergétique. Les portes sectionnelles de plain-pied facilitent l'accès et les manoeuvres, complétées par une aire de manoeuvre spacieuse et un parking VL avec portail automatique.
Situé à seulement 10 minutes de l'aéroport Saint Exupéry et à proximité des principaux axes routiers tels que la Rocade Est et le Boulevard périphérique, ce local industriel à la location offre une accessibilité exceptionnelle. Les transports en commun, notamment les bus, sont également facilement accessibles, renforçant la commodité de cet emplacement stratégique.
Les conditions financières sont attractives, avec un loyer à partir de 110,00 euros HT/HC/m²/an et des provisions pour charges de 2 240,00 euros HT/an. Le bail est de type 3-6-9 ans, avec un dépôt de garantie équivalent à trois mois de loyer HT/HC.
Ne manquez pas cette opportunité unique de louer des locaux industriels dans une zone en pleine expansion. Contactez dès maintenant l'agence CUSHMAN & WAKEFIELD LYON pour plus d'informations et pour organiser une visite.
Régime Fiscal : T.V.A.
Dépôt de garantie : 3 mois de loyer HT/HC
Paiement Loyer : Trimestriel
Honoraires : 15 % HT du loyer annuel HT/HC à la charge du preneur.
Information sur le Bail :
Lot 1 : Loyer 23 650,00 euros / an + TVA Foncier 2 140,00 euros / an + TVA TEOM 310,00 euros/ an Dépôt de garantie 5 912,50 euros Honoraires de rédaction 3 405 eurosTTC Lot 2 : Loyer 28 820,00 euros / an + TVA Foncier 2 610,00 euros / an + TVA TEOM 375,00 euros/ an Dépôt de garantie 7 205,00 euros Honoraires de rédaction 4 150,00 euros TTC
Prestations :
Accessibilité:
Aéroport Aéroport Saint Exupéry à 10 minutes
Bus Bus à proximité
Accès routier Réseau routier : Rocade Est et Boulevard périphérique
Les informations sur les risques auxquels ce bien est exposé sont disponibles sur le site Géorisques : www.georisques.gouv.fr
Découvrez ce local d'activités à la location situé dans le dynamique Parc d'Activité du Golf à Chassieu, au coeur de la région lyonnaise. Ce bâtiment à louer offre une surface totale de 467 m², divisible à partir de 205 m², idéal pour répondre à vos besoins spécifiques.
L'entrepôt industriel à louer bénéficie d'une ossature en béton et d'une couverture en bac acier, garantissant robustesse et durabilité. Les murs périmétriques en béton assurent une isolation optimale, tandis que l'éclairage Full LED et le chauffage électrique apportent confort et efficacité énergétique. Les portes sectionnelles de plain-pied facilitent l'accès et les manoeuvres, complétées par une aire de manoeuvre spacieuse et un parking VL avec portail automatique.
Situé à seulement 10 minutes de l'aéroport Saint Exupéry et à proximité des principaux axes routiers tels que la Rocade Est et le Boulevard périphérique, ce local industriel à la location offre une accessibilité exceptionnelle. Les transports en commun, notamment les bus, sont également facilement accessibles, renforçant la commodité de cet emplacement stratégique.
Les conditions financières sont attractives, avec un loyer à partir de 110,00 euros HT/HC/m²/an et des provisions pour charges de 2 240,00 euros HT/an. Le bail est de type 3-6-9 ans, avec un dépôt de garantie équivalent à trois mois de loyer HT/HC.
Ne manquez pas cette opportunité unique de louer des locaux industriels dans une zone en pleine expansion. Contactez dès maintenant l'agence CUSHMAN & WAKEFIELD LYON pour plus d'informations et pour organiser une visite.
| Étage | Type | Surfaces | Dispo | Loyer | Charges | Type de bailRév. annuelle |
|---|---|---|---|---|---|---|
| R+1 | Bureaux | 27 | Sur l'indice ILAT | |||
| RdC | Activités | 140 | Sur l'indice ILAT | |||
| RdC | Bureaux | 38 | Sur l'indice ILAT | |||
| Total Cellule Lot 1 | Activités | 205 | 115,37 HT/HC/m²/an | 1900 HT/an | 3-6-9 ansSur l'indice ILAT | |
| R+1 | Bureaux | 29 | Sur l'indice ILAT | |||
| RdC | Activités | 193 | Sur l'indice ILAT | |||
| RdC | Bureaux | 40 | Sur l'indice ILAT | |||
| Total Cellule Lot 2 | Activités | 262 | 110 HT/HC/m²/an | 2240 HT/an | 3-6-9 ansSur l'indice ILAT |
Régime Fiscal : T.V.A.
Dépôt de garantie : 3 mois de loyer HT/HC
Paiement Loyer : Trimestriel
Honoraires : 15 % HT du loyer annuel HT/HC à la charge du preneur.
Information sur le Bail :
Lot 1 : Loyer 23 650,00 euros / an + TVA Foncier 2 140,00 euros / an + TVA TEOM 310,00 euros/ an Dépôt de garantie 5 912,50 euros Honoraires de rédaction 3 405 eurosTTC Lot 2 : Loyer 28 820,00 euros / an + TVA Foncier 2 610,00 euros / an + TVA TEOM 375,00 euros/ an Dépôt de garantie 7 205,00 euros Honoraires de rédaction 4 150,00 euros TTC
Prestations :
- Nous consulter
- Surface RDC : 411 m²
- Accès bâtiment : Accès VL
Aire de Manoeuvre
Parking VL
Portail automatique - Equipements entrepôts : Portes sectionnelles de plain pied
Dalle industrielle
Eclairage Full LED
Portes sectionnelles - Chauffage : Electrique
- Ossature : Béton
- Murs périmétriques : Béton
- Couverture : Bac acier
Accessibilité:
Aéroport Aéroport Saint Exupéry à 10 minutes
Bus Bus à proximité
Accès routier Réseau routier : Rocade Est et Boulevard périphérique
Les informations sur les risques auxquels ce bien est exposé sont disponibles sur le site Géorisques : www.georisques.gouv.fr
Voir plus
Afficher les consommations énergétiques
Localisation et transport aux alentours
Favoris
Exporter
Appeler
Contacter
Signaler cette annonce










