MALSH Realty accompagne les entreprises dans leurs projets immobiliers, qu’il s’agisse de locaux d’activités, de bureaux, de commerces, d’entrepôts ou de terrains. L’agence intervient aussi bien au ...
En savoir plus

2 542 m² divisible dès 192 m²
HT HC
Location activité/entrepôt - 2542 m²
Chassieu (69680)
Dernière mise à jour : Il y a 9 jours
Locaux d'activités à CHASSIEU - A LOUER - 2542 m² divisibles à partir de 192 m²
Dans un parc d'activités de qualité, clos et sécurisé, nous vous proposons à la location, des locaux d'activités d'une surface totale d'environ 2 542 m² divisibles en plusieurs lots à partir de 192 m². Ces locaux bénéficient de places de parking privatives.
Idéal pour une activité de stockage ou négoce, PME PMI, artisan.
Location Locaux d'activités - Chassieu (69680) - 2 542 m² divisibles à partir de 192 m²
Régime Fiscal : T.V.A. (20%)
Dépôt de garantie : 3 mois de loyer HT/HC
Honoraires : 20 % HT du loyer annuel HT à la charge du preneur, payables à la signature du bail
Prestations :
Accessibilité:
Route A proximité immédiate de la Rocade Est (A46). Raccordement rapide à l'A43
Bus Bus TCL lignes 76, 128 et Zi5 à proximité immédiate
Les informations sur les risques auxquels ce bien est exposé sont disponibles sur le site Géorisques : www.georisques.gouv.fr
Dans un parc d'activités de qualité, clos et sécurisé, nous vous proposons à la location, des locaux d'activités d'une surface totale d'environ 2 542 m² divisibles en plusieurs lots à partir de 192 m². Ces locaux bénéficient de places de parking privatives.
Idéal pour une activité de stockage ou négoce, PME PMI, artisan.
Location Locaux d'activités - Chassieu (69680) - 2 542 m² divisibles à partir de 192 m²
| Étage | Type | Surfaces | Dispo | Loyer | Charges | Type de bailRév. annuelle |
|---|---|---|---|---|---|---|
| Activités | 220 | ILAT Indice des Loyers des Activités Tertiaires | ||||
| Bureaux | 70 | ILAT Indice des Loyers des Activités Tertiaires | ||||
| Parkings | ILAT Indice des Loyers des Activités Tertiaires | |||||
| Total Cellule 1 | Activités | 290 | Immédiate | 120 HT/HC/m²/an | commercial 3-6-9 ansILAT Indice des Loyers des Activités Tertiaires | |
| Activités | 220 | ILAT Indice des Loyers des Activités Tertiaires | ||||
| Bureaux | 70 | ILAT Indice des Loyers des Activités Tertiaires | ||||
| Parkings | ILAT Indice des Loyers des Activités Tertiaires | |||||
| Total Cellule 2 | Activités | 290 | Immédiate | 120 HT/HC/m²/an | commercial 3-6-9 ansILAT Indice des Loyers des Activités Tertiaires | |
| Activités | 220 | ILAT Indice des Loyers des Activités Tertiaires | ||||
| Bureaux | 70 | ILAT Indice des Loyers des Activités Tertiaires | ||||
| Parkings | ILAT Indice des Loyers des Activités Tertiaires | |||||
| Total Cellule 3 | Activités | 290 | Immédiate | 120 HT/HC/m²/an | commercial 3-6-9 ansILAT Indice des Loyers des Activités Tertiaires | |
| Activités | 220 | ILAT Indice des Loyers des Activités Tertiaires | ||||
| Bureaux | 70 | ILAT Indice des Loyers des Activités Tertiaires | ||||
| Parkings | ILAT Indice des Loyers des Activités Tertiaires | |||||
| Total Cellule 4 | Activités | 290 | Immédiate | 120 HT/HC/m²/an | commercial 3-6-9 ansILAT Indice des Loyers des Activités Tertiaires | |
| Activités | 220 | ILAT Indice des Loyers des Activités Tertiaires | ||||
| Bureaux | 70 | ILAT Indice des Loyers des Activités Tertiaires | ||||
| Parkings | ILAT Indice des Loyers des Activités Tertiaires | |||||
| Total Cellule 1 | Activités | 290 | Immédiate | 120 HT/HC/m²/an | commercial 3-6-9 ansILAT Indice des Loyers des Activités Tertiaires | |
| Activités | 220 | ILAT Indice des Loyers des Activités Tertiaires | ||||
| Bureaux | 70 | ILAT Indice des Loyers des Activités Tertiaires | ||||
| Parkings | ILAT Indice des Loyers des Activités Tertiaires | |||||
| Total Cellule 2 | Activités | 290 | Immédiate | 120 HT/HC/m²/an | commercial 3-6-9 ansILAT Indice des Loyers des Activités Tertiaires | |
| Activités | 300 | ILAT Indice des Loyers des Activités Tertiaires | ||||
| Bureaux | 70 | ILAT Indice des Loyers des Activités Tertiaires | ||||
| Parkings | ILAT Indice des Loyers des Activités Tertiaires | |||||
| Total Cellule 3 | Activités | 370 | Immédiate | 120 HT/HC/m²/an | commercial 3-6-9 ansILAT Indice des Loyers des Activités Tertiaires | |
| Activités | 120 | ILAT Indice des Loyers des Activités Tertiaires | ||||
| Bureaux | 120 | ILAT Indice des Loyers des Activités Tertiaires | ||||
| Parkings | ILAT Indice des Loyers des Activités Tertiaires | |||||
| Total Cellule 3 | Activités | 240 | Immédiate | 110 HT/HC/m²/an | commercial 3-6-9 ansILAT Indice des Loyers des Activités Tertiaires | |
| Terrain | 200 | ILAT Indice des Loyers des Activités Tertiaires | ||||
| R-1 | Mezzanine | 25 | ILAT Indice des Loyers des Activités Tertiaires | |||
| RDC | Activités | 142 | ILAT Indice des Loyers des Activités Tertiaires | |||
| RDC | Bureaux | 25 | ILAT Indice des Loyers des Activités Tertiaires | |||
| Total Cellule 8 | Activités | 192 | Immédiate | 114,58 HT/HC/m²/an | commercial 3-6-9 ansILAT Indice des Loyers des Activités Tertiaires |
Régime Fiscal : T.V.A. (20%)
Dépôt de garantie : 3 mois de loyer HT/HC
Honoraires : 20 % HT du loyer annuel HT à la charge du preneur, payables à la signature du bail
Prestations :
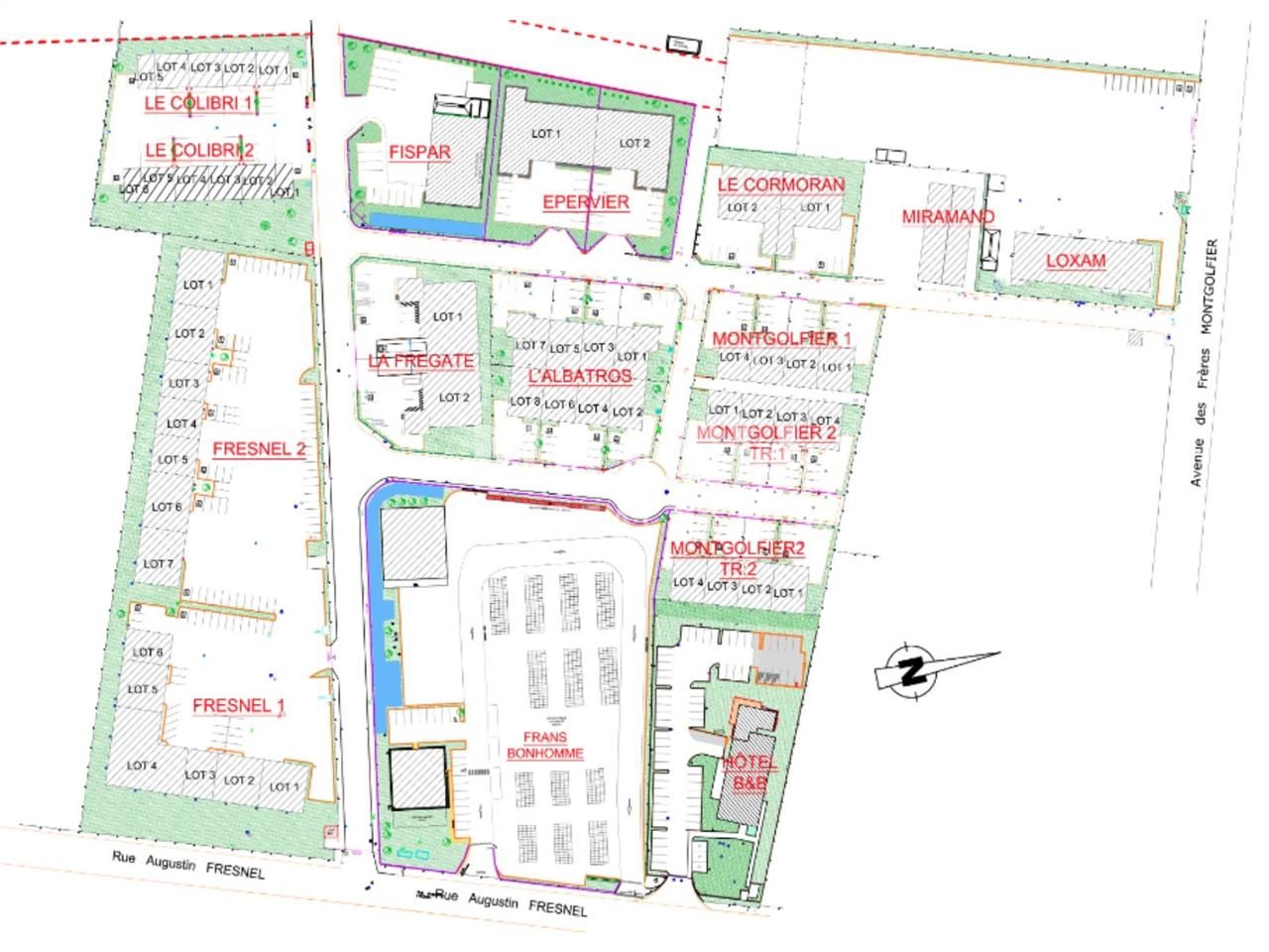
- Bâtiment FRESNEL 1 - A : (Neuf)
- Surface de 1160 m² divisible en 4 lots :
- Chaque lot comprend :
- 220 m² d'atelier
- 70 m² de bureaux et sanitaires
- 6 parkings privatifs
- Bâtiment FRESNEL 1 - B : (Neuf)
- Surface de 890 m² divisible en 3 lots :
- 2 lots de :
- 220 m² d'atelier
- 70 m² de bureaux et sanitaires
- 6 parkings privatifs
- 1 lot de :
- 300 m² d'atelier
- 70 m² de bureaux et sanitaires
- 7 parkings privatifs
- Portes sectionnelles motorisées
- Hauteur sous plafond : 6,60 m au gousset
- Dalle : résistance entre 2,5 et 3 T/m²
- Climatisation réversible et pré-équipement pour cuisine/SdB
- Pré-équipement pour bornes de recharge électrique (IRVE) sur chaque lot
- Bâtiment FRESNEL 2 - Lot n° 3 de 240 m² :
- 120 m² d'atelier
- 120 m² de bureaux et sanitaires
- 4 places de parking privatives
- Bâtiment L'ALBATROS - Lot n° 8 de 192 m² :
- 142 m² d'atelier
- 25 m² de bureaux et sanitaires RDC
- 25 m² de mezzanine R+1
- 200 m² de parking privatif
- Surface RDC : 25 m²
Accessibilité:
Route A proximité immédiate de la Rocade Est (A46). Raccordement rapide à l'A43
Bus Bus TCL lignes 76, 128 et Zi5 à proximité immédiate
Les informations sur les risques auxquels ce bien est exposé sont disponibles sur le site Géorisques : www.georisques.gouv.fr
3 Parkings ext.
Voir plus
Afficher les consommations énergétiques
Localisation et transport aux alentours
Favoris
Exporter
Appeler
Contacter
Signaler cette annonce
