A l’appui d’un réseau leader à l’international, I&L Solutions est une équipe de plus de 70 professionnels spécialisés en immobilier Logistique et Industriel au service des investisseurs, des propri ...
En savoir plus

1 500 m²
HT HC
Location activité/entrepôt - 1500 m²
Aubervilliers (93300)
Dernière mise à jour : Hier
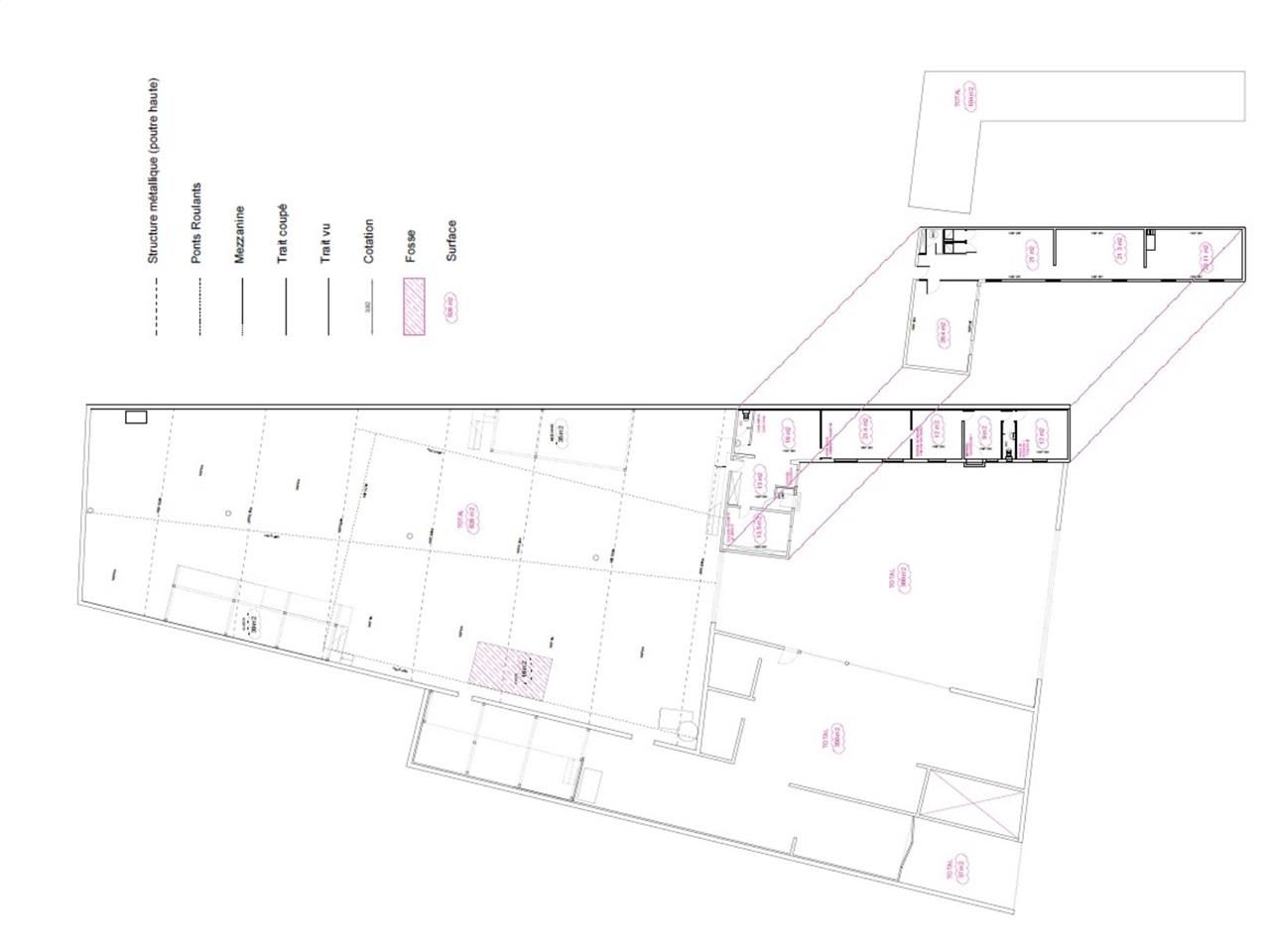
Rare sur le marché ! CBRE vous propose à louer un local d'activités situé sur la commune d'Aubervilliers dans le département de la Seine-Saint-Denis (93), à seulement 4 km de Paris, localisation idéale et à proximité immédiate de l'autoroute A86, sur la ligne B du RER d'Île-de-France. Ce local industriel dispose d'une cour indépendante et d'une hauteur sous plafond de 5,5 m. Accessibilité gros porteurs. Belle surface de 1500m² non divisibles. Location entrepôt idéal pour le développement de vos activités professionnelles. Bail commercial. Disponible immédiatement.
Si cet entrepôt/local d'activités à louer dans le 93 vous intéresse ou si vous souhaitez obtenir plus de renseignements, n'hésitez pas à me contacter aujourd'hui pour organiser une visite et bénéficier de toutes les informations nécessaires pour votreprojet immobilier.
En tant qu'expert en immobilier professionnel/industriel, je suis à votre disposition pour vous aider à trouver le bien adapté à vos activités professionnelles et à votre coeur de métier.
Impôt Foncier : 8000 €/an HT
Régime Fiscal : T.V.A.
Dépôt de garantie : 3 mois de loyer HT/HC
Prestations :
Accessibilité:
Bus PONT DU CHEMIN DE FER (170)
Transilien Stade-de-France Saint-Denis (D)
Metro Stade de France (L15 Horizon 2030)
RER La Plaine-Stade-de-France (B)
Autoroute A86
Les informations sur les risques auxquels ce bien est exposé sont disponibles sur le site Géorisques : www.georisques.gouv.fr
Si cet entrepôt/local d'activités à louer dans le 93 vous intéresse ou si vous souhaitez obtenir plus de renseignements, n'hésitez pas à me contacter aujourd'hui pour organiser une visite et bénéficier de toutes les informations nécessaires pour votreprojet immobilier.
En tant qu'expert en immobilier professionnel/industriel, je suis à votre disposition pour vous aider à trouver le bien adapté à vos activités professionnelles et à votre coeur de métier.
| Étage | Type | Surfaces | Dispo | Loyer | Charges | Type de bailRév. annuelle |
|---|---|---|---|---|---|---|
| RDC | Activités | 1300 | Immédiate | Indice ILAT | ||
| 1 | Bureaux | 200 | Immédiate | Indice ILAT |
Impôt Foncier : 8000 €/an HT
Régime Fiscal : T.V.A.
Dépôt de garantie : 3 mois de loyer HT/HC
Prestations :
- Cour privative de 300 m²
- Toiture en Shed
- Bureaux en R+1 attenant à l'entrepôt
- Mezzanine 100 m²
- Courant triphasé (tarif jaune)
- Immeuble indépendant
- Surface RDC : 1300 m²
- Surface terrain : 0
- Haut. libre max. ss poutre : 5,5 m
- Accès bâtiment :
. Gros porteurs - Equipements entrepôts : . Dalle béton haute résistance neuve sur 800 m²
- Chauffage : Gaz, Radiants
Accessibilité:
Bus PONT DU CHEMIN DE FER (170)
Transilien Stade-de-France Saint-Denis (D)
Metro Stade de France (L15 Horizon 2030)
RER La Plaine-Stade-de-France (B)
Autoroute A86
Les informations sur les risques auxquels ce bien est exposé sont disponibles sur le site Géorisques : www.georisques.gouv.fr
Voir plus
Afficher les consommations énergétiques
Favoris
Exporter
Appeler
Contacter
Signaler cette annonce
