Les consultants de Cushman & Wakefield Bordeaux vous donnent accès à plus de 700 offres situées sur Bordeaux et sa périphérie, ainsi qu’à une expertise du marché local, leur permettant de répondre ...
En savoir plus

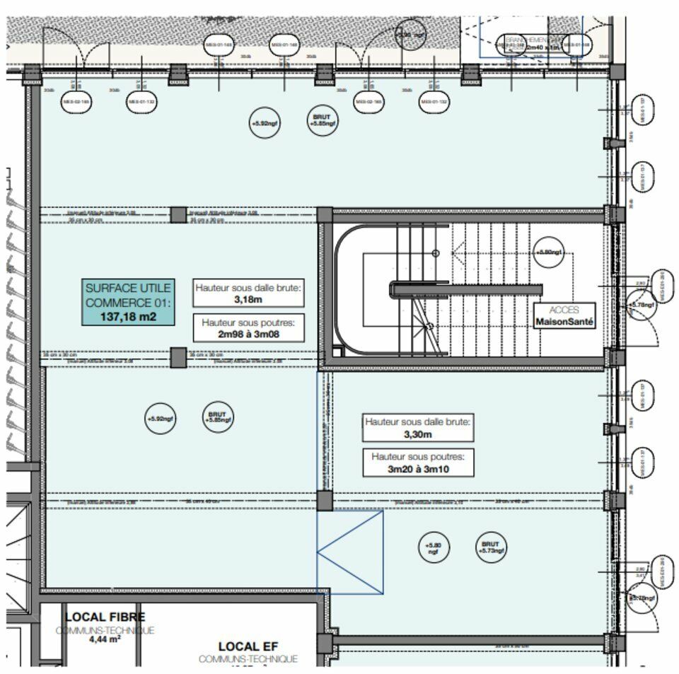
Location local commercial - 378 m²
BORDEAUX ARMAGNAC
Au sein du programme immobilier HEKA, qui s'inscrit au cœur de l'Opération d'Intérêt National Bordeaux Euratlantique :
Une surface commerciale de 136,86m² avec une possibilité d'extraction.
Livré brute de béton, fluides en attente avec menuiseries/vitrines posées, normes PMR.
Gros potentiel de clientèle tertiaire mais aussi résidentielle.
En rez-de-chaussée, au sein d'un pôle de santé de 3 900m², qui sera exploité pour partie par la filiale "Vista Santé" et qui accueillera notamment une crèche, ce qui permettra de pallier le manque d'offres du secteur et dynamisera l'ensemble du quartier.
Situé à quelques minutes de la gare TGV St Jean Belcier, le quartier Armagnac vient revitaliser le secteur de la gare et requalifier cette porte d'entrée de la ville de Bordeaux.
Quatre émergences le complètent pour accueillir 95 logements.
Les informations sur les risques auxquels ce bien est exposé sont disponibles sur le site Géorisques : www.georisques.gouv.fr
Gare St Jean
Tram C et D
Bus liane n°11
Disponibilité : 31/12/2025
Loyer annuel : 94500 € HT
Type de bail : BEFA
Dépôt de garantie : 3 mois
Honoraires à la charge du preneur : 20 % HT
| lot | surface | loyer annuel ht/ m² | loyer annuel/m² |
| com1 | 136,89 m² | 230 € | 34 222,50€ ht |
Localisation et transport aux alentours
- Bègles Terres Neuves497m (7min à pied)C
