BNP Paribas Real Estate, N°1 de la transaction en immobilier d''entreprise en France, vous propose un accompagnement de qualité pour l''acquisition, la vente ou la location d''un bien immobilier.Vo ...
En savoir plus

5 068 m²
HT HC
Location activité/entrepôt - 5068 m²
Tremblay-en-France (93290)
Dernière mise à jour : Hier
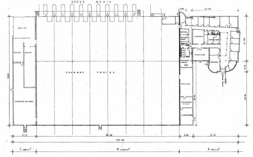
TREMBLAY EN FRANCE (93) A louer / Entrepôt avec chambre froide BNP PARIBAS REAL ESTATE vous propose un entrepôt avec chambre froide (froid positif) et bureaux d'accompagnement, accessible par les transports en commun et l'A104. Rare. A visiter absolument.
Nous vous proposons, à la location, un entrepôt composé de 4 574 m² d’espace de stockage avec 494 m² de bureaux d’accompagnement.
Spécificités du bien : structure béton, sol béton, groupe froid (chambre froide de 3 606 m²), aire de manoeuvre, accès à quai tous porteurs, douches, vestiaires, sanitaires.....
Bureaux en rez-de-chaussée avec faux-plafonds, luminaires encastrés, fenêtres, sanitaires...
Le bâtiment est idéalement situé à proximité de l'aéroport de RCDG et accessible par l'A104 / D40 et de nombreuses lignes de bus.
Disponibilité immédiate
Pour toute information complémentaire, n'hésitez pas à prendre contact avec nos consultants BNP PARIBAS REAL ESTATE.
Disponibilité: immédiateHonoraires: Nous consulter. Majorés de la TVA
| Fiche technique du bien | |
|---|---|
| Bus | Nombreuses lignes |
| Desserte routière | A104 / D40 |
| Aéroport | Paris Charles de Gaulle |
| Autorisation d'exploiter | 2925 |
| Etat de l'immeuble | Etat d'usage |
| Etat des locaux | Etat d'usage |
| Parking(s) | Oui |
| Accueil | Oui |
| Fenêtres | Oui |
| Aménagement des bureaux | rénovés |
| Eclairage Bureaux | Luminaires encastrés |
| Sol bureaux | carrelage |
| Sanitaire(s) | Oui |
| Autre élément bureau | Entrée indépendante |
| Autre élément bureau | climatisation |
| Charpente | Métallique |
| Couverture | Bac acier isolé panneaux sandwich |
| Sols du bâtiment | Béton |
| Porte(s) d'accès à quai | 10 avec niveleurs |
| Aire de manoeuvre | Oui |
| Accessibilité type véhicules | Tous porteurs |
| Eclairage intérieur | Rampes tubes fluo. |
| Locaux sociaux | Douches/Vestiaires |
Afficher les consommations énergétiques
Favoris
Exporter
Appeler
Contacter
Signaler cette annonce










