Présent depuis plus de 30 ans à Orléans, l''agence dispose de toute l''expérience nécessaire pour vous aider à mener à bien votre projet immobilier sur la métropole. Son équipe dynamique, composée ...
En savoir plus

9 271 m²
HT HC
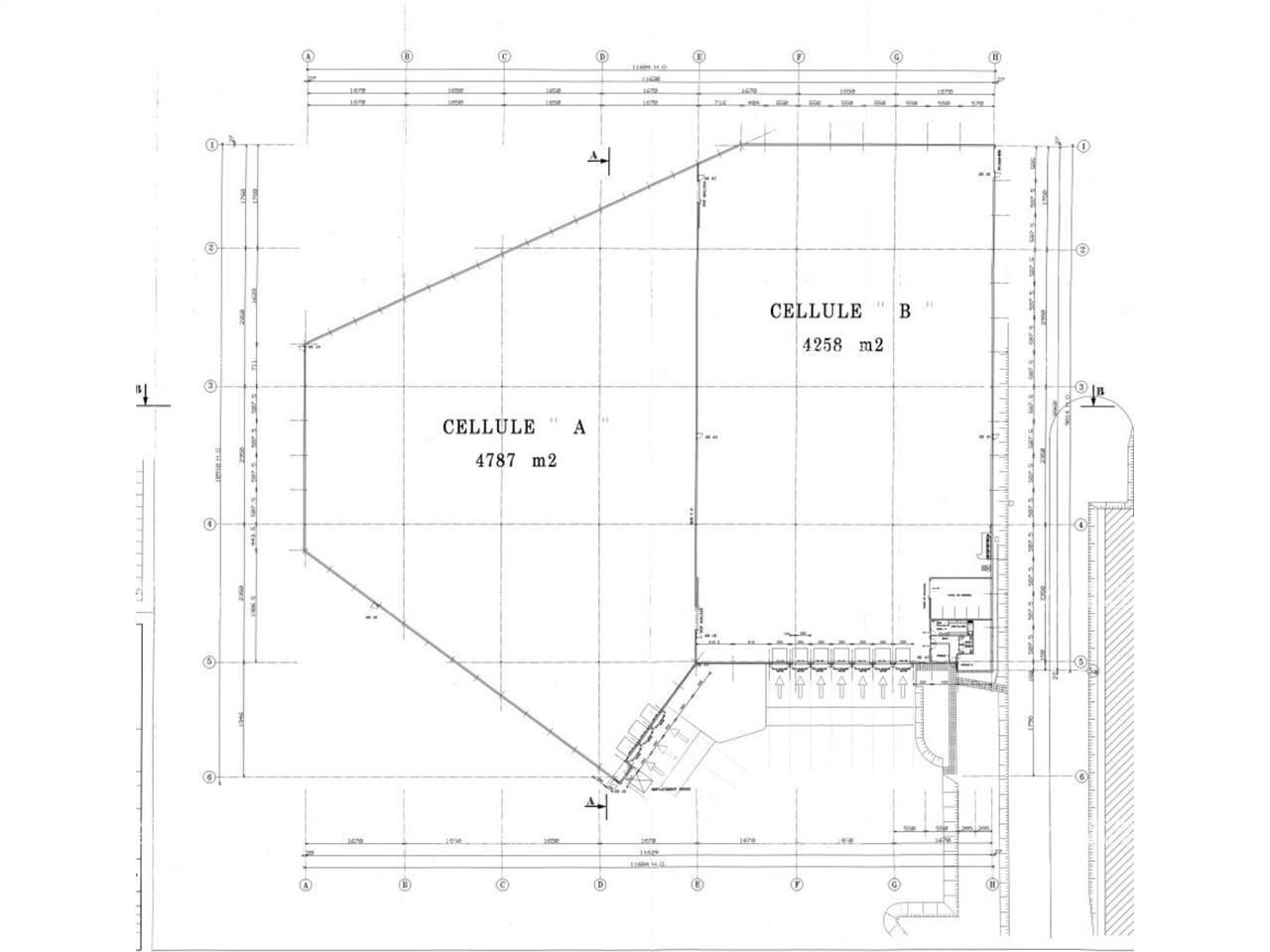
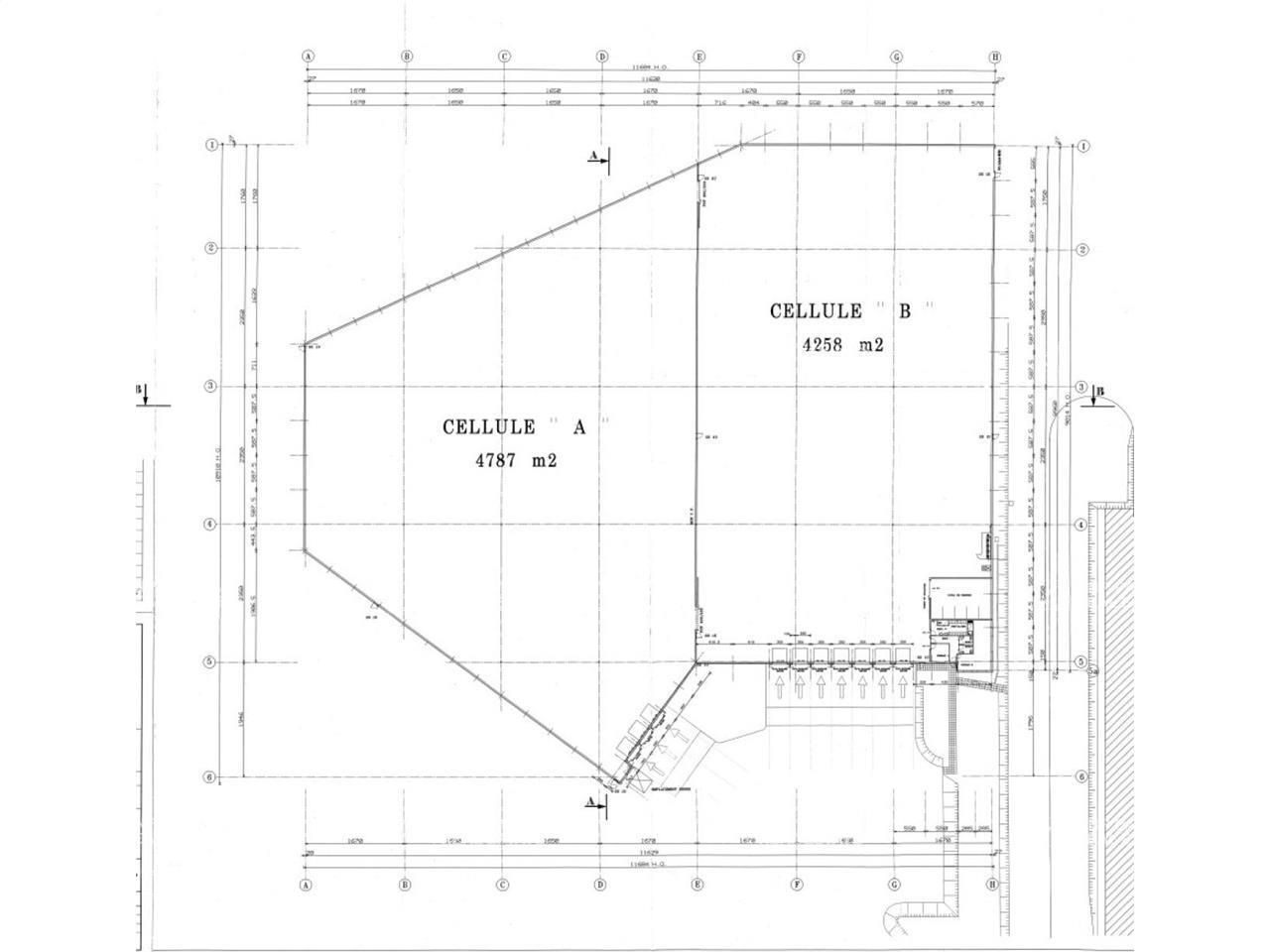
Location activité/entrepôt - 9271 m²
Ormes (45140)
Dernière mise à jour : Hier
ORMES (45) ORLEANS NORD BTIMENT LOGISTIQUE A LOUER Situé dans le "Pôle 45" d'Ormes / Saran, premier pôle logistique de la région Centre-Val-de-Loire, nous vous proposons à la location un entrepôt logistique indépendant d'environ 9 721 m² sur un terrain clos et aménagé. Ce batiment bénéficie d'un emplacement stratégique à proximité de l'autoroute A10, au coeur d'un pôle attractif. Disponible immédiatement. ICPE : 1510(A), 1434(DC), 1530(D), 1532(D), 2663-1(D), 2663-2(D), 2925(D), 4734(DC)
Ce bâtiment indépendant en excellent état bénéficie de 10 quais, 1 rampe plain-pied, 10 places VL et un cour PL de 30 m. Hauteur libre : 9,95 m.
Disponibilité: Immédiate
Honoraires: 15% HT du loyer HT/HC. à la signature du bail
| Fiche technique du bien | |
|---|---|
| Bus | Ligne 3 - Arrêt : Passé à Balance 200 m |
| Desserte routière | A10/A71 sortie n°14 et D2157 |
| Accès Pers. Mobilité Réduite | Oui |
| Autorisation d'exploiter | 1510 |
| Autorisation d'exploiter | 2663-1 |
| Autorisation d'exploiter | Oui |
| Autorisation d'exploiter | 1530 et 1434-1-b |
| Autorisation d'exploiter | 1532 |
| Autorisation d'exploiter | 2925 |
| Autorisation d'exploiter | 2663-2 |
| Etat de l'immeuble | Neuf |
| Etat des locaux | Etat d'usage |
| Etat des locaux | Etat d'usage |
| Parking(s) | 10 Places |
| Source chauffage | Gaz |
| Câblage informatique | Oui |
| Aménagement des bureaux | Cloisonnés/Ouverts |
| Eclairage Bureaux | Luminaires encastrés |
| Sol bureaux | Carrelage |
| Sanitaire(s) | Privatif(s) |
| Autre élément bureau | Chauffage convecteurs électriques |
| Charpente | Métallique |
| Couverture | Bac acier isolé Exutoires de fumées |
| Murs | Bardage double peau |
| Sols du bâtiment | Béton |
| Charge au sol RDC | 5,00 tonne(s)/m² et 7,5T en pied de rack |
| Hauteur libre | 9,95 mètre(s) |
| Porte(s) d'accès plain-pied | 1 Accès semi-remorque |
| Porte(s) d'accès à quai | 10 |
| Aire de manoeuvre | 30 ml |
| Accessibilité type véhicules | Tous porteurs |
| Eclairage intérieur | LED |
| Eclairage naturel | Skydomes |
| Réseau Incendie Armé | Oui |
| Sprinklers | Mono couche (ESFR) |
Voir plus
Afficher les consommations énergétiques
Favoris
Exporter
Appeler
Contacter
Signaler cette annonce










