BNP Paribas Real Estate, N°1 de la transaction en immobilier d''entreprise en France, vous propose un accompagnement de qualité pour l''acquisition, la vente ou la location d''un bien immobilier.Vo ...
En savoir plus

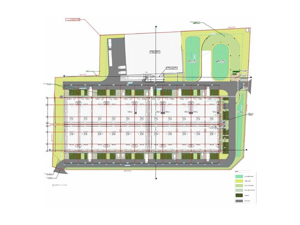
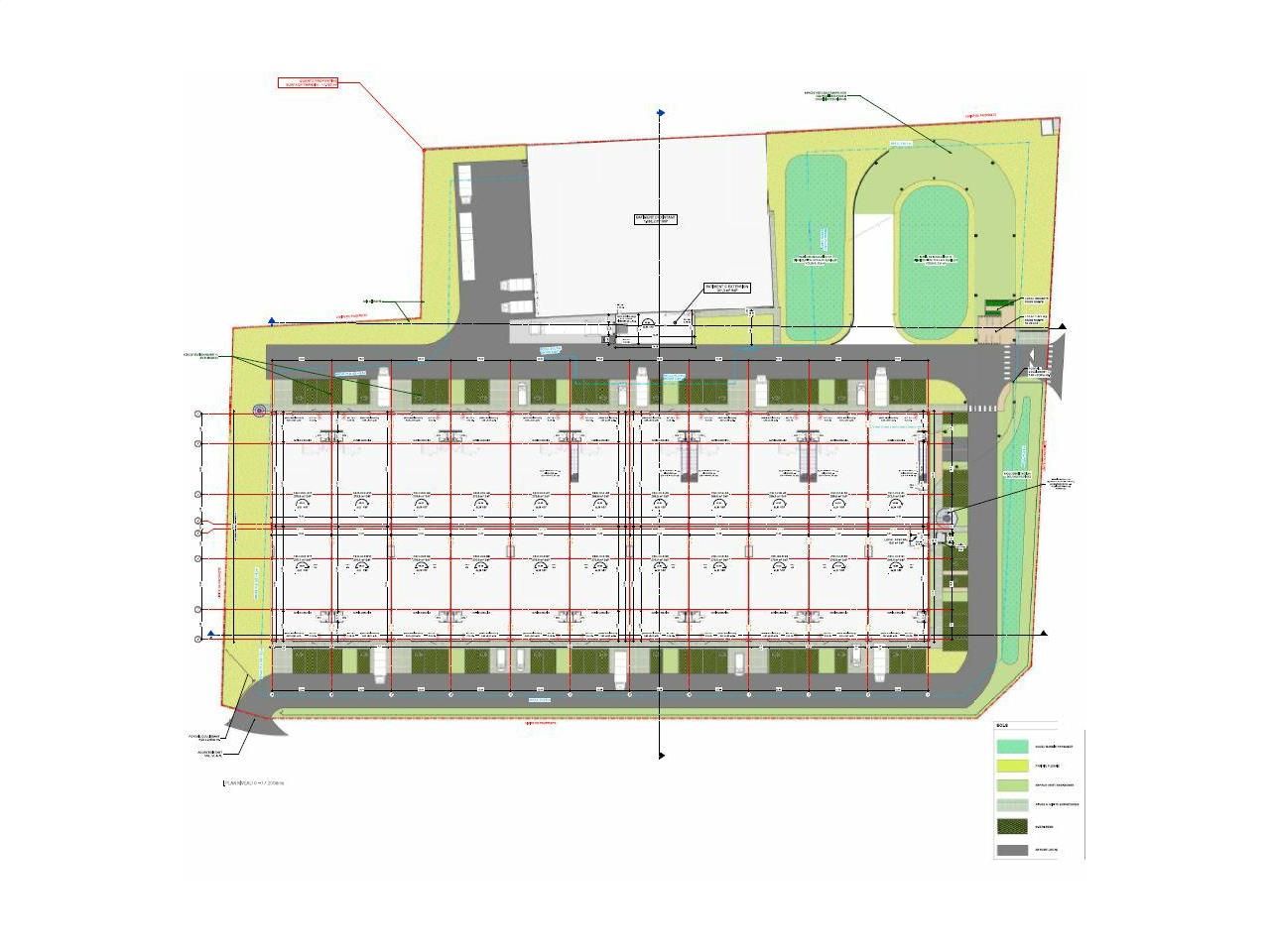
Location activité/entrepôt - 8959 m²
BNP Paribas Real Estate vous propose un btiment d'activité/entreposage avec bureaux d'accompagnement en mezzanine, divisible en plusieurs cellules.
Prestations techniques : couverture bac acier isolé, toiture végétalisée, sol béton, structure : poteaux béton, certification RT 2020, belle hauteur libre de 6,9 à 8 m environ, aire de manoeuvre, portes d'accès plain-pied tous porteurs, quais....
Bureaux : faux-plafonds luminaires encastrés, fenêtres, sanitaires....
132 emplacements de parking extérieurs pour VL soit 4 par lot
Le site est idéalement situé, à proximité des aéroports ROISSY CDG et LE BOURGET, et accessible par les autoroutes A86, A3, A1. Il est également très bien desservi par les transports en commun via le RER E, la ligne de métro M5 et les bus.
Disponibilité : nous consulter
Disponibilité: Immédiate
Honoraires: 15% HT du loyer HT/HC. Majorés de la TVA
| Fiche technique du bien | |
|---|---|
| Métro | M5 "Bobigny-Pablo Picasso" |
| RER | E "Pantin" |
| Bus | à 120 m. |
| Desserte routière | A86/N3/A3/N2/A1 |
| Aéroport | Paris le Bourget & Roissy CDG |
| Etat des locaux | Neuf |
| Parking(s) | Oui |
| Immeuble indépendant | Oui |
| Faux plafond | Oui |
| Autre élément bureau | en mezzanine |
| Couverture | Bac acier isolé et toiture végétalisée |
| Hauteur libre | 8,00 mètre(s) à 6,9 m env. |
| Porte(s) d'accès plain-pied | Oui |
| Porte(s) d'accès à quai | par rampe |
| Aire de manoeuvre | Oui |
| Locaux sociaux | sanitaires |
Surfaces divisibles : 52
| Surface | LoyerHT/HC/m²/an | Étage / Batiment | Infos complémentaires |
| 270 m² | N.C | RDC | A3 |
| 270 m² | N.C | RDC | A4 |
| 270 m² | N.C | RDC | A5 |
| 270 m² | N.C | RDC | A6 |
| 279 m² | N.C | RDC | B1 |
| 276 m² | N.C | RDC | B2 |
| 276 m² | N.C | RDC | B3 |
| 276 m² | N.C | RDC | B4 |
| 276 m² | N.C | RDC | B5 |
| 276 m² | N.C | RDC | B6 |
| 276 m² | N.C | RDC | B7 |
| 276 m² | N.C | RDC | B8 |
| 276 m² | N.C | RDC | B9 |
| 276 m² | N.C | RDC | B10 |
| 279 m² | N.C | RDC | B11 |
| 269 m² | N.C | RDC | C1 |
| 267 m² | N.C | RDC | C2 |
| 267 m² | N.C | RDC | C3 |
| 267 m² | N.C | RDC | C4 |
| 267 m² | N.C | RDC | C5 |
| 267 m² | N.C | RDC | C6 |
| 273 m² | N.C | RDC | C7 |
| 273 m² | N.C | RDC | C8 |
| 273 m² | N.C | RDC | C9 |
| 273 m² | N.C | RDC | C10 |
| 276 m² | N.C | RDC | C11 |
| 72 m² | N.C | R+1 | C11 |
| 71 m² | N.C | R+1 | C10 |
| 71 m² | N.C | R+1 | C9 |
| 71 m² | N.C | R+1 | C8 |
| 71 m² | N.C | R+1 | C7 |
| 72 m² | N.C | R+1 | C6 |
| 72 m² | N.C | R+1 | C5 |
| 72 m² | N.C | R+1 | C4 |
| 72 m² | N.C | R+1 | C3 |
| 72 m² | N.C | R+1 | C2 |
| 73 m² | N.C | R+1 | C1 |
| 72 m² | N.C | R+1 | B11 |
| 72 m² | N.C | R+1 | B10 |
| 72 m² | N.C | R+1 | B9 |
| 72 m² | N.C | R+1 | B8 |
| 72 m² | N.C | R+1 | B7 |
| 72 m² | N.C | R+1 | B6 |
| 72 m² | N.C | R+1 | B5 |
| 72 m² | N.C | R+1 | B4 |
| 72 m² | N.C | R+1 | B3 |
| 72 m² | N.C | R+1 | B2 |
| 72 m² | N.C | R+1 | B1 |
| 71 m² | N.C | R+1 | A6 |
| 71 m² | N.C | R+1 | A5 |
| 71 m² | N.C | R+1 | A4 |
| 71 m² | N.C | R+1 | A3 |










