L’agence CBRE Lyon conseille et accompagne les chefs d’entreprise dans leurs projets immobiliers quels que soient leur taille et leur secteur d’activité. Spécialistes de la transaction de bureaux, ...
En savoir plus

452 m² divisible dès 200 m²
HT HC
Location activité/entrepôt - 452 m²
Neuville-sur-Saône (69250)
Dernière mise à jour : Il y a 2 mois
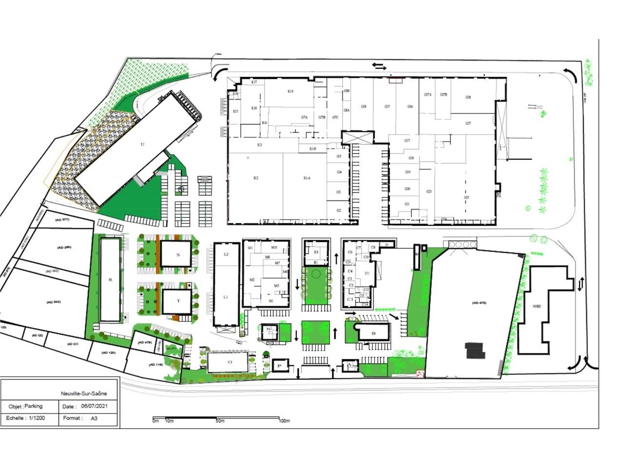
CBRE vous propose de découvrir ces différentes cellules industrielles, situées sur la commune de Neuville sur Saône, à proximité immédiate de l'autoroute A46. Disponible immédiatement à la location, venez découvrir ces locaux d'activités situées au sein d'un parc clos, le PARC NEUVILLE INDUSTRIES.
Au sein d'un parc d'activités privé et clos, ces surfaces de stockage accompagnées de bureaux et de places de stationnement disposent également d'un accès poids lourd.
Régime Fiscal : T.V.A.
Dépôt de garantie : 3 mois de loyer HT/HC
Paiement Loyer : trimestriel
Honoraires : 15% HT du loyer annuel HT/HC à la charge du preneur
Information sur le Bail :
Indexation selon indice INSEE - ILC ou ILAT Provision impôt foncier . R3 : 2 000 euros/an HT . C8 : 1 200 euros/an HT . C3 : 330 euros/an HT
Prestations :
Accessibilité:
Autoroute A46, sortie 2
Route D433
SNCF Gare TGV Lyon Part-Dieu à 30 mn
Aeroport Aéroport Lyon Saint Exupéry et sa gare TV à 31 mn
Les informations sur les risques auxquels ce bien est exposé sont disponibles sur le site Géorisques : www.georisques.gouv.fr
Au sein d'un parc d'activités privé et clos, ces surfaces de stockage accompagnées de bureaux et de places de stationnement disposent également d'un accès poids lourd.
| Étage | Type | Surfaces | Dispo | Loyer | Charges | Type de bailRév. annuelle |
|---|---|---|---|---|---|---|
| RDC | Activités | 252 | Immédiate | 75,4 m²/an HT HC | 1900 HT/an | 3-6-9 ansIndice des Loyers Commerciaux |
| RDC | Activités | 200 | Après accord | 60 m²/an HT HC | 1500 HT/an | 3-6-9 ansIndice des Loyers Commerciaux |
Régime Fiscal : T.V.A.
Dépôt de garantie : 3 mois de loyer HT/HC
Paiement Loyer : trimestriel
Honoraires : 15% HT du loyer annuel HT/HC à la charge du preneur
Information sur le Bail :
Indexation selon indice INSEE - ILC ou ILAT Provision impôt foncier . R3 : 2 000 euros/an HT . C8 : 1 200 euros/an HT . C3 : 330 euros/an HT
Prestations :
- Surface terrain : 5 250 m².
- Surface espaces verts : 754 m².
- Chaque lot dispose d'une porte sectionnelle
- Toiture bac acier
- Accès poids lourds
- Bureaux rénovés et climatisés dans certains lots
- 33 places de stationnement dont 4 PMR.
- Surface RDC : 452 m²
Accessibilité:
Autoroute A46, sortie 2
Route D433
SNCF Gare TGV Lyon Part-Dieu à 30 mn
Aeroport Aéroport Lyon Saint Exupéry et sa gare TV à 31 mn
Les informations sur les risques auxquels ce bien est exposé sont disponibles sur le site Géorisques : www.georisques.gouv.fr
Voir plus
Afficher les consommations énergétiques
Favoris
Exporter
Appeler
Contacter
Signaler cette annonce










