L’agence CBRE Lyon conseille et accompagne les chefs d’entreprise dans leurs projets immobiliers quels que soient leur taille et leur secteur d’activité. Spécialistes de la transaction de bureaux, ...
En savoir plus

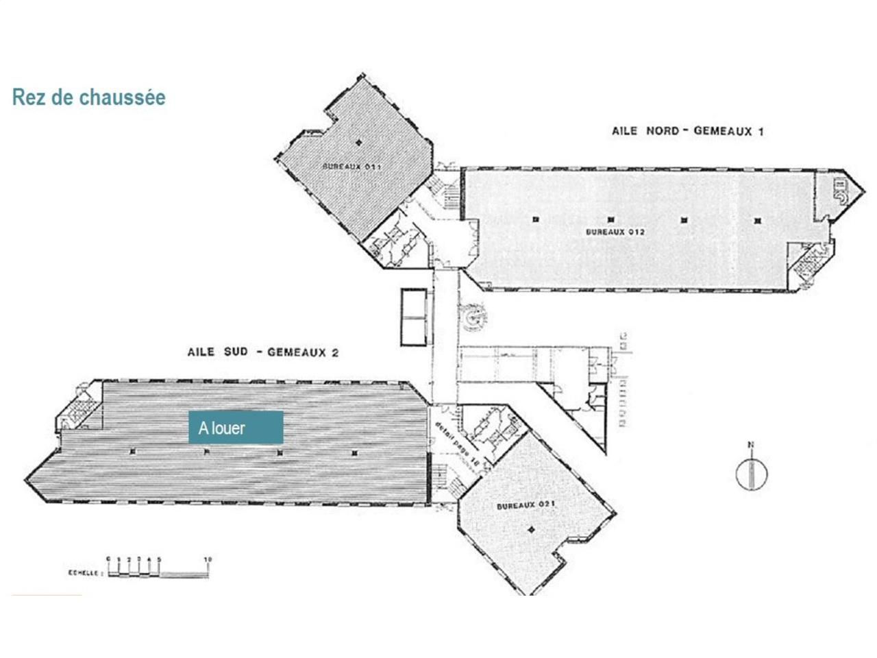
1 471 m² divisible dès 489 m²
HT HC
Location bureau - 1471 m²
Villeurbanne (69100)
Dernière mise à jour : Il y a 9 mois
Belle opportunité de bureaux à louer au coeur de Villeurbanne, à proximité des commerces et des transports en commun, dans un cadre privilégié aux portes de la Part-Dieu.
Le secteur de Lyon Part-Dieu est l'une des plus importantes zones d'affaires de l'agglomération lyonnaise et la seconde en France, avec ses 2 200 établissements implantés et ses 55 000 emplois. L'implantation de nombreux sièges sociaux nationaux et internationaux positionne le quartier comme site majeur de décisions stratégiques. Le secteur bénéficie d'une desserte idéale grâce à son pôle multimodal. De plus le quartier s'inscrit dans une démarche de rénovation urbaine de par la restructuration de sa gare et son centre commercial.
Impôt Foncier : 18 €/m²/an
Régime Fiscal : T.V.A.
Dépôt de garantie : 3 mois de loyer HT/HC
Paiement Loyer : trimestriel
Honoraires : 15% HT du loyer annuel HT/HC à la charge du preneur
Information sur le Bail :
Loyer payable par trimestre d'avance
Prestations :
Accessibilité:
Metro Ligne A (Station République)
Bus ligne 1 (Cours Lafayette)
Tramway à proximité
Route Accès rapide au périphérique par la rue du 4 Août ou le Cours Emile Zola
Les informations sur les risques auxquels ce bien est exposé sont disponibles sur le site Géorisques : www.georisques.gouv.fr
Le secteur de Lyon Part-Dieu est l'une des plus importantes zones d'affaires de l'agglomération lyonnaise et la seconde en France, avec ses 2 200 établissements implantés et ses 55 000 emplois. L'implantation de nombreux sièges sociaux nationaux et internationaux positionne le quartier comme site majeur de décisions stratégiques. Le secteur bénéficie d'une desserte idéale grâce à son pôle multimodal. De plus le quartier s'inscrit dans une démarche de rénovation urbaine de par la restructuration de sa gare et son centre commercial.
| Étage | Type | Surfaces | Dispo | Loyer | Charges | Type de bailRév. annuelle |
|---|---|---|---|---|---|---|
| 3 | Bureaux | 492,8 | Immédiate | 130 m²/an HT HC | 41 HT/m²/an | 3-6-9 ansIndice ILAT |
| RDC | Bureaux | 489,1 | Immédiate | 130 m²/an HT HC | 41 HT/m²/an | 3-6-9 ansIndice ILAT |
| 4 | Bureaux | 489,1 | Immédiate | 130 m²/an HT HC | 41 HT/m²/an | 3-6-9 ansIndice ILAT |
| SS | Parkings | Immédiate | 500 U/an HT HC | 3-6-9 ansIndice ILAT | ||
| Parkings | Immédiate | 300 U/an HT HC | 3-6-9 ansIndice ILAT |
Impôt Foncier : 18 €/m²/an
Régime Fiscal : T.V.A.
Dépôt de garantie : 3 mois de loyer HT/HC
Paiement Loyer : trimestriel
Honoraires : 15% HT du loyer annuel HT/HC à la charge du preneur
Information sur le Bail :
Loyer payable par trimestre d'avance
Prestations :
- Plateaux lumineux
- Open space et bureaux fermés
- Salles de réunion
- Espace détente / cuisine
- Faux plafonds avec pavés luminaires encastrés
- Chauffage collectif et rafraichissement d'air
- Câblage en plinthes périphériques
- Parties communes et espaces extérieurs soignés
- Sanitaires en parties communes
- Gardien
- Contrôle d'accès par badge
- Ascenseur
- Ratio parking 1/27 m²
- Surface RDC : 489,1 m²
Accessibilité:
Metro Ligne A (Station République)
Bus ligne 1 (Cours Lafayette)
Tramway à proximité
Route Accès rapide au périphérique par la rue du 4 Août ou le Cours Emile Zola
Les informations sur les risques auxquels ce bien est exposé sont disponibles sur le site Géorisques : www.georisques.gouv.fr
35 Parkings ext. 46 Parkings int.
Voir plus
Afficher les consommations énergétiques
Favoris
Exporter
Appeler
Contacter
Signaler cette annonce










