L’agence CBRE Lyon conseille et accompagne les chefs d’entreprise dans leurs projets immobiliers quels que soient leur taille et leur secteur d’activité. Spécialistes de la transaction de bureaux, ...
En savoir plus

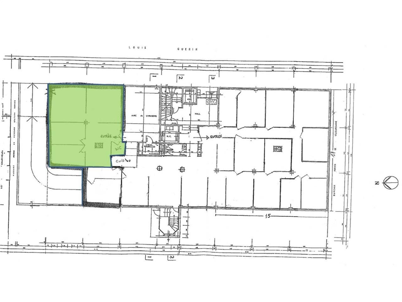
115 m²
HT HC
Location bureau - 115 m²
Villeurbanne (69100)
Dernière mise à jour : Il y a 3 jours
A proximité immédiate du parc de la tête d'or et proche du métro Charpennes, nous vous proposons un plateau de bureaux de 115 m² cloisonné en RDC disponible immédiatement à la location. Un quai de chargement est disponible à un mètre d'entrée de la porte du local et peut permettre l'accès d'un véhicule sans aucune dénivellation.
Accessibilité PMR, bon état et cloisonnement de qualité.
Le quartier Tonkin/Tête d'Or se distingue par son calme et sa tranquillité, offrant un cadre de vie agréable.
La proximité du parc de la Tête d'Or est l'un des principaux atouts de ce quartier. Le parc offre de vastes espaces verts, des étangs, un jardin botanique, un zoo et de nombreuses activités de plein air. Les résidents du quartier Tonkin/Tête d'Or peuvent profiter de ce magnifique parc pour se détendre, faire du sport ou se promener.
Le quartier bénéficie également d'une bonne accessibilité grâce aux transports en commun. Plusieurs lignes de bus et de tramway desservent le quartier, permettant de rejoindre facilement le centre-ville de Lyon.
Régime Fiscal : T.V.A.
Dépôt de garantie : 3 mois de loyer HT/HC
Paiement Loyer : trimestriel
Honoraires : 15% HT/HC à la charge du preneur
Information sur le Bail :
Les charges comprennent la taxe foncière.
Prestations :
Accessibilité:
Route Accès Boulevard Stalingrad
Autoroute Accès Boulevard Périphérique relié au réseau autoroutier
Bus C2, 70, C26
Metro Lignes A et C (Station Charpennes)
Tramway Lignes T1 et T4
SNCF Gare TGV Lyon Part-Dieu à 10 min environ
Aeroport Lyon Saint-Exupéry à 25 min environ
. Stations Vélo'V
Les informations sur les risques auxquels ce bien est exposé sont disponibles sur le site Géorisques : www.georisques.gouv.fr
Accessibilité PMR, bon état et cloisonnement de qualité.
Le quartier Tonkin/Tête d'Or se distingue par son calme et sa tranquillité, offrant un cadre de vie agréable.
La proximité du parc de la Tête d'Or est l'un des principaux atouts de ce quartier. Le parc offre de vastes espaces verts, des étangs, un jardin botanique, un zoo et de nombreuses activités de plein air. Les résidents du quartier Tonkin/Tête d'Or peuvent profiter de ce magnifique parc pour se détendre, faire du sport ou se promener.
Le quartier bénéficie également d'une bonne accessibilité grâce aux transports en commun. Plusieurs lignes de bus et de tramway desservent le quartier, permettant de rejoindre facilement le centre-ville de Lyon.
| Étage | Type | Surfaces | Dispo | Loyer | Charges | Type de bailRév. annuelle |
|---|---|---|---|---|---|---|
| RDC | Bureaux | 115 | Immédiate | 156,52 m²/an HT HC | 9000 HT/an | 3-6-9 ansIndice ILAT |
| Parkings | Immédiate | 1400 U/an HT HC | 3-6-9 ansIndice ILAT |
Régime Fiscal : T.V.A.
Dépôt de garantie : 3 mois de loyer HT/HC
Paiement Loyer : trimestriel
Honoraires : 15% HT/HC à la charge du preneur
Information sur le Bail :
Les charges comprennent la taxe foncière.
Prestations :
- Local indépendant
- Accès PMR
- Un bureau
- 3 salles de formation
- Sanitaires privatifs
- Chauffage / Climatisation
- Faux plafond
- Câblage
- Moquette neuve
- Stores électriques solaires
- Vitrage sécurisé
- Place de livraison
- Surface RDC : 115 m²
Accessibilité:
Route Accès Boulevard Stalingrad
Autoroute Accès Boulevard Périphérique relié au réseau autoroutier
Bus C2, 70, C26
Metro Lignes A et C (Station Charpennes)
Tramway Lignes T1 et T4
SNCF Gare TGV Lyon Part-Dieu à 10 min environ
Aeroport Lyon Saint-Exupéry à 25 min environ
. Stations Vélo'V
Les informations sur les risques auxquels ce bien est exposé sont disponibles sur le site Géorisques : www.georisques.gouv.fr
Voir plus
Afficher les consommations énergétiques
Favoris
Exporter
Appeler
Contacter
Signaler cette annonce










