L’agence CBRE Lille conseille et accompagne les chefs d’entreprise dans leurs projets immobiliers quels que soient leur taille et leur secteur d’activité. Spécialistes de la transaction de bureaux, ...
En savoir plus

430 m²
HT HC
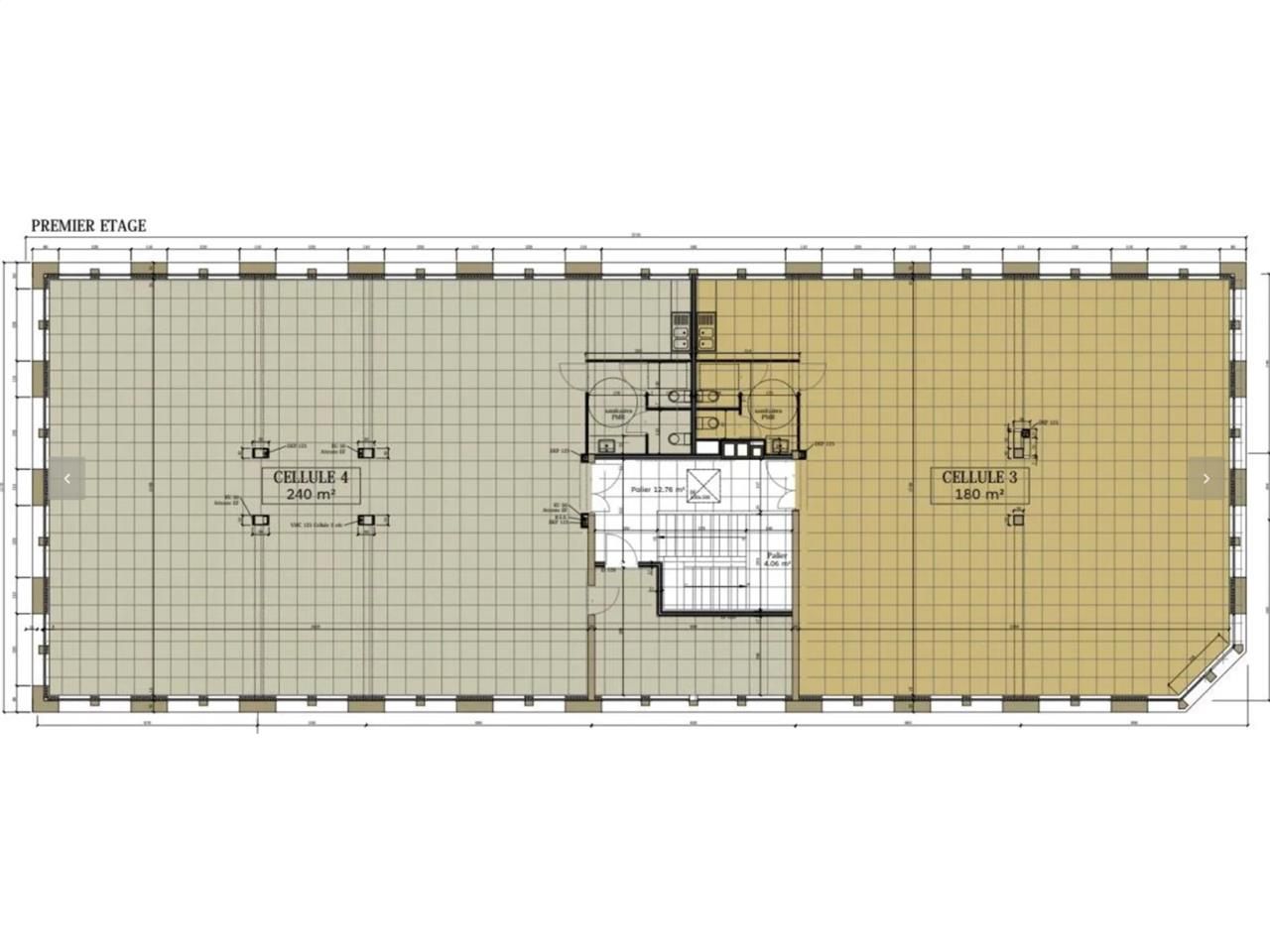
Location bureau - 430 m²
Villeneuve-d'Ascq (59491)
Dernière mise à jour : Il y a 3 jours
CBRE Lille spécialiste de l'immobilier d'entreprise, vous propose à la location un plateau de bureaux rénové de 430 m² sur le secteur de la Pilaterie à Villeneuve d'Ascq. Idéalement situé le site est à 5 minutes à pieds du métro station "Les Près". Rare sur le secteur !
N'hésitez pas à nous contacter pour de plus amples informations au 03 59 28 39 82 ou pour organiser une visite !
Régime Fiscal : T.V.A.
Dépôt de garantie : 3 mois de loyer HT/HC
Paiement Loyer : trimestriel
Honoraires : 15% HT du loyer annuel HT/HC à la charge du preneur
Prestations :
Accessibilité:
Metro Les prés (2)
Autoroute A22/A1/N227
Les informations sur les risques auxquels ce bien est exposé sont disponibles sur le site Géorisques : www.georisques.gouv.fr
N'hésitez pas à nous contacter pour de plus amples informations au 03 59 28 39 82 ou pour organiser une visite !
| Étage | Type | Surfaces | Dispo | Loyer | Charges | Type de bailRév. annuelle |
|---|---|---|---|---|---|---|
| 1 | Bureaux | 430 | Immédiate | 150 m²/an HT HC | 3-6-9 ansIndice ILAT |
Régime Fiscal : T.V.A.
Dépôt de garantie : 3 mois de loyer HT/HC
Paiement Loyer : trimestriel
Honoraires : 15% HT du loyer annuel HT/HC à la charge du preneur
Prestations :
- Plateau complètement rénové et climatisé
Accessibilité:
Metro Les prés (2)
Autoroute A22/A1/N227
Les informations sur les risques auxquels ce bien est exposé sont disponibles sur le site Géorisques : www.georisques.gouv.fr
Voir plus
Afficher les consommations énergétiques
Favoris
Exporter
Appeler
Contacter
Signaler cette annonce
