L’agence CBRE Nantes conseille et accompagne les chefs d’entreprise dans leurs projets immobiliers quels que soient leur taille et leur secteur d’activité. Spécialistes de la transaction de bureaux ...
En savoir plus

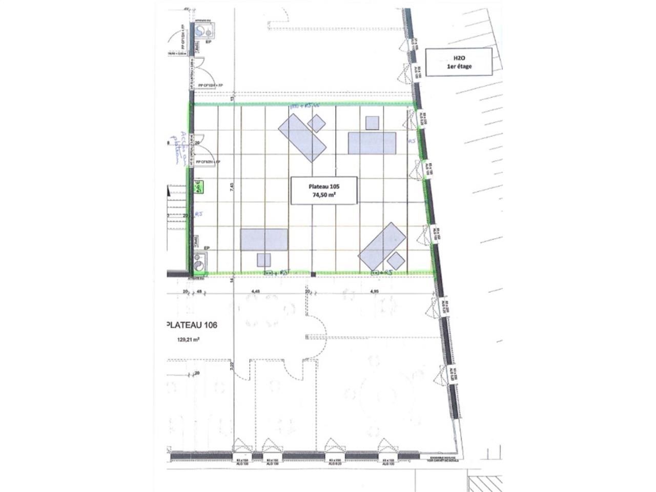
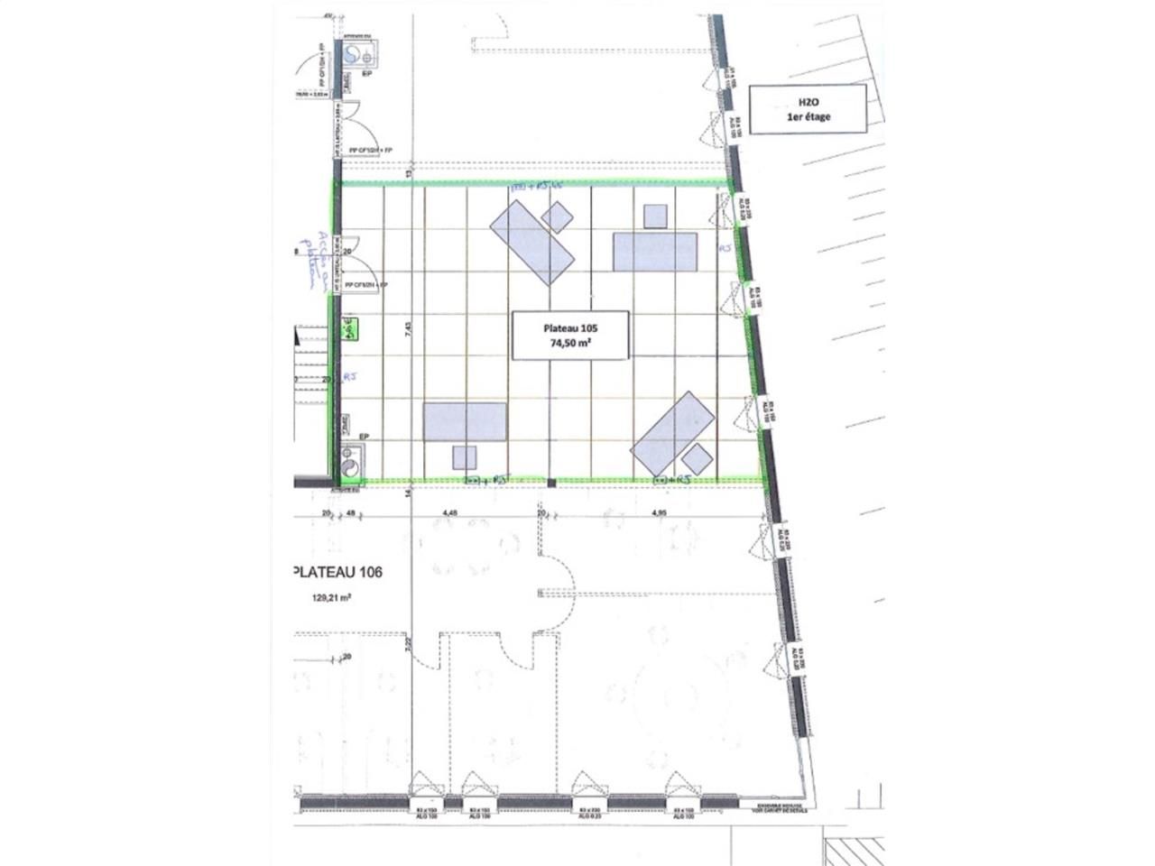
74 m²
HT HC
Location bureau - 74 m²
Vertou (44120)
Dernière mise à jour : Il y a 3 jours
A louer, sud Loire, surface de bureaux en plein coeur de la zone tertiaire de Vertou.
Les plateaux climatisés sont livrés en open space. Deux emplacements de parking sont rattachés au lot.
Grande flexibilité d'aménagement pour ces locaux lumineux. L'immeuble est idéalement situé, à 800 m, de la gare de Saint-Sébastien et au pied du périphérique. A 10 minutes en voiture de la gare de Nantes.
Impôt Foncier : 1602 €/an
Régime Fiscal : T.V.A.
Dépôt de garantie : 3 mois de loyer HT/HC
Honoraires : A la charge du preneur.
Prestations :
Accessibilité:
Transilien Saint-Sébastien-Frêne-Rond (SNCF)
Route Périphérique à proximité
Les informations sur les risques auxquels ce bien est exposé sont disponibles sur le site Géorisques : www.georisques.gouv.fr
Les plateaux climatisés sont livrés en open space. Deux emplacements de parking sont rattachés au lot.
Grande flexibilité d'aménagement pour ces locaux lumineux. L'immeuble est idéalement situé, à 800 m, de la gare de Saint-Sébastien et au pied du périphérique. A 10 minutes en voiture de la gare de Nantes.
| Étage | Type | Surfaces | Dispo | Loyer | Charges | Type de bailRév. annuelle |
|---|---|---|---|---|---|---|
| 1 | Bureaux | 74,5 | Immédiate | 160 m²/an HT HC | 21,2 HT/m²/an | 3-6-9 ansIndice ILAT |
Impôt Foncier : 1602 €/an
Régime Fiscal : T.V.A.
Dépôt de garantie : 3 mois de loyer HT/HC
Honoraires : A la charge du preneur.
Prestations :
- Immeuble récent
- Contrôle d'accès
- Moquette
- Open space
- Climatisation
- Surface câblée
- Alarme
- 2 places de parking
- Surface RDC : 0 m²
Accessibilité:
Transilien Saint-Sébastien-Frêne-Rond (SNCF)
Route Périphérique à proximité
Les informations sur les risques auxquels ce bien est exposé sont disponibles sur le site Géorisques : www.georisques.gouv.fr
Voir plus
Afficher les consommations énergétiques
Favoris
Exporter
Appeler
Contacter
Signaler cette annonce










