L’agence CBRE Toulouse conseille et accompagne les chefs d’entreprise dans leurs projets immobiliers quels que soient leur taille et leur secteur d’activité. Spécialistes de la transaction de burea ...
En savoir plus

158 m²
HT HC
Location bureau - 158 m²
Toulouse (31000)
Dernière mise à jour : Il y a 3 jours
Bureaux à louer au coeur du pôle tertiaire de Saint-Martin du Touch à TOULOUSE, d'accès direct par les rocades Ouest et Arc-en-Ciel. Accès rapide à l'Aéroport.
Grand parking extérieur.
Accès direct par les rocades Ouest et Arc-en-Ciel.
Liaison rapide à l'Aéroport de TOULOUSE- BLAGNAC.
TER (ligne C du métro).
Bus : ligne n° 64
Impôt Foncier : 17,65 €/m²/an, en sus
Régime Fiscal : T.V.A.
Dépôt de garantie : 3 mois de loyer HT/HC
Honoraires : 15% (+TVA) du loyer annuel HT HC à la charge du preneur
Information sur le Bail :
Parkings : inclus dans le loyer Loyer et charges payables par trimestre d'avance Prime Assurance en sus : 1,36 euros/m²/an HT
Prestations :
Accessibilité:
Route Accès direct par les rocades Ouest et Arc-en-Ciel.
Bus Bus : ligne n° 64.
SNCF TER (ligne C du métro).
Aeroport Liaison rapide à l'Aéroport de TOULOUSE- BLAGNAC.
Les informations sur les risques auxquels ce bien est exposé sont disponibles sur le site Géorisques : www.georisques.gouv.fr
Grand parking extérieur.
Accès direct par les rocades Ouest et Arc-en-Ciel.
Liaison rapide à l'Aéroport de TOULOUSE- BLAGNAC.
TER (ligne C du métro).
Bus : ligne n° 64
| Étage | Type | Surfaces | Dispo | Loyer | Charges | Type de bailRév. annuelle |
|---|---|---|---|---|---|---|
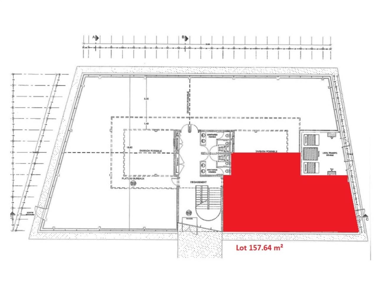
| RDC | Bureaux | 157,64 | Immédiate | 120 m²/an HT HC | 47,38 m²/an TTC | 3-6-9 ansIndice ILAT |
Impôt Foncier : 17,65 €/m²/an, en sus
Régime Fiscal : T.V.A.
Dépôt de garantie : 3 mois de loyer HT/HC
Honoraires : 15% (+TVA) du loyer annuel HT HC à la charge du preneur
Information sur le Bail :
Parkings : inclus dans le loyer Loyer et charges payables par trimestre d'avance Prime Assurance en sus : 1,36 euros/m²/an HT
Prestations :
- Bureaux livrés entièrement rénovés (éclairage Led, sol, peinture), climatisés.
- Plateau nu (hors cloisons).
- 6 emplacements de voitures privatifs extérieurs.
- Surface RDC : 157,64 m²
Accessibilité:
Route Accès direct par les rocades Ouest et Arc-en-Ciel.
Bus Bus : ligne n° 64.
SNCF TER (ligne C du métro).
Aeroport Liaison rapide à l'Aéroport de TOULOUSE- BLAGNAC.
Les informations sur les risques auxquels ce bien est exposé sont disponibles sur le site Géorisques : www.georisques.gouv.fr
Voir plus
Afficher les consommations énergétiques
Favoris
Exporter
Appeler
Contacter
Signaler cette annonce










