Notre équipe est composée d''experts du marché immobilier d''entreprise, et renforce ainsi notre position de leader des transactions immobilières à Toulouse. Notre mission est de vous guider afin d ...
En savoir plus

120 m²
HT HC
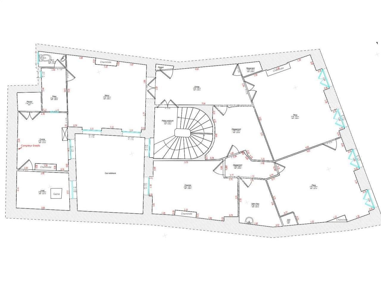
Location bureau - 120 m²
Toulouse (31000)
Dernière mise à jour : Hier
SECTEUR HYPER CENTRE-VILLE, A proximité de toutes commodités, BNP Paribas Real Estate vous propose une surface à usage de bureaux, disponible à la location. Rénovation complète en cours. L'intégralité de nos offres sur : https://www.bnppre.fr/toulouse
Dans un immeuble en cours de rénovation, BNP Paribas Real Estate vous propose un bureau de 120m² situé au R+1.
-parquet d'origine conservé et rénové
-kitchenette
-fibre
-baie de brassage et cblage informatique
-double vitrage
-emplacement idéal sur la place Saint-Georges, à proximité immédiate des deux lignes de métro
Disponibilité: ImmédiateHonoraires: 15% HT du loyer HT/HC. à la signature du bail
| Fiche technique du bien | |
|---|---|
| Métro | Ligne B 50 m |
| Métro | Ligne A 50 m |
| Aéroport | 10 km |
| Gare | Gare de Matabiau 2 km |
| Etat de l'immeuble | Rénové |
| Etat des locaux | A rénover |
| Climatisation | Réversible |
| Fenêtres | double vitrage |
| Câblage informatique | prises RJ 45 |
| Eclairage Bureaux | Spots rails lumineux suspendus |
| Sol bureaux | Parquet |
| Autre élément bureau | Interphonie sans fil GSM |
| Autre élément bureau | Cuisine |
Afficher les consommations énergétiques
Favoris
Exporter
Appeler
Contacter
Signaler cette annonce










