Leader mondial des services dédiés à l'immobilier d'entreprise, Cushman & Wakefield accompagne ses clients dans la transformation de leurs modes de travail, de consommation et de vie. Nos 43 000 co ...
En savoir plus

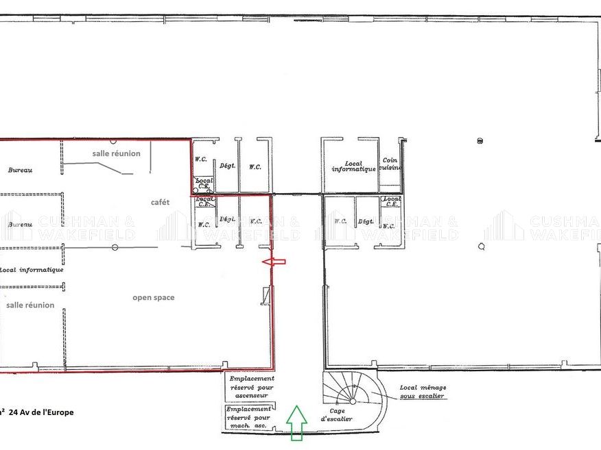
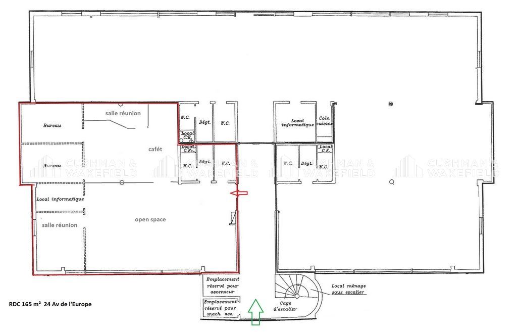
165 m²
HT HC
Location bureau - 165 m²
Schiltigheim (67300)
Dernière mise à jour : Il y a 4 jours
Immeuble de bureaux sur 2 niveaux sur l'axe principal de l'Espace Européen de l'Entreprise, en face de l'arrêt du BHNS reliant le site à la gare de Strasbourg Dans un immeuble de standing, des bureaux sont à louer sur l'axe principal du site face à l'arrêt de bus. Zone labellisée "Zone d'activité à très haut débit ". Cet ensemble tertiaire, disponible à la location, offrant de belles prestations est idéalement situé au sein de l''Espace Européen de l''Entreprise (EEE ou E3), qui constitue un des pôles tertiaires majeurs de l''agglomération tant par sa taille que par sa situation géographique en bordure d''autoroute (A4 et A350). Considéré comme l''un des huit sites d''excellence de l''Eurométropole de Strasbourg, il bénéficie également d''un BHNS (Bus à Haut Niveau de Service), ligne G, garantissant un trajet de 9min depuis et jusqu''à la gare de Strasbourg, toutes les 6min. Pour faire de cet espace un lieu de vie ou il fait bon vivre, des pistes cyclables et chemins piétons arborés et végétalisés ont été élaborés, tandis qu''un bassin technique a été créé en son centre, recueillant les eaux de pluie et permettant une vie aquatique spontanée. De nombreux services sont également proposés aux utilisateurs : restauration, restauration rapide, hôtellerie, banque, professions médicales et paramédicales, activités de bien être, résidence étudiante, crèche d'entreprise, salle de sport, ... . Moquettes antistatiques en dalles interchangeables . Revêtement mural en toile de verre peinte . Faux-plafonds incorporant les cadrettes lumineuses . Double vitrage avec stores intérieurs . Plinthes en périphérie du btiment permettant le passage des courants faibles et forts . Chauffage/climatisation par splits réversibles en faux-plafonds. . Sanitaires privatifs Cloisonnement : Open space, 2 salles de réunion, 1 local technique avec baie de brassage, 2 bureaux, 1 espace cafétéria équipée - Locaux loués meublés et équipés (montant en sus en cour de détermination) Bus : lignes 70 et G BHNS (bus à haut niveau de service reliant la gare TGV en 14 min) arrêt Vienne Accès routier : A4 sortie Schiltigheim
Voir plus
Afficher les consommations énergétiques
Localisation et transport aux alentours
Favoris
Exporter
Appeler
Contacter
Signaler cette annonce










