MALSH Realty accompagne les entreprises dans leurs projets immobiliers, qu’il s’agisse de locaux d’activités, de bureaux, de commerces, d’entrepôts ou de terrains. L’agence intervient aussi bien au ...
En savoir plus

241 m²
HT HC
Location bureau - 241 m²
Saint-Priest (69800)
Dernière mise à jour : Hier
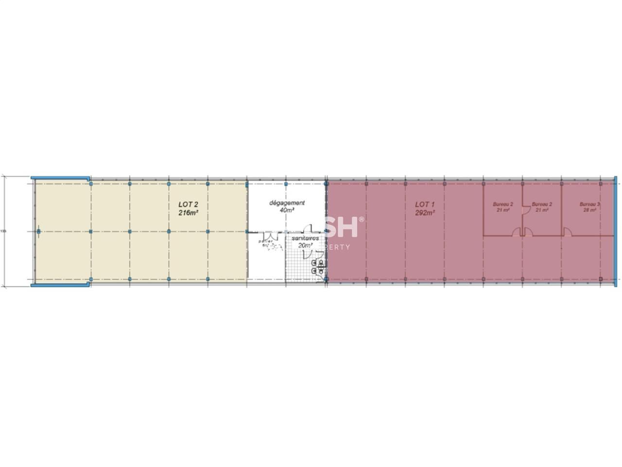
Bureaux - A LOUER - SAINT PRIEST - 241 m²
Nous vous proposons à la location, des bureaux d'une surface d'environ 241 m² au 1er étage, situés sur la commune de Saint-Priest, à proximité immédiate de l'A46. Vous disposerez également de nombreuses places de parking.
SAINT-PRIEST - Bureaux de 241 m² - A LOUER
Régime Fiscal : T.V.A. (20%)
Dépôt de garantie : 3 mois de loyer HT/HC
Honoraires : 15% HT d'un an de loyer HT à la charge du preneur, payables à la signature du bail
Information sur le Bail :
Les charges comprennent : consommation, fluide, climatisation, chauffage, espaces vert, maintenance parking, navette . Loyer parking extérieur : 250 euros HT/place/an
Prestations :
Accessibilité:
Bus St Priest Jules Ferry (BUS-C25, BUS-30, BUS-50, BUS-62, BUS-76, BUS-ZI8)
Tram St Priest Jules Ferry (TRAMWAY-T2)
SNCF St-Priest (France)
Les informations sur les risques auxquels ce bien est exposé sont disponibles sur le site Géorisques : www.georisques.gouv.fr
Nous vous proposons à la location, des bureaux d'une surface d'environ 241 m² au 1er étage, situés sur la commune de Saint-Priest, à proximité immédiate de l'A46. Vous disposerez également de nombreuses places de parking.
SAINT-PRIEST - Bureaux de 241 m² - A LOUER
| Étage | Type | Surfaces | Dispo | Loyer | Charges | Type de bailRév. annuelle |
|---|---|---|---|---|---|---|
| 1 | Bureaux | 241 | Immédiate | 90 HT/HC/m²/an | 25 m²/an HT | commercial 3-6-9 ansILAT Indice des Loyers des Activités Tertiaires |
Régime Fiscal : T.V.A. (20%)
Dépôt de garantie : 3 mois de loyer HT/HC
Honoraires : 15% HT d'un an de loyer HT à la charge du preneur, payables à la signature du bail
Information sur le Bail :
Les charges comprennent : consommation, fluide, climatisation, chauffage, espaces vert, maintenance parking, navette . Loyer parking extérieur : 250 euros HT/place/an
Prestations :
- 35 parkings
- Bureaux en bon état, cloisonnés et câblés
- Grand open space
- Kitchenette
- Sanitaires en parties communes
- Faux plafonds
- Sol Parquet
- Luminaires encastrés
- Chauffage
- Climatisation
Accessibilité:
Bus St Priest Jules Ferry (BUS-C25, BUS-30, BUS-50, BUS-62, BUS-76, BUS-ZI8)
Tram St Priest Jules Ferry (TRAMWAY-T2)
SNCF St-Priest (France)
Les informations sur les risques auxquels ce bien est exposé sont disponibles sur le site Géorisques : www.georisques.gouv.fr
35 Parkings ext.
Voir plus
Afficher les consommations énergétiques
Localisation et transport aux alentours
- Saint-Priest - Jules Ferry129m (2min à pied)2
- Cordière404m (6min à pied)2
Favoris
Exporter
Appeler
Contacter
Signaler cette annonce
