MCarré Conseil est une agence spécialiste de l'immobilier d’entreprise du sud de l’Île-de-France (en Essonne et dans le sud de la Seine-et-Marne et du Val-De-Marne). Elle vous accompagne à chaque é ...
En savoir plus

946 m² divisible dès 36 m²
HT HC
Location bureau - 946 m²
Saint-Michel-sur-Orge (91240)
Dernière mise à jour : Il y a 1 mois
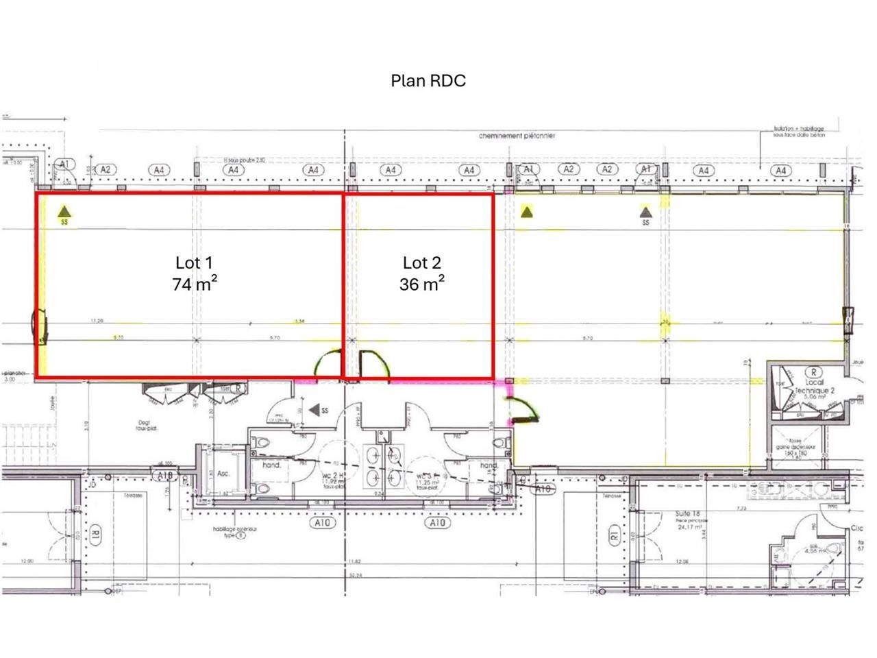
Dans un immeuble en R+2 de bon standing, nous vous proposons à la location des surfaces de bureaux aménagées au rez-de-chaussée et brut en étage.
Impôt Foncier : 35 €/HT/m²/an
Régime Fiscal : TVA
Dépôt de garantie : 3 mois de loyer HT/HC
Honoraires : 15% HT du loyer annuel HT HC
Prestations :
Accessibilité:
Route Nationale 104 Francilienne
Bus Diderot (Ligne 2271)
Les informations sur les risques auxquels ce bien est exposé sont disponibles sur le site Géorisques : www.georisques.gouv.fr
| Étage | Type | Surfaces | Dispo | Loyer | Charges | Type de bailRév. annuelle |
|---|---|---|---|---|---|---|
| 2 | Bureaux | 221 | Immédiate | 90 m²/an HT HC | 28,2 HT/m²/an | 3/6/9 ansIndice ILAT |
| 2 | Bureaux | 146 | Immédiate | 90 m²/an HT HC | 28,2 HT/m²/an | 3/6/9 ansIndice ILAT |
| 1 | Bureaux | 221 | Immédiate | 90 m²/an HT HC | 28,2 HT/m²/an | 3/6/9 ansIndice ILAT |
| 1 | Bureaux | 146 | Immédiate | 90 m²/an HT HC | 28,2 HT/m²/an | 3/6/9 ansIndice ILAT |
| Rdc | Bureaux | 102 | Immédiate | 90 m²/an HT HC | 28,2 HT/m²/an | 3/6/9 ansIndice ILAT |
| Rdc | Bureaux | 74 | Immédiate | 120 m²/an HT HC | 28,2 HT/m²/an | 3/6/9 ansIndice ILAT |
| Rdc | Bureaux | 36 | Immédiate | 120 m²/an HT HC | 28,2 HT/m²/an | 3/6/9 ansIndice ILAT |
| Parkings | Immédiate | 3/6/9 ansIndice ILAT |
Impôt Foncier : 35 €/HT/m²/an
Régime Fiscal : TVA
Dépôt de garantie : 3 mois de loyer HT/HC
Honoraires : 15% HT du loyer annuel HT HC
Prestations :
- Vidéosurveillance dans le hall et à l'extérieur du bâtiment
- Accès par digicode
- Double vitrage anti-effraction
- Chauffage électrique
- Sanitaires en parties communes
- Surface RDC : 212 m²
Accessibilité:
Route Nationale 104 Francilienne
Bus Diderot (Ligne 2271)
Les informations sur les risques auxquels ce bien est exposé sont disponibles sur le site Géorisques : www.georisques.gouv.fr
Voir plus
Afficher les consommations énergétiques
Localisation et transport aux alentours
Favoris
Exporter
Appeler
Contacter
Signaler cette annonce



