L’agence CBRE Nantes conseille et accompagne les chefs d’entreprise dans leurs projets immobiliers quels que soient leur taille et leur secteur d’activité. Spécialistes de la transaction de bureaux ...
En savoir plus

1 559 m² divisible dès 146 m²
HT HC
Location bureau - 1559 m²
Saint-Herblain (44800)
Dernière mise à jour : Il y a 4 mois
Saint-Herblain, au pied du tramway et à proximité immédiate des axes routiers.
CBRE vous propose, au sein d'un ensemble immobilier neuf, des plateaux de bureaux à louer. Les surfaces sont aménagées et bénéficient d'une grande fonctionnalité. L'immeuble se situe au coeur de la zone d'Atlantis et de ses nombreux services: salle de sport, crèches, commerces, offre variée de restauration...
Le WELL'COM bénéficie de nombreux atouts : label BREEAM Very Good, forte visibilité, tram en pied d'immeuble, parvis végétalisé, espaces extérieurs privatifs à tous les niveaux (terrasses), plateaux très fonctionnels permettant une organisation en open space ou en bureaux cloisonnés, parking sécurisé, etc ...
Impôt Foncier : 24 €/m²
Régime Fiscal : T.V.A.
Dépôt de garantie : 3 mois de loyer HT/HC
Honoraires : 15% du loyer HT/HC à la charge du preneur.
Information sur le Bail :
Loyer terrasse 62 euros/m²/an HT/HC
Prestations :
Accessibilité:
Bus lignes 71-50-93
Tramway ligne 1 arrêt "Tourmaline"
Desserte routière proche axe Nantes/Vannes
A 20 minutes de la gare
Les informations sur les risques auxquels ce bien est exposé sont disponibles sur le site Géorisques : www.georisques.gouv.fr
CBRE vous propose, au sein d'un ensemble immobilier neuf, des plateaux de bureaux à louer. Les surfaces sont aménagées et bénéficient d'une grande fonctionnalité. L'immeuble se situe au coeur de la zone d'Atlantis et de ses nombreux services: salle de sport, crèches, commerces, offre variée de restauration...
Le WELL'COM bénéficie de nombreux atouts : label BREEAM Very Good, forte visibilité, tram en pied d'immeuble, parvis végétalisé, espaces extérieurs privatifs à tous les niveaux (terrasses), plateaux très fonctionnels permettant une organisation en open space ou en bureaux cloisonnés, parking sécurisé, etc ...
| Étage | Type | Surfaces | Dispo | Loyer | Charges | Type de bailRév. annuelle |
|---|---|---|---|---|---|---|
| 3 | Bureaux | 146 | Immédiate | 155 m²/an HT HC | 39,3 HT/m²/an | 6-9 ansIndice ILAT |
| 4 | Bureaux | 615 | Immédiate | 155 m²/an HT HC | 39,3 HT/m²/an | 6-9 ansIndice ILAT |
| 5 | Bureaux | 398 | Immédiate | 155 m²/an HT HC | 39,3 HT/m²/an | 6-9 ansIndice ILAT |
| 6 | Bureaux | 400 | Immédiate | 155 m²/an HT HC | 39,3 HT/m²/an | 6-9 ansIndice ILAT |
| Parkings | Immédiate | 800 U/an HT HC | 6-9 ansIndice ILAT | |||
| Parkings | Immédiate | 350 U/an HT HC | 6-9 ansIndice ILAT |
Impôt Foncier : 24 €/m²
Régime Fiscal : T.V.A.
Dépôt de garantie : 3 mois de loyer HT/HC
Honoraires : 15% du loyer HT/HC à la charge du preneur.
Information sur le Bail :
Loyer terrasse 62 euros/m²/an HT/HC
Prestations :
- Programme neuf Breeam Very Good
- Accès PMR
- Fibre optique
- Parvis végétalisé
- Gestion Technique du Bâtiment
- Local vélos
- Douches et vestiaires au RDC
- Espace extérieur privatif à chaque niveau
- Terrasse de 105 m² (5ème étage)
- Air rafraichi de type VRV 3 tubes
- Vitrage toute hauteur/Stores int. vénitiens
- Belle luminosité / Double exposition
- Hauteur sous plafond plateaux : 2,6m
- LED gradable / Détecteur de présence
- Peu de contraintes porteuses
Accessibilité:
Bus lignes 71-50-93
Tramway ligne 1 arrêt "Tourmaline"
Desserte routière proche axe Nantes/Vannes
A 20 minutes de la gare
Les informations sur les risques auxquels ce bien est exposé sont disponibles sur le site Géorisques : www.georisques.gouv.fr
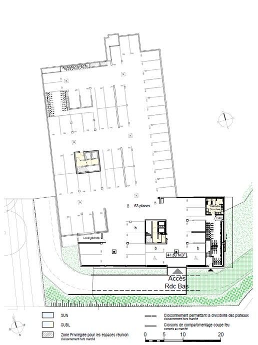
31 Parkings int. 4 Parkings ext.
Voir plus
Afficher les consommations énergétiques
Favoris
Exporter
Appeler
Contacter
Signaler cette annonce










