L’agence CBRE Nantes conseille et accompagne les chefs d’entreprise dans leurs projets immobiliers quels que soient leur taille et leur secteur d’activité. Spécialistes de la transaction de bureaux ...
En savoir plus

2 744 m² divisible dès 293 m²
HT HC
Location bureau - 2744 m²
Saint-Herblain (44800)
Dernière mise à jour : Il y a 17 jours
Atlantis, aux portes du périphérique et au pied du tramway, CBRE vous propose à la location ou à la vente, au sein d'un immeuble neuf, des plateaux lumineux et fonctionnels, des terrasses végétalisées, un espace de convivialité en rooftop ainsi que de nombreux parkings. Inspiré des codes de l'hôtellerie, l'immeuble bénéficiera de prestations haute de gamme.
Labellisé Breeam In use, Wallis & Futuna est un programme neuf en cours de construction, dessiné par le Cabinet d'architecte d'Anthony RIO. Il proposera des espaces paysagés atypiques, dans un environnement urbain, axé sur le bien-être de ses occupants.
Régime Fiscal : T.V.A.
Dépôt de garantie : 3 mois de loyer HT/HC
Honoraires : A la charge du preneur.
Prestations :
Accessibilité:
Tramway Schoelcher (1)
Route N844 à 3 mn
Route N444 à 3mn
SNCF 30 mn en transport en commun
Aeroport 20 mn en voiture
Les informations sur les risques auxquels ce bien est exposé sont disponibles sur le site Géorisques : www.georisques.gouv.fr
Labellisé Breeam In use, Wallis & Futuna est un programme neuf en cours de construction, dessiné par le Cabinet d'architecte d'Anthony RIO. Il proposera des espaces paysagés atypiques, dans un environnement urbain, axé sur le bien-être de ses occupants.
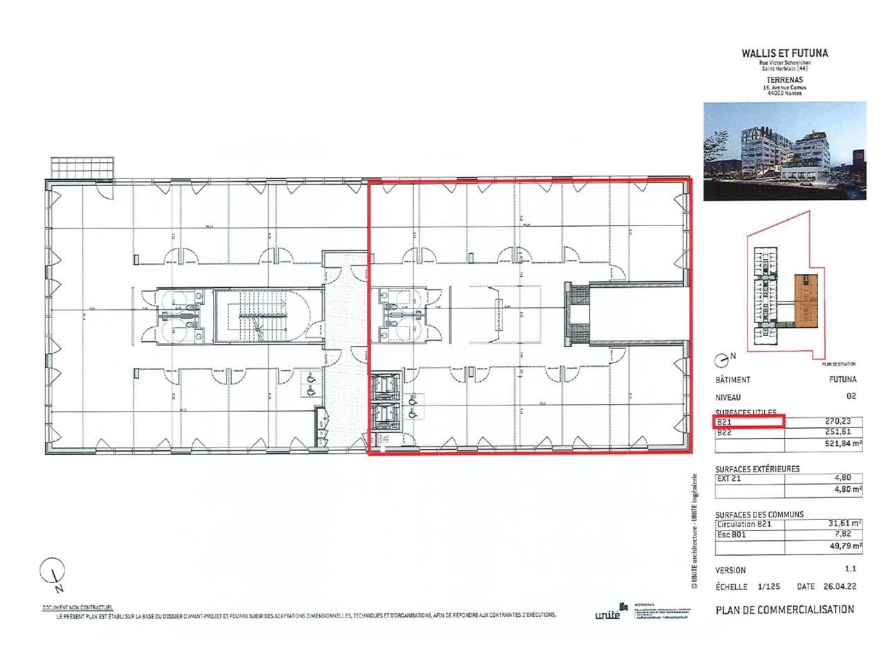
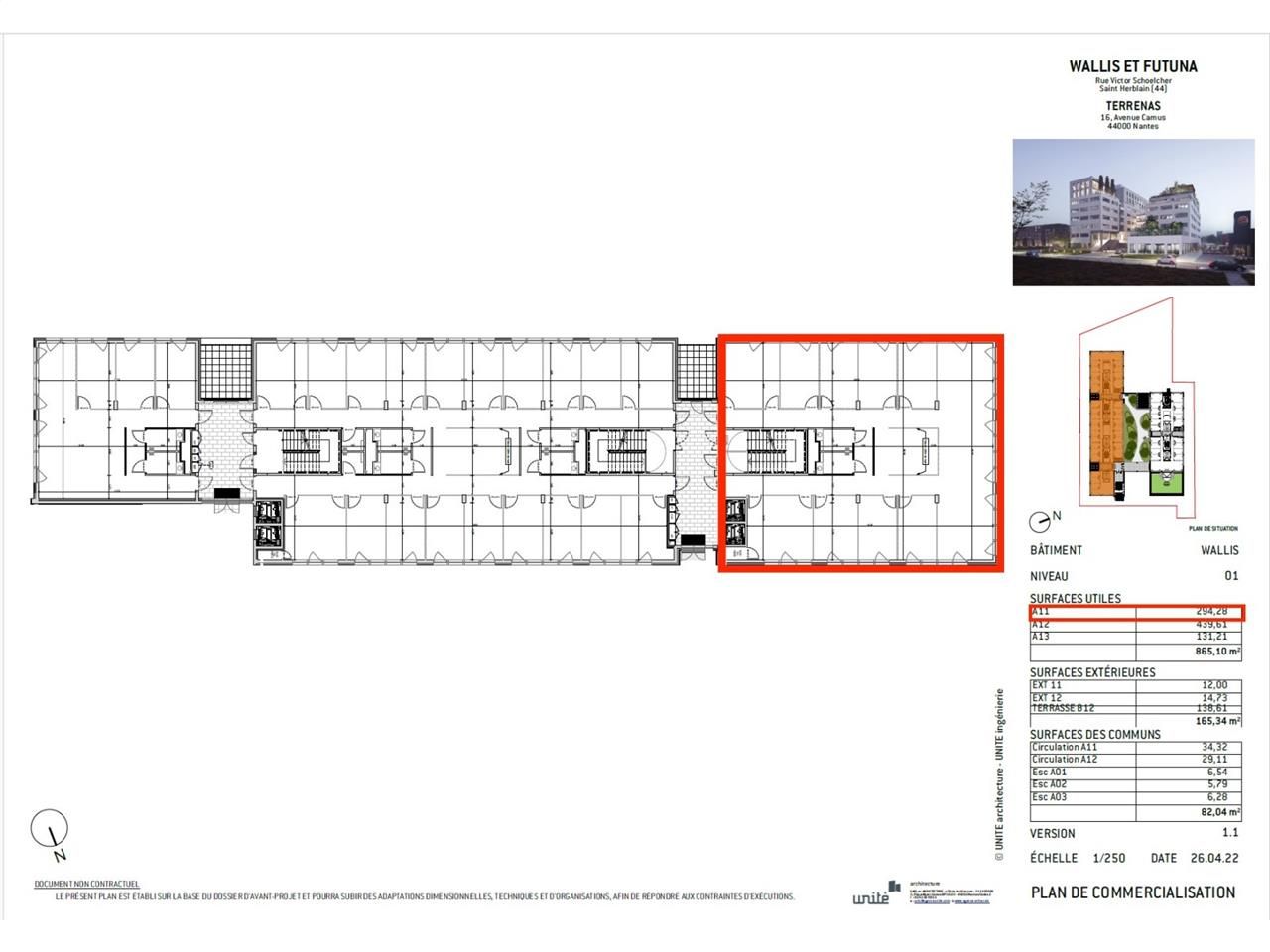
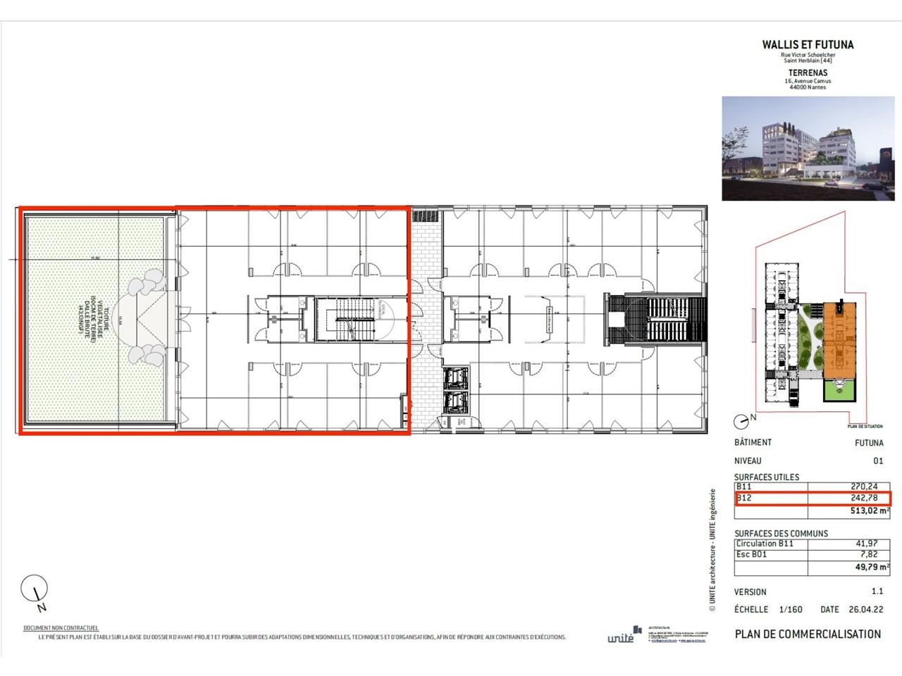
| Étage | Type | Surfaces | Dispo | Loyer | Charges | Type de bailRév. annuelle |
|---|---|---|---|---|---|---|
| 1 | Bureaux | 324,14 | Immédiate | 172 m²/an HT HC | 46 HT/m²/an | 6-9 ansIndice ILAT |
| 4 | Bureaux | 541,5 | Immédiate | 172 m²/an HT HC | 46 HT/m²/an | 6-9 ansIndice ILAT |
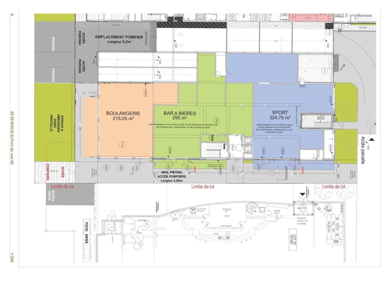
| RDC | Bureaux | 324,73 | Immédiate | 240,2 m²/an HT HC | 46 HT/m²/an | 6-9 ansIndice ILAT |
| RDC | Bureaux | 295 | Immédiate | 264 m²/an HT HC | 46 HT/m²/an | 6-9 ansIndice ILAT |
| 1 | Bureaux | 310,64 | Immédiate | 186 m²/an HT HC | 46 HT/m²/an | 6-9 ansIndice ILAT |
| 2 | Bureaux | 314,91 | Immédiate | 172 m²/an HT HC | 46 HT/m²/an | 6-9 ansIndice ILAT |
| 4 | Bureaux | 316,63 | Immédiate | 172 m²/an HT HC | 46 HT/m²/an | 6-9 ansIndice ILAT |
| 4 | Bureaux | 292,97 | Immédiate | 172 m²/an HT HC | 46 HT/m²/an | 6-9 ansIndice ILAT |
| Bureaux | 23 | Immédiate | 3-6-9 ansIndice ILAT | |||
| Parkings | Immédiate | 900 place/an HT HC | 6-9 ansIndice ILAT |
Régime Fiscal : T.V.A.
Dépôt de garantie : 3 mois de loyer HT/HC
Honoraires : A la charge du preneur.
Prestations :
- Programme Neuf / BREEAM in Use Very Good visé / RT 2012
- Halls d'accueil
- Ascenseurs
- Belle hauteur sous plafond (2,68 m)
- Vitrage toute hauteur
- Plateaux fonctionnels livrés aménagés non cloisonnés
- Gestion technique du bâtiment
- Douches
- Vestiaires
- Système de traitement climatique réversible
- Terrasses accessibles végétalisées dont une mutualisée avec cuisine extérieure (R+5)
- Site végétalisé
- Parkings privatifs en rdc non couverts
- Parking 1 place / 65 m² et bornes électriques
- Parking couverts en R-1 et R-2
- 11 emplacements de parking IRVE
- Loyer : 1100 euros/an HT
- Locaux 2 roues vélos
- Surface RDC : 619,73 m²
Accessibilité:
Tramway Schoelcher (1)
Route N844 à 3 mn
Route N444 à 3mn
SNCF 30 mn en transport en commun
Aeroport 20 mn en voiture
Les informations sur les risques auxquels ce bien est exposé sont disponibles sur le site Géorisques : www.georisques.gouv.fr
72 Parkings int.
Voir plus
Afficher les consommations énergétiques
Favoris
Exporter
Appeler
Contacter
Signaler cette annonce
