Présente à Dijon depuis plus de 30 ans, l''équipe de BNP Paribas Real Estate a une solide connaissance du marché local et de son évolution. Elle se spécialise dans l''accompagnement des entreprises ...
En savoir plus



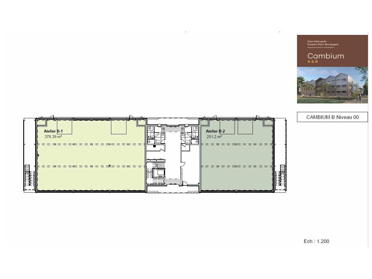
CAMBIUM - Location bureau - 2497 m²
A LOUER
Au coeur de la zone d'activité en cours de développement ECOPARC DIJON BOURGOGNE, sur la commune de Saint Apollinaire, 2 immeubles mixtes activité / bureaux à construire.
Bâtiment d'une superficie totale de 2.496 m² environ comprenant des locaux d'activité en rez-de-chaussée de 669 m² environ et des bureaux en R+1 et R+2 de 1.828 m² environ.
Les bureaux respectent la réglementation du code du travail avec une possibilité de les transformer en ERP sous certaines conditions. Les division des surfaces mentionnées peuvent évoluer et être adaptées aux besoins des utilisateurs.
61 places de parkings extérieures sont associées à chaque bâtiment (1 place pour 33 m² de bureaux et 1 place pour 52 m² de locaux d'activité).
Bâtiment durable :
DES MATÉRIAUX BIOSOURCÉS COMME LE BOIS Cambium s’inscrit dans la démarche du promoteur de développer des solutions toujours plus responsables. Il répond au label français pour les énergies positives et à faible empreinte carbone. Pour ce projet, le promoteur vise la certification BBCA tertiaire neuf version 4.1. Cette certication est en cours auprès de Prestaterre, organisme de certifications pour la performance énergétique, environnementale et sociétale des bâtiments en France.
LABEL BREEAM Very Good - Cor an Shell
RE 2020
Label BBCA
Matériaux pérennes : Les matériaux ont été choisis pour leur respect de l’environnement et pour le confort des usagers : • Pour les surfaces de bureaux, une structure poteaux poutres en bois avec des planchers en CLT, une toiture en plancher caisson bois et des façades à ossature bois, avec une volonté de laisser apparent le bois pour renforcer l’ambiance chaleureuse, reposante et inspirante. • Une structure béton sur le noyau central afin de garantir la stabilité globale de chaque bâtiment. • Des matériaux en façade ne nécessitant que très peu d’entretien et pérennes dans le temps. • Une enveloppe du batiment très performante avec des matériaux biosourcés. • Une conception bioclimatique permettant de viser le niveau Very Good du label BREEAM Core and Shell. • Un traitement d’air par ventilation à double flux avec récupération de chaleur, associée à une PAC air/eau.
Production photovoltaïque : Cambium est équipé d’environ 500 m² de panneaux solaires photovoltaïques.
Architecture consciente : CONFORT BIEN-ÊTRE LUMINOSITÉ TERRASSES EXTÉRIEURES accessibles depuis les bureaux MAÎTRISE DES CHARGES
Mobilité douce et responsable, La mobilité est encouragée par : • 26 places de stationnement électrisables soit 17 % de stationnement équipé de bornes IRVE. • Portes sectionnelles vitrées dans les locaux d’activité. • Un local vélo à l’intérieur des halls et des espaces vélo pour les visiteurs à l’extérieur. • Une volonté d’arborer fortement les espaces extérieurs : protection à terme des façades et des places de stationnement, gestion des îlots de chaleurs, etc.
L’origine de Cambium Le Cambium ( du latin cambiare - changer ), appelé « seconde écorce » ou « écorce intérieur », est une fine couche de cellules secondaires située entre le bois et l’écorce à l’origine de la formation du bois. Son activité présente une certaine plasticité : en modifiant en permanence les propriétés du bois qu’il forme, il permet à l’arbre, durant sa vie, de s’adapter à la plupart des contraintes et variations de son environnement immédiat. Ces propriétés sont en parfaite résonance avec les usages, les fonctionnalités, et les performances environnementales et techniques attendus pour ce projet immobilier, qui porte aujourd’hui ce nom comme une évidence.
Disponibilité: 18 mois après accordHonoraires: 15% HT du loyer HT/HC. à la signature du bail
| Fiche technique du bien | |
|---|---|
| Bus | Flexo arrêt LESCURE puis B11 et B19 |
| Desserte routière | A.R.C. à 700 mètres |
| Accès Pers. Mobilité Réduite | Oui |
| Etat de l'immeuble | Neuf |
| Etat des locaux | Neuf |
| Sécurité | Contrôle d'accès |
| Ascenseur(s) | 1 630 kg |
| Aménagement des bureaux | Espaces Ouverts |
| Hauteur sous-plafond | 2,60 mètre(s) |
| Eclairage Bureaux | non fourni |
| Sol bureaux | à définir |
| Plinthes techniq.périphériques | Oui |
| Sanitaire(s) | Parties communes |
| Autre élément bureau | CTA Double Flux |
| Charpente | Bois type poteaux-poutres / plancher CLT / noyau central béton |
| Couverture | NC |
| Murs | Bardage double peau |
| Sols du bâtiment | Béton |
| Charge au sol RDC | NC |
| Hauteur libre | 4,30 mètre(s) |
| Hauteur sous porte plain-pied | 4,00 mètre(s) |
| Porte(s) d'accès plain-pied | 1 par lot - vitrée en partie haute |
| Accessibilité type véhicules | Moyens porteurs |
| Eclairage naturel | Translucide |
| Puissance électrique | NC |









