Conseil en immobilier d'entreprise, Cushman & Wakefield est un acteur incontournable au rayonnement international. Cushman & Wakefield offre des solutions dans toutes les étapes que comporte un p ...
En savoir plus



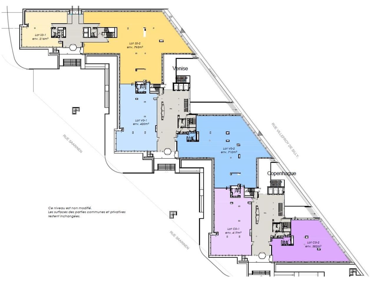
1 998 m² divisible dès 737 m²
HT HC
COPENHAGUE-VENISE-SEVILLE - Location bureau - 1998 m²
Rungis (94150)
Dernière mise à jour : Il y a 8 jours
PARC ICADE - SEVILLE
Immeuble COPENHAGUE-VENISE-SEVILLE
Bureaux à louer à Rungis.
Situé à seulement 7 kilomètres de Paris, le Parc Icade Paris Orly-Rungis est le premier parc tertiaire privé du sud de la capitale. S'étendant sur 58 hectares, il offre plus de 400 000 m² d'espaces construits, accueillant plus de 220 entreprises réparties dans 70 immeubles de bureaux et d'activités.
Nous proposons à la location des bureaux, divisibles à partir de 245 m² au sein de l'immeuble SEVILLE.
Le parc est certifié ISO 14001 et labellisé « Parc d'Excellence », témoignant de son engagement envers l'environnement. Il offre une multitude de services pour le bien-être des occupants : 13 points de restauration variés, crèches, pôle santé, espaces de co-working, salle de sport avec coaching, piste d'athlétisme, potager partagé, espace zen et conciergerie digitale. Une Happiness Manager est dédiée à l'animation de la vie du parc, soutenue par une plateforme digitale communautaire accessible via www.cyg-icade.com.
L'accessibilité est un atout majeur, avec un réseau dense de transports en commun comprenant le RER C (station « La Fraternelle »), le tramway T7 (« Robert Schuman »), ainsi que plusieurs lignes de bus (91.10, 131, 216, 319, 396) et une navette électrique gratuite. Les autoroutes A6, A86, A106 et la nationale N7 assurent une connexion routière optimale, et l'aéroport d'Orly est à proximité immédiate.
Pour plus d'informations ou pour organiser une visite, n'hésitez pas à nous contacter.
Impôt Foncier : 22 €//m²/an
Régime Fiscal : T.V.A.
Dépôt de garantie : 3 mois de loyer HT/HC
Honoraires : 15 % HT du loyer annuel HT/HC à la charge du preneur.
Taxe Bureau : 13 €/m²/an
Information sur le Bail :
Fiscalité parking : 50 euros/unité/an Assurances : 1 euros/HT/HC/m²/an
Prestations :
Accessibilité:
Tram Robert Schuman (T7)
RER Rungis la Fraternelle (C)
Accès routier A6, A106, A86, N7
Bus Traversière (131, 396), Robert Schuman (216, 319, 5154)
Aéroport Aéroport d'Orly
Les informations sur les risques auxquels ce bien est exposé sont disponibles sur le site Géorisques : www.georisques.gouv.fr
Immeuble COPENHAGUE-VENISE-SEVILLE
Bureaux à louer à Rungis.
Situé à seulement 7 kilomètres de Paris, le Parc Icade Paris Orly-Rungis est le premier parc tertiaire privé du sud de la capitale. S'étendant sur 58 hectares, il offre plus de 400 000 m² d'espaces construits, accueillant plus de 220 entreprises réparties dans 70 immeubles de bureaux et d'activités.
Nous proposons à la location des bureaux, divisibles à partir de 245 m² au sein de l'immeuble SEVILLE.
Le parc est certifié ISO 14001 et labellisé « Parc d'Excellence », témoignant de son engagement envers l'environnement. Il offre une multitude de services pour le bien-être des occupants : 13 points de restauration variés, crèches, pôle santé, espaces de co-working, salle de sport avec coaching, piste d'athlétisme, potager partagé, espace zen et conciergerie digitale. Une Happiness Manager est dédiée à l'animation de la vie du parc, soutenue par une plateforme digitale communautaire accessible via www.cyg-icade.com.
L'accessibilité est un atout majeur, avec un réseau dense de transports en commun comprenant le RER C (station « La Fraternelle »), le tramway T7 (« Robert Schuman »), ainsi que plusieurs lignes de bus (91.10, 131, 216, 319, 396) et une navette électrique gratuite. Les autoroutes A6, A86, A106 et la nationale N7 assurent une connexion routière optimale, et l'aéroport d'Orly est à proximité immédiate.
Pour plus d'informations ou pour organiser une visite, n'hésitez pas à nous contacter.
| Étage | Type | Surfaces | Dispo | Loyer | Charges | Type de bailRév. annuelle |
|---|---|---|---|---|---|---|
| R+2 | Bureaux | 732 | Immédiate | 190 HT/HC/m²/an | Sur l'indice ILAT | |
| R+2 | Bureaux | 368 | Immédiate | 190 HT/HC/m²/an | Sur l'indice ILAT | |
| R+2 | Bureaux | 161 | Immédiate | 190 HT/HC/m²/an | Sur l'indice ILAT | |
| Total Cellule | Bureaux | 1261 | Immédiate | 190 HT/HC/m²/an | 50 HT/m²/an | 3-6-9 ansSur l'indice ILAT |
| R+3 | Bureaux | 737 | Immédiate | 190 HT/HC/m²/an | 50 HT/m²/an | 3-6-9 ansSur l'indice ILAT |
| SS | Arch./Reser. | 23 | Immédiate | 190 HT/HC/m²/an | 50 HT/m²/an | 3-6-9 ansSur l'indice ILAT |
| SS | Arch./Reser. | 20 | Immédiate | 190 HT/HC/m²/an | 50 HT/m²/an | 3-6-9 ansSur l'indice ILAT |
| Etage -2 | Parkings | Immédiate | 1000 HT/HC/place/an | 3-6-9 ansSur l'indice ILAT |
Impôt Foncier : 22 €//m²/an
Régime Fiscal : T.V.A.
Dépôt de garantie : 3 mois de loyer HT/HC
Honoraires : 15 % HT du loyer annuel HT/HC à la charge du preneur.
Taxe Bureau : 13 €/m²/an
Information sur le Bail :
Fiscalité parking : 50 euros/unité/an Assurances : 1 euros/HT/HC/m²/an
Prestations :
- Le Parc Icade Paris Orly-Rungis, à 7 km de Paris, est le premier parc tertiaire privé du sud francilien
- Il rassemble 18 000 emplois et plus de 220 entreprises, dont des leaders tels qu'Orano, Ricoh, Corsair, Thalès ou Vinci
- Véritable écosystème tertiaire, il conjugue performance économique et qualité de vie : navette électrique, centre d'affaires, restaurants, espaces bien-être et sportifs, crèche, cabinet médical et hôtels 3 & 4 étoiles
- Engagé pour l'environnement, le parc est certifié EcoJardin et Parc Refuge LPO, affirmant son engagement en faveur de la biodiversité et des espaces verts durables
- Un cadre de travail complet, responsable et attractif, pensé pour simplifier le quotidien des entreprises et de leurs collaborateurs
- Excellent capacitaire : 1 poste de travail pour 11 m²
- Parkings en sous-sol : 1 place pour 55 m² loués
- Locaux climatisés
- Hauteur libre de 2,70 m
- Profondeur plateaux de 16 et 18 mètres
- Faux plancher technique
- contrôle d'accès et vidéo surveillance
- Equipe de sécurité 24h/24 sur le Parc
Accessibilité:
Tram Robert Schuman (T7)
RER Rungis la Fraternelle (C)
Accès routier A6, A106, A86, N7
Bus Traversière (131, 396), Robert Schuman (216, 319, 5154)
Aéroport Aéroport d'Orly
Les informations sur les risques auxquels ce bien est exposé sont disponibles sur le site Géorisques : www.georisques.gouv.fr
Voir plus
Afficher les consommations énergétiques
Localisation et transport aux alentours
- Robert Schuman - Parc SILIC Centre189m (3min à pied)7
- Saarinen - Parc SILIC Nord279m (4min à pied)7
- Porte de Rungis550m (8min à pied)7
Favoris
Exporter
Appeler
Contacter
Signaler cette annonce










