Conseil en immobilier d'entreprise, Cushman & Wakefield est un acteur incontournable au rayonnement international. Cushman & Wakefield offre des solutions dans toutes les étapes que comporte un p ...
En savoir plus



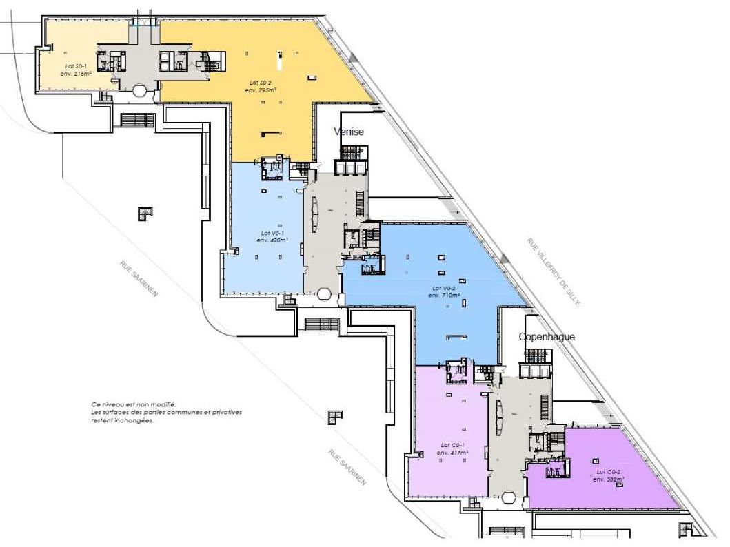
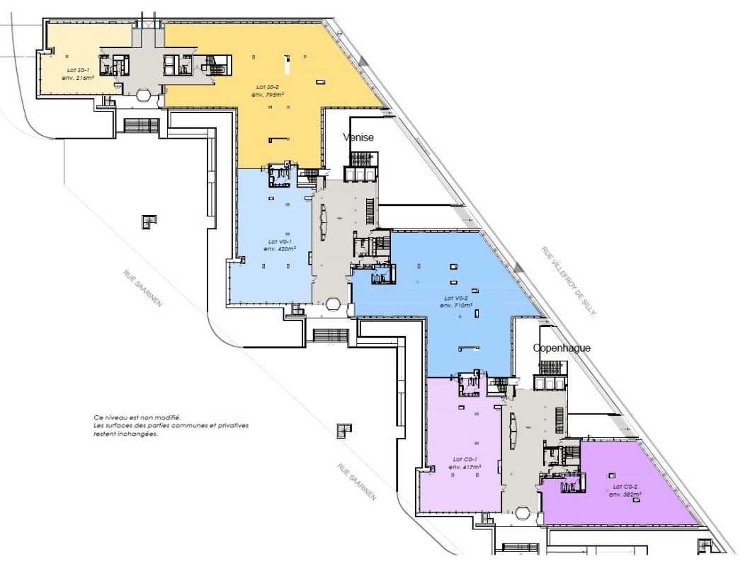
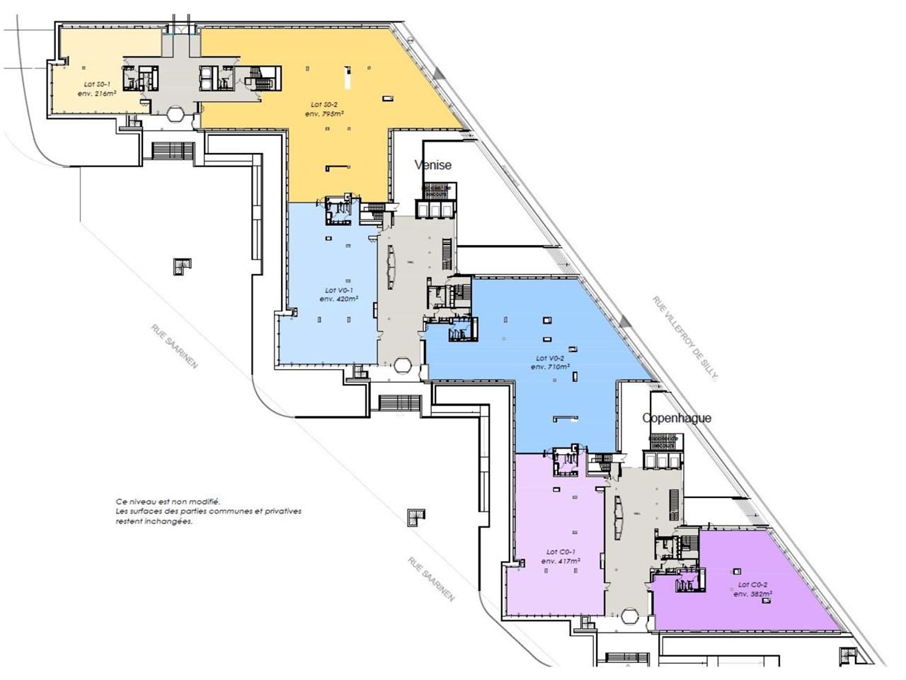
11 126 m² divisible dès 160 m²
HT HC
COPENHAGUE-VENISE-SEVILLE - Location bureau - 11126 m²
Rungis (94150)
Dernière mise à jour : Il y a 1 mois
PARC ICADE - VENISE
Immeuble COPENHAGUE-VENISE-SEVILLE
Bureaux à louer à Rungis.
Situé à seulement 7 kilomètres de Paris, le Parc Icade Paris Orly-Rungis est le premier parc tertiaire privé du sud de la capitale. S'étendant sur 58 hectares, il offre plus de 400 000 m² d'espaces construits, accueillant plus de 220 entreprises réparties dans 70 immeubles de bureaux et d'activités.
Nous proposons à la location des bureaux, divisibles à partir de 700 m² ou pouvant être reliés, au sein de l'immeuble VENISE. Possibilité de coupler à l'immeuble COPENHAGUE afin d'avoir 6 000 m² de bureaux.
Le parc est certifié ISO 14001 et labellisé « Parc d'Excellence », témoignant de son engagement envers l'environnement. Il offre une multitude de services pour le bien-être des occupants : 13 points de restauration variés, crèches, pôle santé, espaces de co-working, salle de sport avec coaching, piste d'athlétisme, potager partagé, espace zen et conciergerie digitale. Une Happiness Manager est dédiée à l'animation de la vie du parc, soutenue par une plateforme digitale communautaire accessible via www.cyg-icade.com.
L'accessibilité est un atout majeur, avec un réseau dense de transports en commun comprenant le RER C (station « La Fraternelle »), le tramway T7 (« Robert Schuman »), ainsi que plusieurs lignes de bus (91.10, 131, 216, 319, 396) et une navette électrique gratuite. Les autoroutes A6, A86, A106 et la nationale N7 assurent une connexion routière optimale, et l'aéroport d'Orly est à proximité immédiate.
Pour plus d'informations ou pour organiser une visite, n'hésitez pas à nous contacter.
Impôt Foncier : 22 €//m²/an
Régime Fiscal : T.V.A.
Dépôt de garantie : 3 mois de loyer HT/HC
Honoraires : 15 % HT du loyer annuel HT/HC à la charge du preneur.
Taxe Bureau : 13 €/m²/an
Information sur le Bail :
Fiscalité parking : 50 euros/unité/an Assurances : 1 euros/HT/HC/m²/an
Prestations :
Accessibilité:
RER La Fraternelle (RER C)
Tram Saarineen (T7)
Bus Navette électrique
Aéroport Aéroport d'Orly
Accès routier A6-A106-A86-N7
Les informations sur les risques auxquels ce bien est exposé sont disponibles sur le site Géorisques : www.georisques.gouv.fr
Immeuble COPENHAGUE-VENISE-SEVILLE
Bureaux à louer à Rungis.
Situé à seulement 7 kilomètres de Paris, le Parc Icade Paris Orly-Rungis est le premier parc tertiaire privé du sud de la capitale. S'étendant sur 58 hectares, il offre plus de 400 000 m² d'espaces construits, accueillant plus de 220 entreprises réparties dans 70 immeubles de bureaux et d'activités.
Nous proposons à la location des bureaux, divisibles à partir de 700 m² ou pouvant être reliés, au sein de l'immeuble VENISE. Possibilité de coupler à l'immeuble COPENHAGUE afin d'avoir 6 000 m² de bureaux.
Le parc est certifié ISO 14001 et labellisé « Parc d'Excellence », témoignant de son engagement envers l'environnement. Il offre une multitude de services pour le bien-être des occupants : 13 points de restauration variés, crèches, pôle santé, espaces de co-working, salle de sport avec coaching, piste d'athlétisme, potager partagé, espace zen et conciergerie digitale. Une Happiness Manager est dédiée à l'animation de la vie du parc, soutenue par une plateforme digitale communautaire accessible via www.cyg-icade.com.
L'accessibilité est un atout majeur, avec un réseau dense de transports en commun comprenant le RER C (station « La Fraternelle »), le tramway T7 (« Robert Schuman »), ainsi que plusieurs lignes de bus (91.10, 131, 216, 319, 396) et une navette électrique gratuite. Les autoroutes A6, A86, A106 et la nationale N7 assurent une connexion routière optimale, et l'aéroport d'Orly est à proximité immédiate.
Pour plus d'informations ou pour organiser une visite, n'hésitez pas à nous contacter.
| Étage | Type | Surfaces | Dispo | Loyer | Charges | Type de bailRév. annuelle |
|---|---|---|---|---|---|---|
| R+4 | Bureaux | 443 | 190 HT/HC/m²/an | 50 HT/m²/an | 3-6-9 ansSur l'indice ILAT | |
| R+4 | Bureaux | 237 | 190 HT/HC/m²/an | 50 HT/m²/an | 3-6-9 ansSur l'indice ILAT | |
| R+3 | Bureaux | 802 | 190 HT/HC/m²/an | 50 HT/m²/an | 3-6-9 ansSur l'indice ILAT | |
| R+3 | Bureaux | 359 | 190 HT/HC/m²/an | 50 HT/m²/an | 3-6-9 ansSur l'indice ILAT | |
| R+2 | Bureaux | 796 | Immédiate | 190 HT/HC/m²/an | 50 HT/m²/an | 3-6-9 ansSur l'indice ILAT |
| R+2 | Bureaux | 362 | 190 HT/HC/m²/an | 50 HT/m²/an | 3-6-9 ansSur l'indice ILAT | |
| R+1 | Bureaux | 618 | Immédiate | 190 HT/HC/m²/an | 50 HT/m²/an | 3-6-9 ansSur l'indice ILAT |
| R+1 | Bureaux | 362 | Immédiate | 190 HT/HC/m²/an | 50 HT/m²/an | 3-6-9 ansSur l'indice ILAT |
| RdC | Bureaux | 499 | 190 HT/HC/m²/an | 50 HT/m²/an | 3-6-9 ansSur l'indice ILAT | |
| RdC | Bureaux | 458 | 190 HT/HC/m²/an | 50 HT/m²/an | 3-6-9 ansSur l'indice ILAT | |
| R+1 | Bureaux | 709 | 190 HT/HC/m²/an | 50 HT/m²/an | 3-6-9 ansSur l'indice ILAT | |
| R+1 | Bureaux | 648 | 190 HT/HC/m²/an | 50 HT/m²/an | 3-6-9 ansSur l'indice ILAT | |
| R+3 | Bureaux | 738 | Immédiate | 190 HT/HC/m²/an | 50 HT/m²/an | 3-6-9 ansSur l'indice ILAT |
| R+3 | Bureaux | 368 | 190 HT/HC/m²/an | 50 HT/m²/an | 3-6-9 ansSur l'indice ILAT | |
| R+3 | Bureaux | 160 | 190 HT/HC/m²/an | 50 HT/m²/an | 3-6-9 ansSur l'indice ILAT | |
| R+2 | Bureaux | 733 | Immédiate | 190 HT/HC/m²/an | 50 HT/m²/an | 3-6-9 ansSur l'indice ILAT |
| R+2 | Bureaux | 368 | Immédiate | 190 HT/HC/m²/an | 50 HT/m²/an | 3-6-9 ansSur l'indice ILAT |
| R+2 | Bureaux | 161 | 190 HT/HC/m²/an | 50 HT/m²/an | 3-6-9 ansSur l'indice ILAT | |
| R+1 | Bureaux | 907 | 190 HT/HC/m²/an | 50 HT/m²/an | 3-6-9 ansSur l'indice ILAT | |
| R+1 | Bureaux | 249 | 190 HT/HC/m²/an | 50 HT/m²/an | 3-6-9 ansSur l'indice ILAT | |
| RdC | Bureaux | 906 | 190 HT/HC/m²/an | 50 HT/m²/an | 3-6-9 ansSur l'indice ILAT | |
| RdC | Bureaux | 243 | 190 HT/HC/m²/an | 50 HT/m²/an | 3-6-9 ansSur l'indice ILAT | |
| Parkings | 1000 HT/HC/U/an | 3-6-9-12 ansSur l'indice ILAT |
Impôt Foncier : 22 €//m²/an
Régime Fiscal : T.V.A.
Dépôt de garantie : 3 mois de loyer HT/HC
Honoraires : 15 % HT du loyer annuel HT/HC à la charge du preneur.
Taxe Bureau : 13 €/m²/an
Information sur le Bail :
Fiscalité parking : 50 euros/unité/an Assurances : 1 euros/HT/HC/m²/an
Prestations :
- Le Parc Icade Paris Orly-Rungis, situé à seulement 7 km de Paris, est le premier parc tertiaire privé du sud francilien. Il accueille 18 000 emplois et plus de 220 entreprises issues de secteurs variés
- Des acteurs de renom tels qu'Abbott/Abbvie, Orano, Bridgestone, Corsair, École Lenôtre, Olympus, Ricoh, System U, Thalès ou encore Vinci y ont choisi des espaces adaptés à leurs besoins
- Le Parc offre une large gamme de services pour le confort des entreprises et de leurs collaborateurs : navette électrique, centre d'affaires, restaurants, espaces bien-être et sportifs, crèche, cabinet médical et hôtels 3 et 4 étoiles
- Des commodités pratiques complètent cette offre, comme une poste, un pressing, un garage, des solutions de mobilité douce et une station électrique.
- Hall indépendant
- Climatisation
- Plateaux niveaux courants : 18 m (RDC à R+3)
- Plateaux dernier niveau : 16 m (en R+4)
- Terrasse longeant les 3 bât
- Electricité : courants forts et Eclairage : bureau 350 lux.
- Profondeur plateaux de 16 et 18 mètres Hauteur libre de 2,70 m entre faux plafond et faux plancher
- Surface RDC : 2106 m²
Accessibilité:
RER La Fraternelle (RER C)
Tram Saarineen (T7)
Bus Navette électrique
Aéroport Aéroport d'Orly
Accès routier A6-A106-A86-N7
Les informations sur les risques auxquels ce bien est exposé sont disponibles sur le site Géorisques : www.georisques.gouv.fr
Parking(s) en sous-sol
Voir plus
Afficher les consommations énergétiques
Localisation et transport aux alentours
- Robert Schuman - Parc SILIC Centre189m (3min à pied)7
- Saarinen - Parc SILIC Nord279m (4min à pied)7
- Porte de Rungis550m (8min à pied)7
Favoris
Exporter
Appeler
Contacter
Signaler cette annonce










