L’agence CBRE Rennes conseille et accompagne les chefs d’entreprise dans leurs projets immobiliers quels que soient leur taille et leur secteur d’activité. Spécialistes de la transaction de bureaux ...
En savoir plus

214 m²
HT HC
Location bureau - 214 m²
Rennes (35000)
Dernière mise à jour : Il y a 4 jours
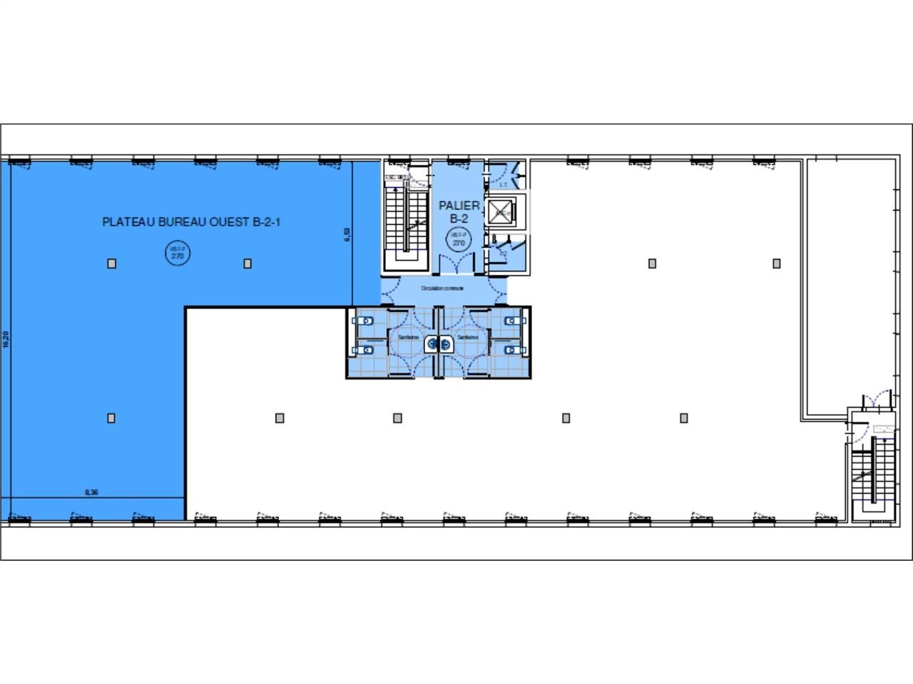
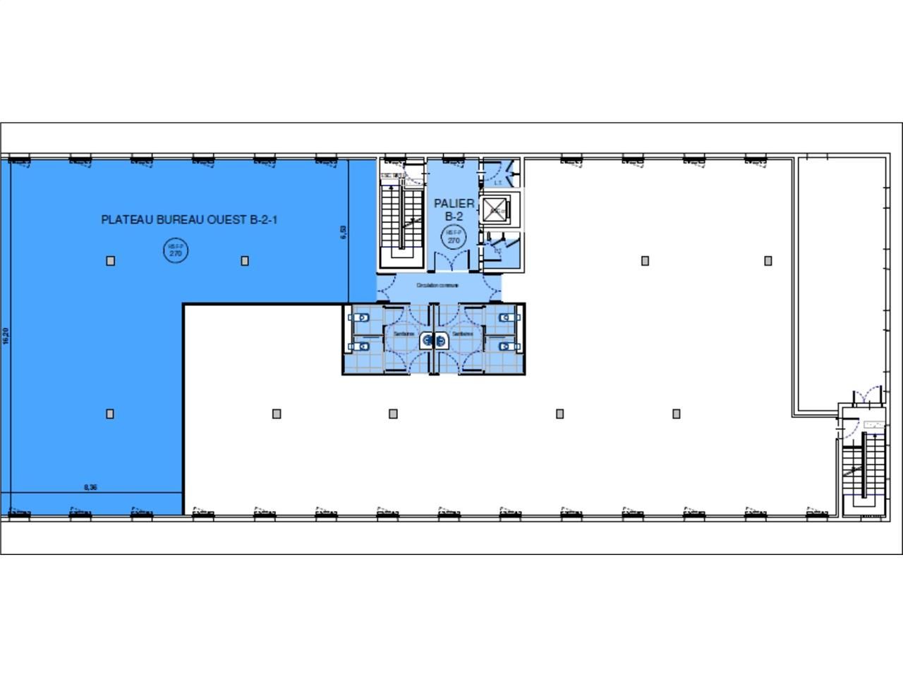
Très bien situé, en façade de la ZAC Atalante Champeaux et du périphérique rennais, l'immeuble de bureaux WINDOW dispose d'une belle architecture avec une double peau en verre. CBRE RENNES vous propose au sein d'un immeuble neuf, un plateau de bureaux à louer de 213.65 m² .
Cet immeuble est très bien desservi, que ce soit par les grands axes, les bus ou le métro.
Régime Fiscal : T.V.A.
Dépôt de garantie : 3 mois de loyer HT/HC
Honoraires : 15% du loyer annuel HT/HC - A la charge du preneur
Prestations :
Accessibilité:
Bus Chambre Agriculture (11 & 14)
Route Rocade Ouest (Porte de Lorient)
Metro Kennedy (a)
Les informations sur les risques auxquels ce bien est exposé sont disponibles sur le site Géorisques : www.georisques.gouv.fr
Cet immeuble est très bien desservi, que ce soit par les grands axes, les bus ou le métro.
| Étage | Type | Surfaces | Dispo | Loyer | Charges | Type de bailRév. annuelle |
|---|---|---|---|---|---|---|
| 2 | Bureaux | 213,65 | Immédiate | 165 m²/an HT HC | 45 HT/m²/an | 3-6-9 ansIndice ILAT |
| Parkings | Immédiate | 3-6-9 ansIndice ILAT |
Régime Fiscal : T.V.A.
Dépôt de garantie : 3 mois de loyer HT/HC
Honoraires : 15% du loyer annuel HT/HC - A la charge du preneur
Prestations :
- Immeuble neuf
- BREEAM VERY GOOD
- Belle architecture
- Double peau en verre
- Locaux aménagés
- Large facilité d'aménagement
- Climatisation air rafraichi avec distribution 2 tubes
- Faux plafonds
- Eclairage : dalles leds
- Sol moquette
- Sanitaires communs
- Bon ratio m²/ parking : 1/50 m²
- Immeuble indépendant
- Surface RDC : 0 m²
Accessibilité:
Bus Chambre Agriculture (11 & 14)
Route Rocade Ouest (Porte de Lorient)
Metro Kennedy (a)
Les informations sur les risques auxquels ce bien est exposé sont disponibles sur le site Géorisques : www.georisques.gouv.fr
Emplacement(s) de Parking: 4 places
Voir plus
Afficher les consommations énergétiques
Favoris
Exporter
Appeler
Contacter
Signaler cette annonce










