L''agence est située à la ZAC de la Poterie au 11 rue Louis Kerautret Botmel à Rennes.Elle est constituée d''une équipe polyvalente de professionnels de l''immobilier d''entreprise. Nous accompagno ...
En savoir plus

2 482 m² divisible dès 826 m²
HT HC
Location bureau - 2482 m²
Rennes (35000)
Dernière mise à jour : Il y a 13 jours
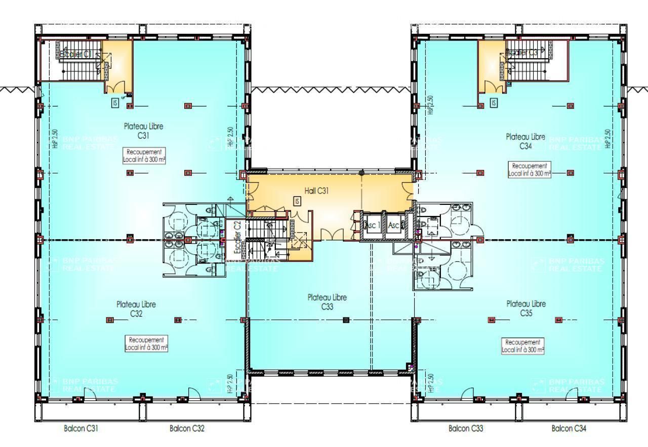
BUREAUX A LOUER - RENNES OUEST BNP Paribas Real Estate vous propose à la location un ensemble immobilier neuf composé de deux batiments de bureaux totalisant 3085 m² divisibles à partir de 734m².
la localisation géographique du site est idéale car les bureaux se situent sur l'axe Rennes - Lorient et à toute proximité de la rocade.
Les bureaux seront spacieux, lumineux avec une belle hauteur sous plafond.
154 places de parkings en extérieur et en sous-sol complètent ce bien.
Idéalement située en bordure de l'axe Rennes-Lorient (RN24), la ZI Ouest est un secteur mixte regroupant bureaux de tous standings et locaux d'activités. La proximité immédiate de la rocade, de la route de Lorient et du centre-ville sont des atouts importants de la ZI Ouest : de nombreux restaurants, hôtels et services sont présents dans la zone.
Disponibilité: ImmédiateHonoraires: 30% HT du loyer HT/HC. à la signature du bail
| Fiche technique du bien | |
|---|---|
| Bus | 150 m |
| Aéroport | Rennes St Jacques en 14 minutes en voiture 7 km |
| Gare | Pontchaillou 3 km |
| Accès Pers. Mobilité Réduite | Oui |
| Etat de l'immeuble | Neuf |
| Etat du terrain | Goudronné |
| Immeuble indépendant | Oui |
| Type chauffage | ventilation mécanique |
| Source chauffage | Electrique et rafraichissement 3 tubes de type Thermodynamique |
| Sécurité | Contrôle d'accès alarme et détection incendie |
| Ascenseur(s) | Oui |
| Hall d'accueil | Oui |
| Câblage informatique | Oui |
| Aménagement des bureaux | aménagés non cloisonnés |
| Faux plafond | Dal. fibres minéral. 60x60 |
| Eclairage Bureaux | Luminaires encastrés LED |
| Sol bureaux | Carrelage , dalles PVC |
| Plinthes techniq.périphériques | 3 PC par poste de travail |
Afficher les consommations énergétiques
Surfaces divisibles : 3
| Surface | LoyerHT/HC/m²/an | Étage / Batiment | Infos complémentaires |
| 828 m² | N.C | RDC | Batiment A - RDC |
| 828 m² | N.C | RDC | Batiment B - RDc |
| 826 m² | N.C | R+2 | Bâtiment A - R+2 |
Favoris
Exporter
Appeler
Contacter
Signaler cette annonce










