L’agence CBRE Rennes conseille et accompagne les chefs d’entreprise dans leurs projets immobiliers quels que soient leur taille et leur secteur d’activité. Spécialistes de la transaction de bureaux ...
En savoir plus

381 m²
HT HC
Location bureau - 381 m²
Rennes (35000)
Dernière mise à jour : Hier
Immeuble LE OUESSANT
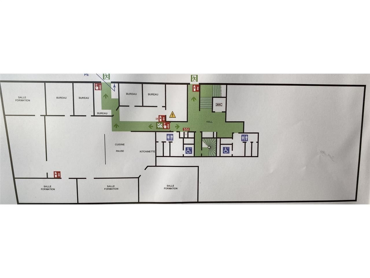
Au coeur du parc tertiaire Atalante Champeaux à l'ouest de Rennes, CBRE vous propose un plateau de bureaux à la location situé au rez-de-chaussée d'un bâtiment tertiaire. Un environnement dynamique et reconnu pour son attractivité auprès des entreprises innovantes. Vous disposerez de 381 m² (surface utile) à compter du 1er janvier 2026.
Dotée de 7 places de parking aérien et parkings en sous-sol.
Ce plateau offre une belle visibilité, un accès facile et un cadre de travail agréable, idéal pour accueillir vos équipes dans un secteur tertiaire en plein essor.
Accès rapide à la rocade et aux transports en commun.
Régime Fiscal : T.V.A.
Dépôt de garantie : 3 mois de loyer HT/HC
Paiement Loyer : trimestriel
Honoraires : 30 % HT du loyer annuel HT HC à la charge du preneur.
Information sur le Bail :
Frais de gérance : 5% HT du loyer annuel HT HC Assurance Bailleur : montant à communiquer Frais de rédaction d'acte en sus charge preneur
Prestations :
Accessibilité:
Bus Colin (14, 53, 76, 210), Berry (52, 65, 77, 81, 82)
Route Accès Rocade Ouest à 5 min
SNCF Gare de RENNES à 22 min en tps en commun
Aeroport à 15 min en voiture
Les informations sur les risques auxquels ce bien est exposé sont disponibles sur le site Géorisques : www.georisques.gouv.fr
Au coeur du parc tertiaire Atalante Champeaux à l'ouest de Rennes, CBRE vous propose un plateau de bureaux à la location situé au rez-de-chaussée d'un bâtiment tertiaire. Un environnement dynamique et reconnu pour son attractivité auprès des entreprises innovantes. Vous disposerez de 381 m² (surface utile) à compter du 1er janvier 2026.
Dotée de 7 places de parking aérien et parkings en sous-sol.
Ce plateau offre une belle visibilité, un accès facile et un cadre de travail agréable, idéal pour accueillir vos équipes dans un secteur tertiaire en plein essor.
Accès rapide à la rocade et aux transports en commun.
| Étage | Type | Surfaces | Dispo | Loyer | Charges | Type de bailRév. annuelle |
|---|---|---|---|---|---|---|
| RDC | Bureaux | 381 | Immédiate | 150 m²/an HT HC | 3-6-9 ansIndice ILAT |
Régime Fiscal : T.V.A.
Dépôt de garantie : 3 mois de loyer HT/HC
Paiement Loyer : trimestriel
Honoraires : 30 % HT du loyer annuel HT HC à la charge du preneur.
Information sur le Bail :
Frais de gérance : 5% HT du loyer annuel HT HC Assurance Bailleur : montant à communiquer Frais de rédaction d'acte en sus charge preneur
Prestations :
- Bureaux cloisonnés / ouverts
- Open space
- Salle de réunion
- 9 bureaux dont une grande salle de réunions et un grand open space
- Local technique / archives
- Espace détente, cuisine / pause
- Entrée accueil
- Câblés
- Cloisonnement de qualité
- Belles prestations
- 7 places de stationnement aériens et 5 stationnements en sous-sol.
- Immeuble indépendant
- Surface RDC : 381 m²
Accessibilité:
Bus Colin (14, 53, 76, 210), Berry (52, 65, 77, 81, 82)
Route Accès Rocade Ouest à 5 min
SNCF Gare de RENNES à 22 min en tps en commun
Aeroport à 15 min en voiture
Les informations sur les risques auxquels ce bien est exposé sont disponibles sur le site Géorisques : www.georisques.gouv.fr
Voir plus
Afficher les consommations énergétiques
Localisation et transport aux alentours
- J.F. Kennedy908m (14min à pied)A
Favoris
Exporter
Appeler
Contacter
Signaler cette annonce










