L’agence CBRE Nantes conseille et accompagne les chefs d’entreprise dans leurs projets immobiliers quels que soient leur taille et leur secteur d’activité. Spécialistes de la transaction de bureaux ...
En savoir plus

2 475 m² divisible dès 265 m²
HT HC
Location bureau - 2475 m²
Orvault (44700)
Dernière mise à jour : Il y a 9 mois
Orvault, dans une zone d'activité, au pied du périphérique ouest, sont à louer plateaux de bureaux dans un immeuble qui bénéficient d'une excellente visibilité. Ces surfaces climatisées seront livrées en espace ouvert.
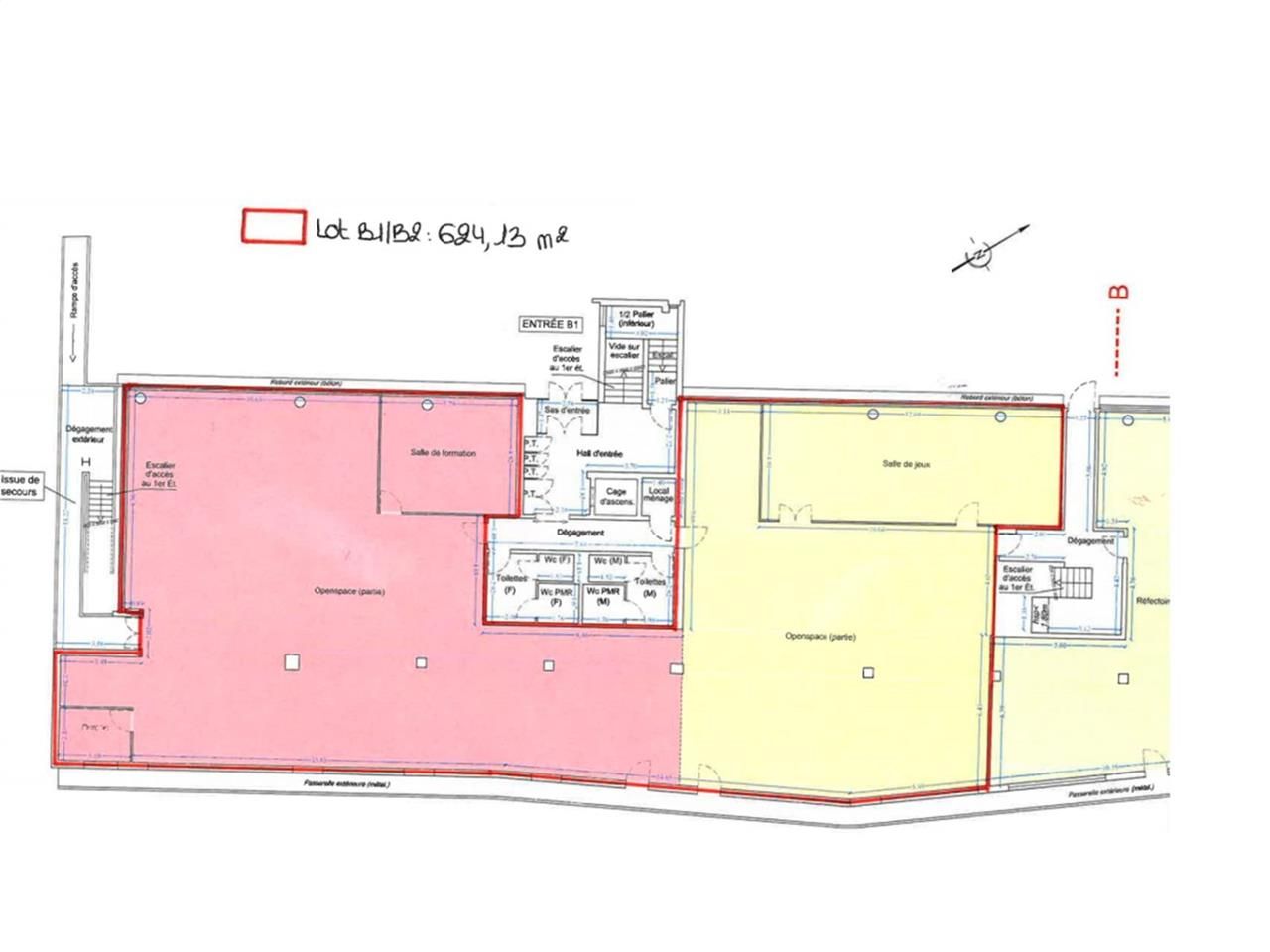
Il s'agit d'un immeuble d'environ 2 000 m² pouvant fonctionner de manière indépendante ou faire l'objet d'une division par demi-plateaux. Ces locaux lumineux sont climatisés et offrent une grande flexibilité d'aménagement. Un excellent ratio parking vient compléter cette offre. (1 place/23 m²)
Impôt Foncier : 13,45 €/m² / an / HT
Régime Fiscal : T.V.A.
Dépôt de garantie : 3 mois de loyer HT/HC
Honoraires : A la charge du preneur.
Prestations :
Accessibilité:
Accés routier :
Autoroute A82 et périphérique nantais directement accessibles (Porte d'Orvault).
La route de Vannes à 1km permet de rejoindre le centre-ville de Nantes.
Transports:
Lignes de bus n°89 arrêt "Antons" situé aux pieds de l'actif étudié.
Gare SNCF de Nantes située à 9 kilomètres
Les informations sur les risques auxquels ce bien est exposé sont disponibles sur le site Géorisques : www.georisques.gouv.fr
Il s'agit d'un immeuble d'environ 2 000 m² pouvant fonctionner de manière indépendante ou faire l'objet d'une division par demi-plateaux. Ces locaux lumineux sont climatisés et offrent une grande flexibilité d'aménagement. Un excellent ratio parking vient compléter cette offre. (1 place/23 m²)
| Étage | Type | Surfaces | Dispo | Loyer | Charges | Type de bailRév. annuelle |
|---|---|---|---|---|---|---|
| RDC | Bureaux | 612 | Immédiate | 125 m²/an HT HC | 29,1 HT/m²/an | 3-6-9 ansIndice ILAT |
| RDC | Bureaux | 359 | Immédiate | 125 m²/an HT HC | 29,1 HT/m²/an | 3-6-9 ansIndice ILAT |
| RDC | Bureaux | 265 | Immédiate | 125 m²/an HT HC | 29,1 HT/m²/an | 3-6-9 ansIndice ILAT |
| 1 | Bureaux | 634 | Immédiate | 125 m²/an HT HC | 32,9 HT/m²/an | 3-6-9 ansIndice ILAT |
| 2 | Bureaux | 605 | Immédiate | 125 U/an HT HC | 32,9 HT/U/an | 3-6-9 ansIndice ILAT |
| Parkings | Immédiate | 500 U/an HT HC | 3-6-9 ansIndice ILAT | |||
| Parkings | Immédiate | 250 U/an HT HC | 3-6-9 ansIndice ILAT |
Impôt Foncier : 13,45 €/m² / an / HT
Régime Fiscal : T.V.A.
Dépôt de garantie : 3 mois de loyer HT/HC
Honoraires : A la charge du preneur.
Prestations :
- Ascenseur
- Accès sécurisé
- Chauffage/climatisation : groupe réversible en toiture
- Sanitaires sur les paliers
- Moquette
- Faux-plafonds
- Grande flexibilité d'aménagement
- Locaux lumineux
- Très bon ratio parking : 1/23 m²
- Surface RDC : 1236 m²
Accessibilité:
Accés routier :
Autoroute A82 et périphérique nantais directement accessibles (Porte d'Orvault).
La route de Vannes à 1km permet de rejoindre le centre-ville de Nantes.
Transports:
Lignes de bus n°89 arrêt "Antons" situé aux pieds de l'actif étudié.
Gare SNCF de Nantes située à 9 kilomètres
Les informations sur les risques auxquels ce bien est exposé sont disponibles sur le site Géorisques : www.georisques.gouv.fr
20 Parkings int. 77 Parkings ext.
Voir plus
Afficher les consommations énergétiques
Favoris
Exporter
Appeler
Contacter
Signaler cette annonce










