L’agence CBRE Nice-Sophia Antipolis conseille et accompagne les chefs d’entreprise dans leurs projets immobiliers quels que soient leur taille et leur secteur d’activité. Spécialistes de la transac ...
En savoir plus

124 m²
HT HC
Location bureau - 124 m²
Nice (06000)
Dernière mise à jour : Il y a 2 jours
BUREAUX A LOUER - NICE CARABACEL
NICE CENTRE - CARABACEL (06000) - CBRE vous propose une opportunité unique: un magnifique bureau de 124 m², disponible à la location, niché au 1er étage d'un très bel immeuble niçois. Entièrement rénové, ce bureau à louer offre un confort moderne avec son espace détente et cuisine intégrée, et assure une accessibilité optimale grâce à de nombreux parkings publics à proximité. Un cadre idéal pour votre activité !
Environnement offrant une visibilité et une accessibilité optimales dans un cadre de travail prestigieux, dynamique et connecté.
C'est une excellente option pour les entreprises de services, les professions libérales, les sociétés de conseil, les agences immobilières, ou toute entité souhaitant bénéficier d'une adresse centrale et reconnue sur la Côte d'Azur.
Si ce bureau à louer
à NICE CENTRE CARABACEL (06000) vous intéresse ou si vous souhaitez obtenir plus d'informations, n'hésitez pas à nous contacter aujourd'hui pour organiser une visite et bénéficier de toutes les informations nécessaires pour votre projet immobilier.
Impôt Foncier : 1400 €/an
Régime Fiscal : T.V.A.
Dépôt de garantie : 3 mois de loyer HT/HC
Paiement Loyer : trimestriel
Honoraires : 15% HT du loyer annuel HT/HC à la charge du preneur
Taxe Bureau : 0,94 €/m²/an
Prestations :
Accessibilité:
Autoroute Autoroute A8
Route Voie Mathis
Route Promenade des Anglais
Bus Réseau Urbain
Tramway Lignes 2 et 3 à 2 minutes
SNCF Nice Ville à 5 minutes
Aeroport Nice Côte d'Azur à 15 min
Les informations sur les risques auxquels ce bien est exposé sont disponibles sur le site Géorisques : www.georisques.gouv.fr
NICE CENTRE - CARABACEL (06000) - CBRE vous propose une opportunité unique: un magnifique bureau de 124 m², disponible à la location, niché au 1er étage d'un très bel immeuble niçois. Entièrement rénové, ce bureau à louer offre un confort moderne avec son espace détente et cuisine intégrée, et assure une accessibilité optimale grâce à de nombreux parkings publics à proximité. Un cadre idéal pour votre activité !
Environnement offrant une visibilité et une accessibilité optimales dans un cadre de travail prestigieux, dynamique et connecté.
C'est une excellente option pour les entreprises de services, les professions libérales, les sociétés de conseil, les agences immobilières, ou toute entité souhaitant bénéficier d'une adresse centrale et reconnue sur la Côte d'Azur.
Si ce bureau à louer
à NICE CENTRE CARABACEL (06000) vous intéresse ou si vous souhaitez obtenir plus d'informations, n'hésitez pas à nous contacter aujourd'hui pour organiser une visite et bénéficier de toutes les informations nécessaires pour votre projet immobilier.
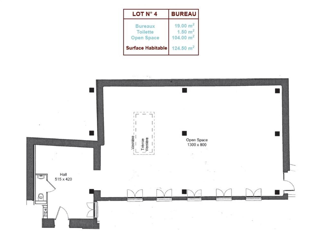
| Étage | Type | Surfaces | Dispo | Loyer | Charges | Type de bailRév. annuelle |
|---|---|---|---|---|---|---|
| 1 | Bureaux | 124 | Immédiate | 235,81 m²/an HTHC | 15 m²/an HT | 3-6-9 ansIndice ILAT |
Impôt Foncier : 1400 €/an
Régime Fiscal : T.V.A.
Dépôt de garantie : 3 mois de loyer HT/HC
Paiement Loyer : trimestriel
Honoraires : 15% HT du loyer annuel HT/HC à la charge du preneur
Taxe Bureau : 0,94 €/m²/an
Prestations :
- Bureaux entièrement rénovés: prêts à l'emploi et modernes
- Open-space: aménagement flexible et collaboratif
- Climatisation: confort thermique
- Fibre optique: connectivité internet haut débit
- Faux-plafonds: esthétique moderne et intégration technique
- Plinthes périphériques: gestion des câbles intégrée
- Sanitaires communs: commodité et entretien
- Surface RDC : 0 m²
Accessibilité:
Autoroute Autoroute A8
Route Voie Mathis
Route Promenade des Anglais
Bus Réseau Urbain
Tramway Lignes 2 et 3 à 2 minutes
SNCF Nice Ville à 5 minutes
Aeroport Nice Côte d'Azur à 15 min
Les informations sur les risques auxquels ce bien est exposé sont disponibles sur le site Géorisques : www.georisques.gouv.fr
Voir plus
Afficher les consommations énergétiques
Favoris
Exporter
Appeler
Contacter
Signaler cette annonce










