Nous sommes Immprove, une grande équipe de plus de 200 experts en immobilier d’entreprise, implantés localement avec plus de 20 agences sur tout le territoire.Depuis 2009, notre proximité, notre ét ...
En savoir plus

678 m² divisible dès 44 m²
HT HC
Location bureau - 678 m²
Neuville-sur-Saône (69250)
Dernière mise à jour : Il y a 2 mois
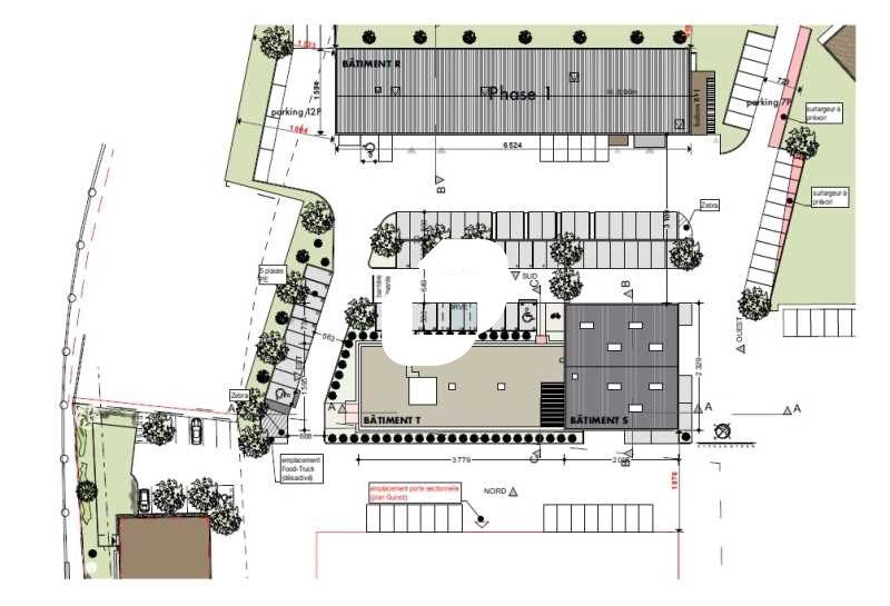
Dans un parc d'activités clos et sécurisé, à proximité du centre de Neuville, Immprove vous propose à la location, des bureaux récents ou réhabilités situés dans deux bâtiments distincts :
- Lot M6B2 : 138 m² de bureaux au 1er étage
- Bâtiment O : 540 m² de bureaux
Régime Fiscal : TVA
Dépôt de garantie : 3 mois de loyer HT/HC
Honoraires : 15 % HT d'un an de loyer HT à la charge du preneur, payables à la signature du bail
Information sur le Bail :
. Le bâtiment O est divisible à partir de 44 m²
Prestations :
Accessibilité:
Autoroute Proximité A46 (sortie Genay à 4 km soit 7 minutes)
SNCF Gare d'Albigny sur Soane à 1.7 km soit 20 min à pied
SNCF Gare de Vaise à 14 min en train
SNCF Perrache à 23 min
SNCF Jean Macé à 28 min
Les informations sur les risques auxquels ce bien est exposé sont disponibles sur le site Géorisques : www.georisques.gouv.fr
- Lot M6B2 : 138 m² de bureaux au 1er étage
- Bâtiment O : 540 m² de bureaux
| Étage | Type | Surfaces | Dispo | Loyer | Charges | Type de bailRév. annuelle |
|---|---|---|---|---|---|---|
| R+1 | Bureaux | 138 | Immédiate | 86,96 HT/HC/m²/an | 22,8 HT/an | Bail Commercial 3-6-9 ansIndice ILC |
| Bureaux | 540 | Immédiate | 160 m²/an HT HC | 16 m²/an HT | Bail Commercial 3-6-9 ansIndice ILC |
Régime Fiscal : TVA
Dépôt de garantie : 3 mois de loyer HT/HC
Honoraires : 15 % HT d'un an de loyer HT à la charge du preneur, payables à la signature du bail
Information sur le Bail :
. Le bâtiment O est divisible à partir de 44 m²
Prestations :
- Charpente métallique
- Toiture refaite bac acier isolé
- Accès poids lourds de plain-pied
- Cour de déchargement
- Portail d'accès
- Contrôle d'accès : Parc fermé hors horaires bureaux (7h-19h)
- Gardiennage : 4 rondes Securitas / nuit
- Digicode / Interphone
- Parkings extérieurs
- Bureaux cloisonnés (décloisonnement possible) - Cloisonnement amovible
- Locaux rationnels et modulables
- Salle de réunion
- Espace détente
- Local technique
- Cuisine
- Sanitaires privatifs
- Faux-plafond
- Climatisation réversible
- Parties communes rénovées récemment sur M6B
- Ascenseur : uniquement sur M6B
- Terrasse commune au dernier étage de 200 m² pour le lot M6B2
Accessibilité:
Autoroute Proximité A46 (sortie Genay à 4 km soit 7 minutes)
SNCF Gare d'Albigny sur Soane à 1.7 km soit 20 min à pied
SNCF Gare de Vaise à 14 min en train
SNCF Perrache à 23 min
SNCF Jean Macé à 28 min
Les informations sur les risques auxquels ce bien est exposé sont disponibles sur le site Géorisques : www.georisques.gouv.fr
Voir plus
Afficher les consommations énergétiques
Favoris
Exporter
Appeler
Contacter
Signaler cette annonce







