L’agence CBRE Nantes conseille et accompagne les chefs d’entreprise dans leurs projets immobiliers quels que soient leur taille et leur secteur d’activité. Spécialistes de la transaction de bureaux ...
En savoir plus

850 m²
Loyer sur demande
Location bureau - 850 m²
Nantes (44000)
Dernière mise à jour : Il y a 4 jours
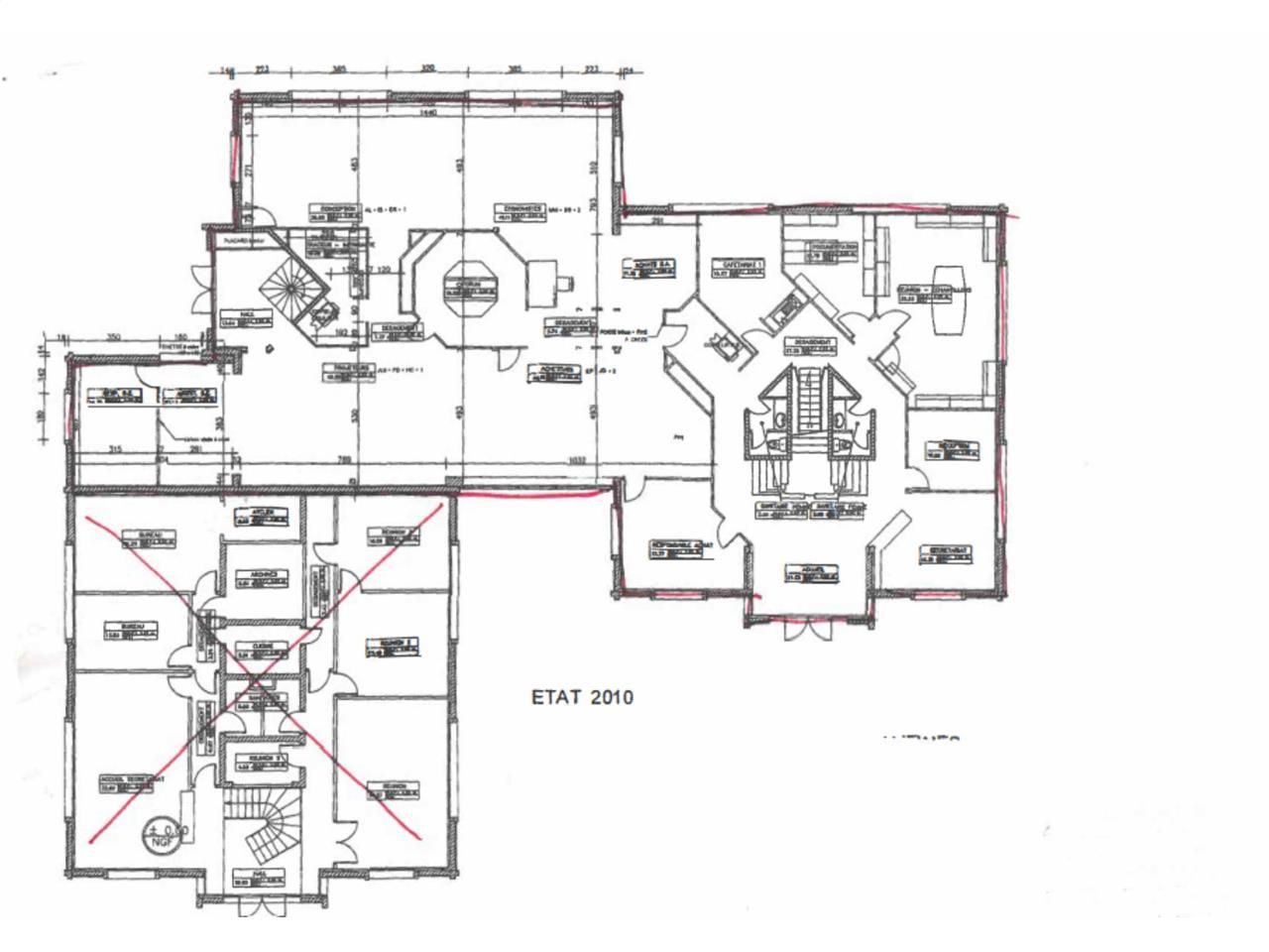
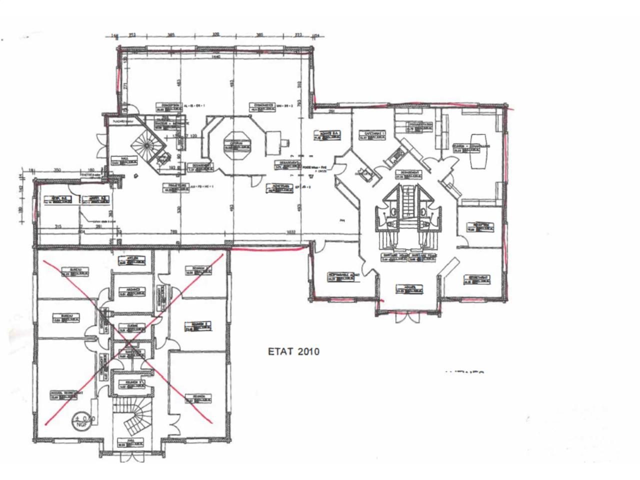
NORD EST DE NANTES, CBRE vous propose à la location ou à la vente un immeuble indépendant de 850 m² au sein d'une zone mixte. La surface se décompose en deux niveaux (RDC et R+1) facilement aménageable avec des cloisons modulaires. Un espace cuisine et des salles de réunion viennent compléter cette offre.
L'immeuble se trouve au pied du chronobus C7 et vous profiterez d'une trentaine de places de parkings privées.
Régime Fiscal : T.V.A.
Dépôt de garantie : 3 mois de loyer HT/HC
Honoraires : A la charge du preneur.
Prestations :
Accessibilité:
Bus Vison (12), Portail Rouge (125, 127, 137, 167, C7)
Les informations sur les risques auxquels ce bien est exposé sont disponibles sur le site Géorisques : www.georisques.gouv.fr
L'immeuble se trouve au pied du chronobus C7 et vous profiterez d'une trentaine de places de parkings privées.
| Étage | Type | Surfaces | Dispo | Loyer | Charges | Type de bailRév. annuelle |
|---|---|---|---|---|---|---|
| R1 | Bureaux | 850 | Immédiate | 3-6-9 ansIndice ILAT |
Régime Fiscal : T.V.A.
Dépôt de garantie : 3 mois de loyer HT/HC
Honoraires : A la charge du preneur.
Prestations :
- Immeuble indépendant
- 2 entrées palières
- Hall d'accueil lumineux
- Bureaux cloisonnés
- Salle de réunions
- Espace cuisine
- Garage et espace de stockage
- Climatisation réversible
- Nombreux parking privés
Accessibilité:
Bus Vison (12), Portail Rouge (125, 127, 137, 167, C7)
Les informations sur les risques auxquels ce bien est exposé sont disponibles sur le site Géorisques : www.georisques.gouv.fr
Voir plus
Afficher les consommations énergétiques
Favoris
Exporter
Appeler
Contacter
Signaler cette annonce










