L’agence CBRE Nantes conseille et accompagne les chefs d’entreprise dans leurs projets immobiliers quels que soient leur taille et leur secteur d’activité. Spécialistes de la transaction de bureaux ...
En savoir plus

317 m²
HT HC
Location bureau - 317 m²
Nantes (44000)
Dernière mise à jour : Il y a 4 jours
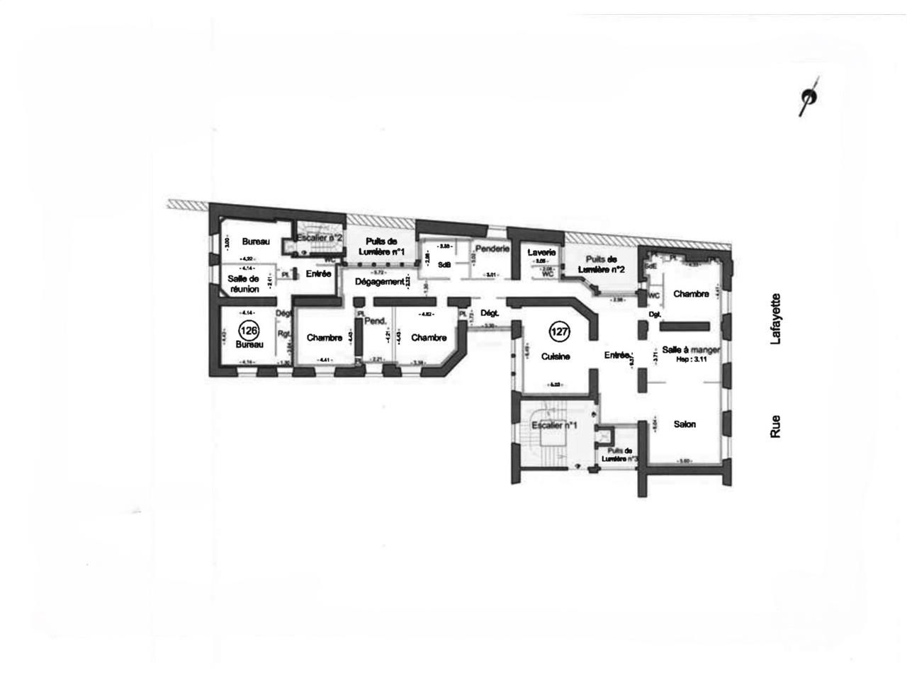
CBRE NANTES vous propose à la location, une surface de bureau d'environ 317 m² située au 1er étage d'un immeuble de standing . Cette opportunité se compose de 2 grands open space, 8 bureaux fermés, une grande cuisine, double entrée et box sécurisé.
CBRE NANTES vous propose à la location, une surface de bureau située dans un quartier prisée de Nantes. Au coeur de Nantes, dans un immeuble de standing, ces bureaux offrent une surface de 317 m² fonctionnel et valorisant. L'espace se compose de :
Grands open spaces, plusieurs bureaux fermés, permettant de préserver la confidentialité et de créer des espaces dédiés à la concentration ou aux réunions.
Deux douches, une grande cuisine équipée, et un box fermé dans la cours, permettant d'y garer 2 voitures et plusieurs vélos. Au pied de tous commerces, restaurants et transports en commun.
Disponible immédiatement, consultez nous pour plus d'informations !
Impôt Foncier : 18,61 €/
Régime Fiscal : T.V.A.
Dépôt de garantie : 3 mois de loyer HT/HC
Paiement Loyer : trimestriel
Honoraires : 15% HT du loyer annuel HT/HC à la charge du preneur.
Prestations :
Accessibilité:
Bus St-Nicolas (23, 26, 54, C1, C3, C6)
Tramway Commerce (1), Place du Cirque (2), Jean Jaurès (3)
Les informations sur les risques auxquels ce bien est exposé sont disponibles sur le site Géorisques : www.georisques.gouv.fr
CBRE NANTES vous propose à la location, une surface de bureau située dans un quartier prisée de Nantes. Au coeur de Nantes, dans un immeuble de standing, ces bureaux offrent une surface de 317 m² fonctionnel et valorisant. L'espace se compose de :
Grands open spaces, plusieurs bureaux fermés, permettant de préserver la confidentialité et de créer des espaces dédiés à la concentration ou aux réunions.
Deux douches, une grande cuisine équipée, et un box fermé dans la cours, permettant d'y garer 2 voitures et plusieurs vélos. Au pied de tous commerces, restaurants et transports en commun.
Disponible immédiatement, consultez nous pour plus d'informations !
| Étage | Type | Surfaces | Dispo | Loyer | Charges | Type de bailRév. annuelle |
|---|---|---|---|---|---|---|
| 1 | Bureaux | 317 | Immédiate | 265 m²/an HT HC | 30 HT/m²/an | 3-6-9 ansIndice ILAT |
Impôt Foncier : 18,61 €/
Régime Fiscal : T.V.A.
Dépôt de garantie : 3 mois de loyer HT/HC
Paiement Loyer : trimestriel
Honoraires : 15% HT du loyer annuel HT/HC à la charge du preneur.
Prestations :
- Immeuble de standing
- Belle hauteur sous plafond
- Bureaux individuels
- Bureaux partagés
- Open space
- Douches
- Cuisine
Accessibilité:
Bus St-Nicolas (23, 26, 54, C1, C3, C6)
Tramway Commerce (1), Place du Cirque (2), Jean Jaurès (3)
Les informations sur les risques auxquels ce bien est exposé sont disponibles sur le site Géorisques : www.georisques.gouv.fr
Voir plus
Afficher les consommations énergétiques
Favoris
Exporter
Appeler
Contacter
Signaler cette annonce










