L’agence CBRE Nantes conseille et accompagne les chefs d’entreprise dans leurs projets immobiliers quels que soient leur taille et leur secteur d’activité. Spécialistes de la transaction de bureaux ...
En savoir plus

138 m²
HT HC
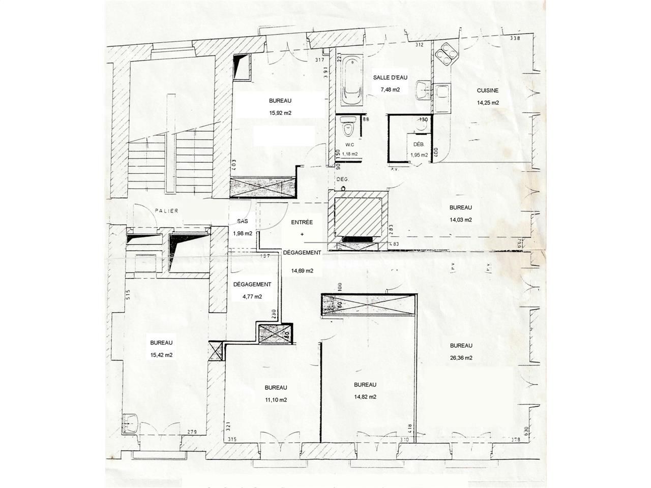
Location bureau - 138 m²
Nantes (44000)
Dernière mise à jour : Il y a 2 jours
Situé dans le centre historique de Nantes et à toute proximité des transports en commun, CBRE vous propose à la location une surface de bureaux 138 m² au 3ème étage d'un immeuble haussmannien, offrant une vue imprenable sur la Place Royale. Il se compose de plusieurs bureaux, de salles de réunion, une cuisine équipée ainsi qu'une salle de bain. Idéal pour une activité tertiaire ou libérale.
En plein coeur du centre historique de Nantes, ce bien bénéficie d'une proximité immédiate avec les transports en commun, les commerces et les restaurants.
Idéal pour une activité tertiaire ou libérale recherchant visibilité et accessibilité.
Impôt Foncier : 22 €/
Régime Fiscal : T.V.A.
Dépôt de garantie : 3 mois de loyer HT/HC
Honoraires : 30 % HT du loyer annuel HT HC à la charge du preneur.
Prestations :
Accessibilité:
Bus Commerce (11, 26, 54, C2, C3, C5, LU, NA), St-Nicolas (23, C1, C6)
Tramway Commerce (1, 2, 3)
Les informations sur les risques auxquels ce bien est exposé sont disponibles sur le site Géorisques : www.georisques.gouv.fr
En plein coeur du centre historique de Nantes, ce bien bénéficie d'une proximité immédiate avec les transports en commun, les commerces et les restaurants.
Idéal pour une activité tertiaire ou libérale recherchant visibilité et accessibilité.
| Étage | Type | Surfaces | Dispo | Loyer | Charges | Type de bailRév. annuelle |
|---|---|---|---|---|---|---|
| 3 | Bureaux | 138 | Immédiate | 200 m²/an HT HC | 11 HT/m²/an | 3-6-9 ansIndice ILAT |
Impôt Foncier : 22 €/
Régime Fiscal : T.V.A.
Dépôt de garantie : 3 mois de loyer HT/HC
Honoraires : 30 % HT du loyer annuel HT HC à la charge du preneur.
Prestations :
- Immeuble Haussmannien
- Accès sécurisé par badge
- Ascenceur
- Bureaux en open space
- Salle de réunion
- Cuisine équipée
- Douche
- Sanitaires privatifs
Accessibilité:
Bus Commerce (11, 26, 54, C2, C3, C5, LU, NA), St-Nicolas (23, C1, C6)
Tramway Commerce (1, 2, 3)
Les informations sur les risques auxquels ce bien est exposé sont disponibles sur le site Géorisques : www.georisques.gouv.fr
Voir plus
Afficher les consommations énergétiques
Localisation et transport aux alentours
Favoris
Exporter
Appeler
Contacter
Signaler cette annonce










