Conseil en immobilier d'entreprise, Cushman & Wakefield est un acteur incontournable au rayonnement international. Cushman & Wakefield offre des solutions dans toutes les étapes que comporte un p ...
En savoir plus



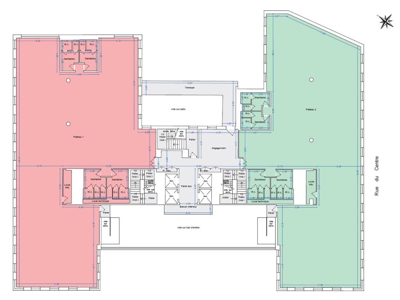
5 484 m² divisible dès 686 m²
HT HC
AUSTRALIA - Location bureau - 5484 m²
Montigny-le-Bretonneux (78180)
Dernière mise à jour : Il y a 6 mois
AUSTRALIA
Immeuble AUSTRALIA
Nous vous proposons à louer des bureaux à Montigny Le Bretonneux, au sein de l'immeuble Australia.
Australia bénéficie d'un emplacement stratégique, à proximité immédiate de la gare de Saint-Quentin-en-Yvelines et du centre commercial SQY Ouest.
Vous bénéficiez ainsi d'un environnement de travail dynamique et agréable, tout en étant proche de tous les services essentiels.
Les bureaux proposés sont entièrement rénovés et offrent des espaces de travail modernes et confortables. Chaque plateau de bureaux d'une surface de 1 600 m² environ, est divisible en deux lots, permettant ainsi une grande flexibilité.
Immeuble innovant et éco-responsable, Australia se distingue par ses caractéristiques techniques et ses performances énergétiques élevées. Il bénéficie du label HQE (Haute Qualité Environnementale) et du label BBC (Bâtiment Basse Consommation), garantissant un bâtiment respectueux de l'environnement, économe en énergie et conforme aux dernières normes en matière de développement durable.
En plus des bureaux rénovés, l'immeuble Australia propose une gamme de services complète : PC Sécurité, espace wellness avec vestiaires et douches, RIE et cafétéria, possibilité d'hôtesse d'accueil...
Pour toute demande de renseignement complémentaire ou pour organiser une visite, n'hésitez pas à nous contacter !
Impôt Foncier : 25,43 €//m²/an
Régime Fiscal : T.V.A.
Paiement Loyer : Trimestriel
Honoraires : 15 % HT du loyer annuel HT/HC à la charge du preneur.
Taxe Bureau : 10,23 €/m²/an
Information sur le Bail :
Le loyer bureaux comprend la quote part du RIE et des autres services Les charges incluent les consommations privatives de chauffage et de climatisation Assurance : 3,14 euros/m²/an HT
Prestations :
Accessibilité:
RER St-Quentin en Yvelines (RER C)
SNCF St-Quentin en Yvelines (TER lignes U et N)
Accès routier A12, A13, N12, N10, D36
Bus Nombreuses lignes (une trentaine)
Les informations sur les risques auxquels ce bien est exposé sont disponibles sur le site Géorisques : www.georisques.gouv.fr
Immeuble AUSTRALIA
Nous vous proposons à louer des bureaux à Montigny Le Bretonneux, au sein de l'immeuble Australia.
Australia bénéficie d'un emplacement stratégique, à proximité immédiate de la gare de Saint-Quentin-en-Yvelines et du centre commercial SQY Ouest.
Vous bénéficiez ainsi d'un environnement de travail dynamique et agréable, tout en étant proche de tous les services essentiels.
Les bureaux proposés sont entièrement rénovés et offrent des espaces de travail modernes et confortables. Chaque plateau de bureaux d'une surface de 1 600 m² environ, est divisible en deux lots, permettant ainsi une grande flexibilité.
Immeuble innovant et éco-responsable, Australia se distingue par ses caractéristiques techniques et ses performances énergétiques élevées. Il bénéficie du label HQE (Haute Qualité Environnementale) et du label BBC (Bâtiment Basse Consommation), garantissant un bâtiment respectueux de l'environnement, économe en énergie et conforme aux dernières normes en matière de développement durable.
En plus des bureaux rénovés, l'immeuble Australia propose une gamme de services complète : PC Sécurité, espace wellness avec vestiaires et douches, RIE et cafétéria, possibilité d'hôtesse d'accueil...
Pour toute demande de renseignement complémentaire ou pour organiser une visite, n'hésitez pas à nous contacter !
| Étage | Type | Surfaces | Dispo | Loyer | Charges | Type de bailRév. annuelle |
|---|---|---|---|---|---|---|
| 6 | Bureaux | 793 | 200 HT/HC/m²/an | 68,6 HT/m²/an | 3-6-9 ansSur l'indice ILAT | |
| 5 | Bureaux | 815 | 200 HT/HC/m²/an | 68,6 HT/m²/an | 3-6-9 ansSur l'indice ILAT | |
| 5 | Bureaux | 792 | 200 HT/HC/m²/an | 68,6 HT/m²/an | 3-6-9 ansSur l'indice ILAT | |
| 4 | Bureaux | 792 | 200 HT/HC/m²/an | 68,6 HT/m²/an | 3-6-9 ansSur l'indice ILAT | |
| 3 | Bureaux | 814 | 200 HT/HC/m²/an | 68,6 HT/m²/an | 3-6-9 ansSur l'indice ILAT | |
| 3 | Bureaux | 792 | 200 HT/HC/m²/an | 68,6 HT/m²/an | 3-6-9 ansSur l'indice ILAT | |
| 1 | Bureaux | 686 | 200 HT/HC/m²/an | 68,6 HT/m²/an | 3-6-9 ansSur l'indice ILAT | |
| SS | Parkings | 1000 HT/HC/U/an | 3-6-9 ansSur l'indice ILAT |
Impôt Foncier : 25,43 €//m²/an
Régime Fiscal : T.V.A.
Paiement Loyer : Trimestriel
Honoraires : 15 % HT du loyer annuel HT/HC à la charge du preneur.
Taxe Bureau : 10,23 €/m²/an
Information sur le Bail :
Le loyer bureaux comprend la quote part du RIE et des autres services Les charges incluent les consommations privatives de chauffage et de climatisation Assurance : 3,14 euros/m²/an HT
Prestations :
- Immeuble indépendant de bureaux HQE, de label énergétique BBC, d'environ 11 800 m² en R+7 sur 3 niveaux de sous-sol
- Imaginé par l'architecte Hubert Godet, cet immeuble a remporté, dans le cadre du SIMI, le Trophée Constructeo 2010 dans la catégorie bâtiment, grâce à ses performances énergétiques
- Le bâtiment a été inauguré en mars 2011
- Immeuble innovant : climatisation solaire, chauffage au bois
- RIE de 217 places assises, 500 couverts
- Conciergerie
- Business center
- Espace collaboratif réversible de 750 m²
- Connecté et flexible
- Wellness center de 112 m²
- Jardin paysager
- Hauteur libre : 2,70 m
- Division en 2 lots indépendants par étage
- 20 emplacements de pks pour voitures électriques mutualisés
Accessibilité:
RER St-Quentin en Yvelines (RER C)
SNCF St-Quentin en Yvelines (TER lignes U et N)
Accès routier A12, A13, N12, N10, D36
Bus Nombreuses lignes (une trentaine)
Les informations sur les risques auxquels ce bien est exposé sont disponibles sur le site Géorisques : www.georisques.gouv.fr
166 Parking(s) en sous-sol
Voir plus
Afficher les consommations énergétiques
Localisation et transport aux alentours
- Saint-Quentin-en-Yvelines - Montigny-le-Bretonneux464m (7min à pied)CNU
Favoris
Exporter
Appeler
Contacter
Signaler cette annonce










