Conseil en immobilier d'entreprise, Cushman & Wakefield est un acteur incontournable au rayonnement international. Cushman & Wakefield offre des solutions dans toutes les étapes que comporte un p ...
En savoir plus



519 m²
HT HC
LE CARRE - Location bureau - 519 m²
Montigny-le-Bretonneux (78180)
Dernière mise à jour : Il y a 3 jours
Immeuble certifié, situé face à la gare
Immeuble LE CARRE
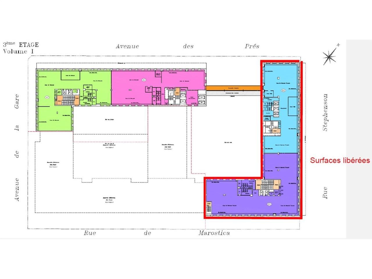
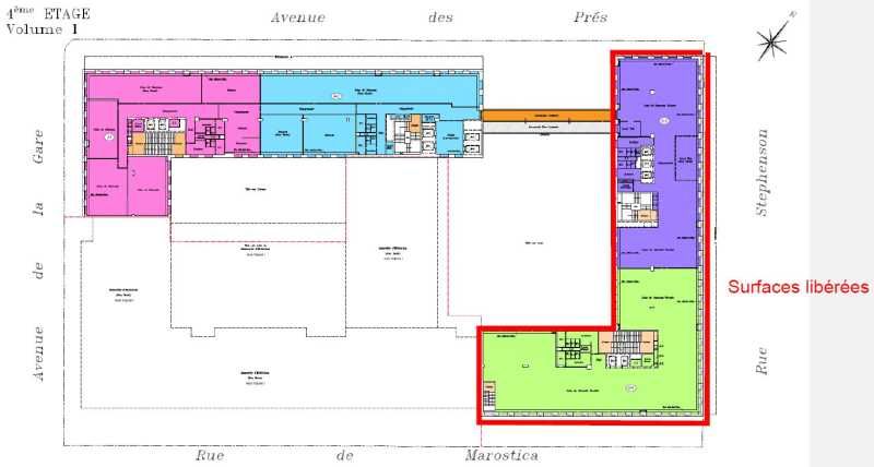
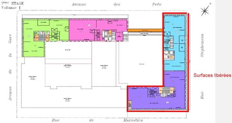
À Montigny-le-Bretonneux, 2 rue Stephenson, face à la gare de Saint-Quentin-en-Yvelines (RER C, lignes N, U, TER), bureaux à louer de 519 m² au sein de l'immeuble Le Carré, entièrement restructuré en 2019 .
Cet actif tertiaire de référence bénéficie d'une quadruple certification environnementale (BBC Rénovation, HQE Excellent, BREEAM Very Good, LEED), garantissant performance énergétique et qualité d'usage.
Le plateau, déjà équipé (câblage informatique et mobilier), propose une installation immédiate avec climatisation et faux plancher technique.
L'immeuble offre un hall monumental double hauteur, jardins intérieurs, espaces de restauration, salles de réunion mutualisées, salle de sport et local vélo avec vestiaires, structurant le quotidien des équipes.
Ratio de stationnement d'1 place pour 50 m². Accès direct N10, N12 et A12.
Loyer 190 euros HT/HC/m²/an.
Une implantation premium pour entreprises recherchant des bureaux à la location au coeur de SQY.
Impôt Foncier : 18,99 €//m²/an
Régime Fiscal : T.V.A.
Dépôt de garantie : 3 mois de loyer HT/HC
Honoraires : 15 % HT du loyer annuel HT/HC à la charge du preneur.
Taxe Bureau : 11,63 €/m²/an
Information sur le Bail :
Prime assurance : 0,88 euros/m²/an HT
Prestations :
Accessibilité:
RER Saint-Quentin en Yvelines - Montigny-le-Bretonneux (C)
SNCF Saint-Quentin en Yvelines - Montigny-le-Bretonneux (TER, N, U))
Bus Saint-Quentin -Gare (5134, 5104, 5105, 5143, 5144, 5145, 5151, 5198, 12, N162), Saint-Quentin - Gare routière Paul Delouvrier (67, 7816, 7804, 05, 5110, 7818, 6251, 67D), Saint-Quentin - Gare Routière des Prés - dépose (5116, EX 100, 7803, 5133, 5154, 9111), Saint-Quentin - Gare Routière des Prés (7807, 5142, 5103, 5152, 5150, N161, U, N, 5111), Saint-Quentin - Gare P. Delouvrier P (7805)
Accès routier N10, N12, A12
Les informations sur les risques auxquels ce bien est exposé sont disponibles sur le site Géorisques : www.georisques.gouv.fr
Immeuble LE CARRE
À Montigny-le-Bretonneux, 2 rue Stephenson, face à la gare de Saint-Quentin-en-Yvelines (RER C, lignes N, U, TER), bureaux à louer de 519 m² au sein de l'immeuble Le Carré, entièrement restructuré en 2019 .
Cet actif tertiaire de référence bénéficie d'une quadruple certification environnementale (BBC Rénovation, HQE Excellent, BREEAM Very Good, LEED), garantissant performance énergétique et qualité d'usage.
Le plateau, déjà équipé (câblage informatique et mobilier), propose une installation immédiate avec climatisation et faux plancher technique.
L'immeuble offre un hall monumental double hauteur, jardins intérieurs, espaces de restauration, salles de réunion mutualisées, salle de sport et local vélo avec vestiaires, structurant le quotidien des équipes.
Ratio de stationnement d'1 place pour 50 m². Accès direct N10, N12 et A12.
Loyer 190 euros HT/HC/m²/an.
Une implantation premium pour entreprises recherchant des bureaux à la location au coeur de SQY.
| Étage | Type | Surfaces | Dispo | Loyer | Charges | Type de bailRév. annuelle |
|---|---|---|---|---|---|---|
| 6 | Bureaux | 519 | Immédiate | 190 HT/HC/m²/an | 43,93 HT/m²/an | 6-9 ansSur l'indice ILAT |
| Parkings | Immédiate | 1000 HT/HC/U/an | 0,22 HT/U/an | 6-9 ansSur l'indice ILAT |
Impôt Foncier : 18,99 €//m²/an
Régime Fiscal : T.V.A.
Dépôt de garantie : 3 mois de loyer HT/HC
Honoraires : 15 % HT du loyer annuel HT/HC à la charge du preneur.
Taxe Bureau : 11,63 €/m²/an
Information sur le Bail :
Prime assurance : 0,88 euros/m²/an HT
Prestations :
- Situé face à la gare et disposant ainsi de la plus belle adresse tertiaire à SQY, l'ensemble a été entièrement restructuré en 2019
- Le Carré dispose d'un hall monumental double hauteur, de jardins intérieurs, d'espaces de restauration et cafétéria, de salles de réunion partagées, d'une salle de sport et d'un local vélo avec vestiaires
- Avec sa quadruple certification environnementale (BBC RENO / HQE excellent/ BREAM very good/ Leed certified), cet immeuble est l'un des plus beaux immeubles sur le territoire de SQY
- Parkings : 1 / 50 m²
- Locaux neufs
- Climatisation
- Faux plancher de 5 cms
- Archives
- Les plateaux de 520 m² sont tous déjà équipés (câblage informatique, mobilier neuf)
Accessibilité:
RER Saint-Quentin en Yvelines - Montigny-le-Bretonneux (C)
SNCF Saint-Quentin en Yvelines - Montigny-le-Bretonneux (TER, N, U))
Bus Saint-Quentin -Gare (5134, 5104, 5105, 5143, 5144, 5145, 5151, 5198, 12, N162), Saint-Quentin - Gare routière Paul Delouvrier (67, 7816, 7804, 05, 5110, 7818, 6251, 67D), Saint-Quentin - Gare Routière des Prés - dépose (5116, EX 100, 7803, 5133, 5154, 9111), Saint-Quentin - Gare Routière des Prés (7807, 5142, 5103, 5152, 5150, N161, U, N, 5111), Saint-Quentin - Gare P. Delouvrier P (7805)
Accès routier N10, N12, A12
Les informations sur les risques auxquels ce bien est exposé sont disponibles sur le site Géorisques : www.georisques.gouv.fr
132 Parking(s) en sous-sol
Voir plus
Afficher les consommations énergétiques
Localisation et transport aux alentours
- Saint-Quentin-en-Yvelines - Montigny-le-Bretonneux216m (3min à pied)CNU
Favoris
Exporter
Appeler
Contacter
Signaler cette annonce










