MCarré Conseil est une agence spécialiste de l'immobilier d’entreprise du sud de l’Île-de-France (en Essonne et dans le sud de la Seine-et-Marne et du Val-De-Marne). Elle vous accompagne à chaque é ...
En savoir plus

310 m²
HT HC
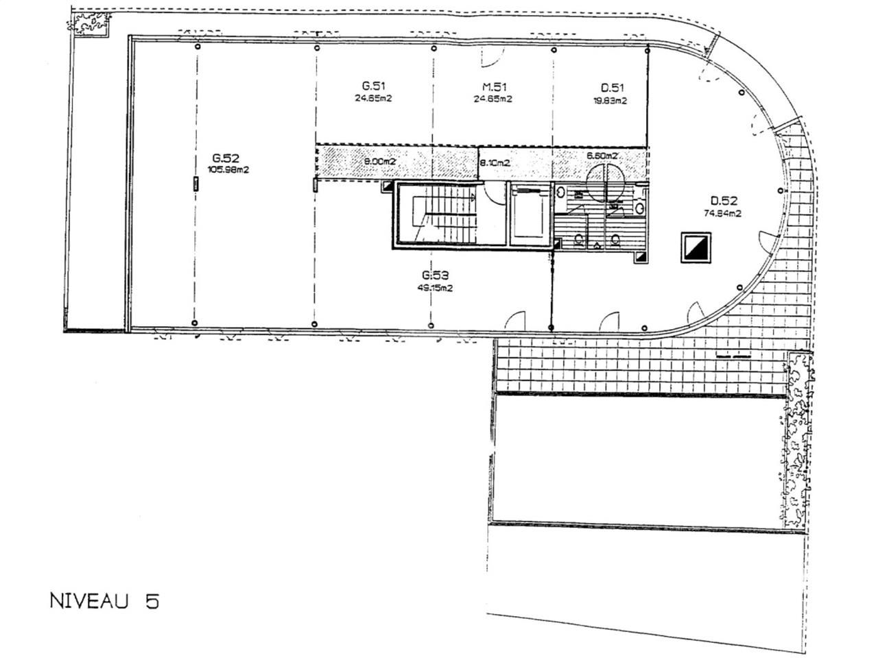
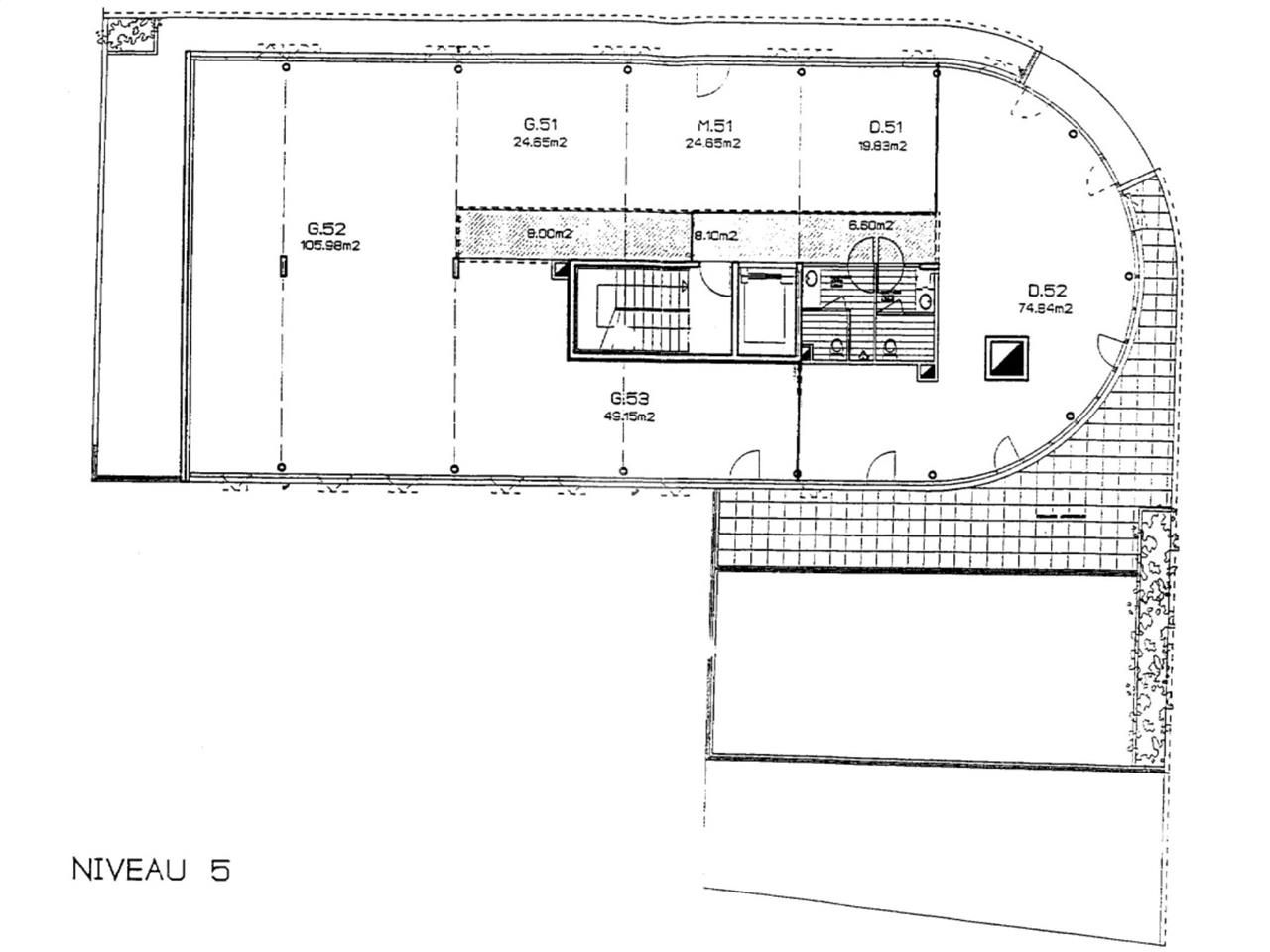
Location bureau - 310 m²
Melun (77000)
Dernière mise à jour : Il y a 2 jours
A proximité de la Gare de Melun et du Tribunal de Commerce, nous vous proposons à la location une surface de bureaux d'environ 310 m² bénéficiant de 8 parkings.
Impôt Foncier : 16000 €/HT/an
Régime Fiscal : TVA
Dépôt de garantie : 3 mois de loyer HT/HC
Honoraires : 15% HT du loyer annuel HT HC
Taxe Bureau : 1750 €/m²/an
Information sur le Bail :
Loyer annuel: 83 000 euros HT/HC Charges : 13 000 euros/an
Prestations :
Accessibilité:
Autoroute Autoroute A5
Route Liaison Nationale 104 (Francilienne)
RER Melun (Ligne D)
Transilien Melun (Ligne RER D, Ligne R, Ligne IDF)
Bus Gare de Melun (Ligne 9, Ligne 14, Ligne N132, Ligne C, Ligne Cd, Ligne D, Ligne 3603, Ligne 3607, Ligne 3606, Ligne 3612, Ligne 3662, Ligne T, Ligne 3658), Melun (Ligne R), Gare SNCF Place de l'Ermitage (Ligne 47), Melun SNCF (Ligne 18), Gare SNCF - Rue de l'Industrie (Ligne 3605, Ligne 3654), Place de l'Ermitage-Melun (Ligne 34), Place de l'Ermitage - Gare SNCF (Ligne 24, Ligne 1, Ligne 37A), Gare Thiers (Ligne A, Ligne 3601), Place de l'Ermitage (Ligne 46), Gare (Ligne V)
Les informations sur les risques auxquels ce bien est exposé sont disponibles sur le site Géorisques : www.georisques.gouv.fr
| Étage | Type | Surfaces | Dispo | Loyer | Charges | Type de bailRév. annuelle |
|---|---|---|---|---|---|---|
| 5 | Bureaux | 310 | Immédiate | 267,74 m²/an HT HC | 3/6/9 ansIndice ILAT | |
| Parkings | 3/6/9 ansIndice ILAT |
Impôt Foncier : 16000 €/HT/an
Régime Fiscal : TVA
Dépôt de garantie : 3 mois de loyer HT/HC
Honoraires : 15% HT du loyer annuel HT HC
Taxe Bureau : 1750 €/m²/an
Information sur le Bail :
Loyer annuel: 83 000 euros HT/HC Charges : 13 000 euros/an
Prestations :
- Bureaux cloisonnés
- Chauffage électrique
- Climatisation réversible
- Ascenseur
- Terrasse
Accessibilité:
Autoroute Autoroute A5
Route Liaison Nationale 104 (Francilienne)
RER Melun (Ligne D)
Transilien Melun (Ligne RER D, Ligne R, Ligne IDF)
Bus Gare de Melun (Ligne 9, Ligne 14, Ligne N132, Ligne C, Ligne Cd, Ligne D, Ligne 3603, Ligne 3607, Ligne 3606, Ligne 3612, Ligne 3662, Ligne T, Ligne 3658), Melun (Ligne R), Gare SNCF Place de l'Ermitage (Ligne 47), Melun SNCF (Ligne 18), Gare SNCF - Rue de l'Industrie (Ligne 3605, Ligne 3654), Place de l'Ermitage-Melun (Ligne 34), Place de l'Ermitage - Gare SNCF (Ligne 24, Ligne 1, Ligne 37A), Gare Thiers (Ligne A, Ligne 3601), Place de l'Ermitage (Ligne 46), Gare (Ligne V)
Les informations sur les risques auxquels ce bien est exposé sont disponibles sur le site Géorisques : www.georisques.gouv.fr
Voir plus
Afficher les consommations énergétiques
Localisation et transport aux alentours
- Melun256m (4min à pied)DR
Favoris
Exporter
Appeler
Contacter
Signaler cette annonce










