MALSH Realty accompagne les entreprises dans leurs projets immobiliers, qu’il s’agisse de locaux d’activités, de bureaux, de commerces, d’entrepôts ou de terrains. L’agence intervient aussi bien au ...
En savoir plus

275 m²
Prix sur demande
Fonds de commerce à vendre
Lyon 3 (69003)
Dernière mise à jour : Hier
Restaurant à Louer - Lyon 3e - 275 m² - Licence IV
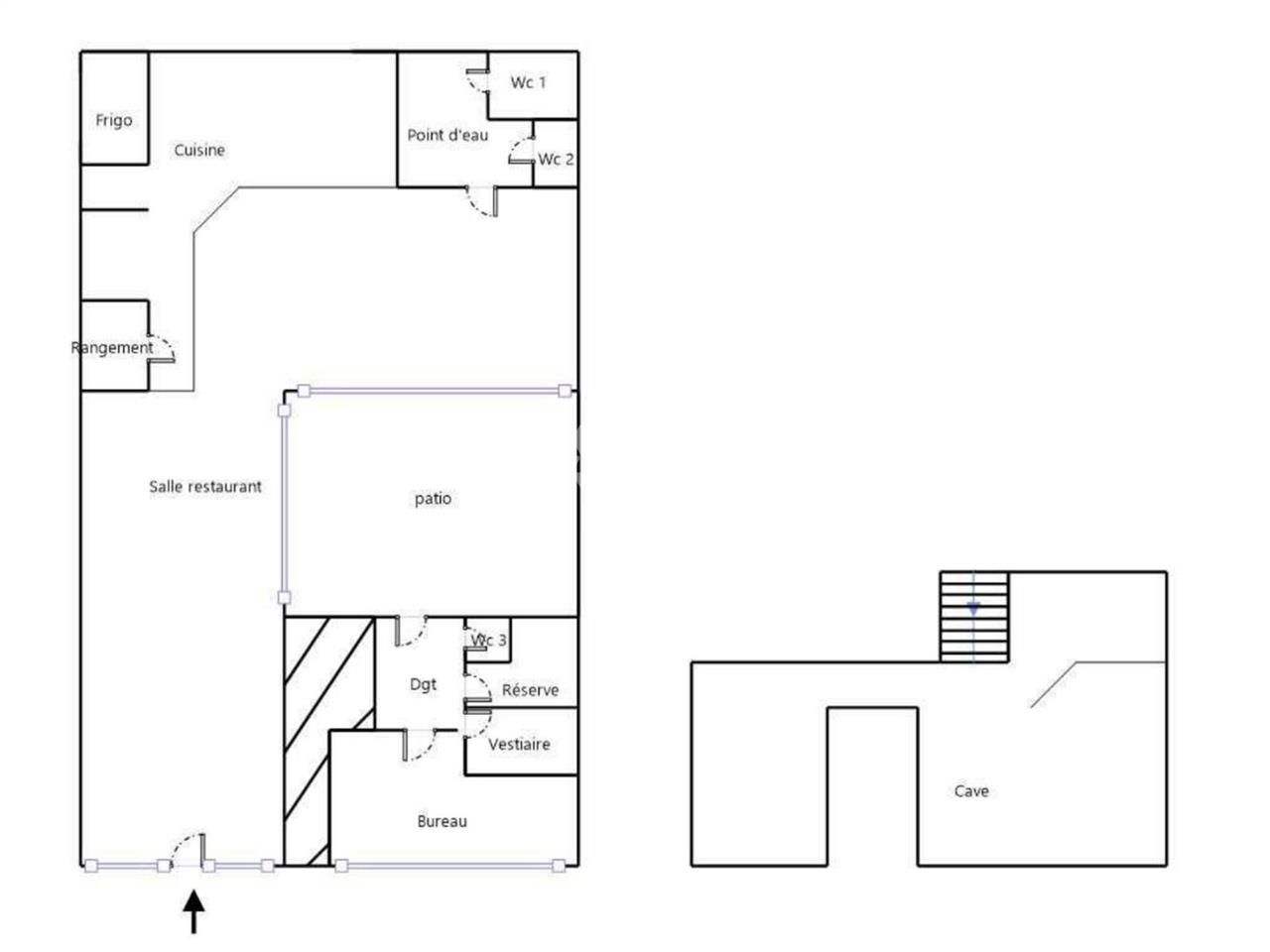
Nous vous proposons en location gérance un fonds de commerce de restauration de 275 m² situé dans le 3ème arrondissement de Lyon. Cet établissement dispose d'une forte capacité d'accueil, de nombreux espaces extérieurs, d'une Licence IV et d'une extraction de 400 mm. Équipement complet pour une reprise immédiate. CA 2025 : 460 248 euros HT. Opportunité idéale pour un restaurateur confirmé.
Restaurant à Louer - Lyon 3e - 275 m² - Licence IV
Régime Fiscal : T.V.A. (20%)
Dépôt de garantie : 3 mois de loyer HT/HC
Honoraires : 15% HT du loyer annuel HT à la charge du preneur, payables à la signature du bail
Prestations :
Accessibilité:
Bus Bus C9 à 2 min (Arrêt Palais de Justice) : Direct vers Bellecour ou Gare Part-Dieu.
Bus Bus C13 / C11 à 5 min (Arrêt Part-Dieu Servient) : Liaisons vers Hôtel de Ville et Grange Blanche.
Tram Tram T1 à 3 min (Arrêt Palais de Justice - Mairie du 3ème) : Direct vers Perrache ou Gerland.
Métro Métro B à 5 min (Station Place Guichard - Bourse du Travail)
SNCF Gare Part-Dieu ~8-10 min à pied (Accès TGV / Rhône Express Aéroport)
SNCF Gare Perrache ~15 min (Direct via Tram T1)
SNCF Gare Jean Macé ~10 min (Direct via Métro B)
vélo'V Vélo'v à 1 min (Station Danton / Servient)
Les informations sur les risques auxquels ce bien est exposé sont disponibles sur le site Géorisques : www.georisques.gouv.fr
Nous vous proposons en location gérance un fonds de commerce de restauration de 275 m² situé dans le 3ème arrondissement de Lyon. Cet établissement dispose d'une forte capacité d'accueil, de nombreux espaces extérieurs, d'une Licence IV et d'une extraction de 400 mm. Équipement complet pour une reprise immédiate. CA 2025 : 460 248 euros HT. Opportunité idéale pour un restaurateur confirmé.
Restaurant à Louer - Lyon 3e - 275 m² - Licence IV
| Étage | Type | Surfaces | Dispo | Loyer | Charges | Type de bailRév. annuelle |
|---|---|---|---|---|---|---|
| RDC | Locaux Commerciaux | 275 | 218,18 | 2000 HT/an | ILC Indice des Loyers Commerciaux |
Régime Fiscal : T.V.A. (20%)
Dépôt de garantie : 3 mois de loyer HT/HC
Honoraires : 15% HT du loyer annuel HT à la charge du preneur, payables à la signature du bail
Prestations :
- Restaurant entièrement équipé
- Licence IV
- Climatisation réversible
- Extraction 400 mm
- Alimentation électrique triphasée
- Cuisine équipée (plaque induction, sans gaz)
- Espaces extérieurs : terrasse estivale (16 couverts), intérieur (100 couverts), patio (40 couverts)
- Visibilité :Bonne
- Licence :IV
- Extracteur de fumées : oui
Accessibilité:
Bus Bus C9 à 2 min (Arrêt Palais de Justice) : Direct vers Bellecour ou Gare Part-Dieu.
Bus Bus C13 / C11 à 5 min (Arrêt Part-Dieu Servient) : Liaisons vers Hôtel de Ville et Grange Blanche.
Tram Tram T1 à 3 min (Arrêt Palais de Justice - Mairie du 3ème) : Direct vers Perrache ou Gerland.
Métro Métro B à 5 min (Station Place Guichard - Bourse du Travail)
SNCF Gare Part-Dieu ~8-10 min à pied (Accès TGV / Rhône Express Aéroport)
SNCF Gare Perrache ~15 min (Direct via Tram T1)
SNCF Gare Jean Macé ~10 min (Direct via Métro B)
vélo'V Vélo'v à 1 min (Station Danton / Servient)
Les informations sur les risques auxquels ce bien est exposé sont disponibles sur le site Géorisques : www.georisques.gouv.fr
Voir plus
Afficher les consommations énergétiques
Localisation et transport aux alentours
Favoris
Exporter
Appeler
Contacter
Signaler cette annonce






