Conseil en immobilier d'entreprise, Cushman & Wakefield est un acteur incontournable au rayonnement international. Cushman & Wakefield offre des solutions dans toutes les étapes que comporte un p ...
En savoir plus



100 m²
HT HC
Location bureau - 100 m²
Lyon 6 (69006)
Dernière mise à jour : Il y a 4 jours
Bureaux haussmanniens à louer - 100 m² au coeur des Brotteaux, Lyon 6e
Cushman & Wakefield Lyon vous propose à la location de superbes bureaux situés au 9 boulevard des Brotteaux, au coeur du 6e arrondissement de Lyon. Ce secteur emblématique, prisé pour son dynamisme et son cadre de travail prestigieux, se trouve à quelques minutes à pied de la gare Part-Dieu et du métro Brotteaux, offrant une accessibilité optimale pour vos collaborateurs et clients.
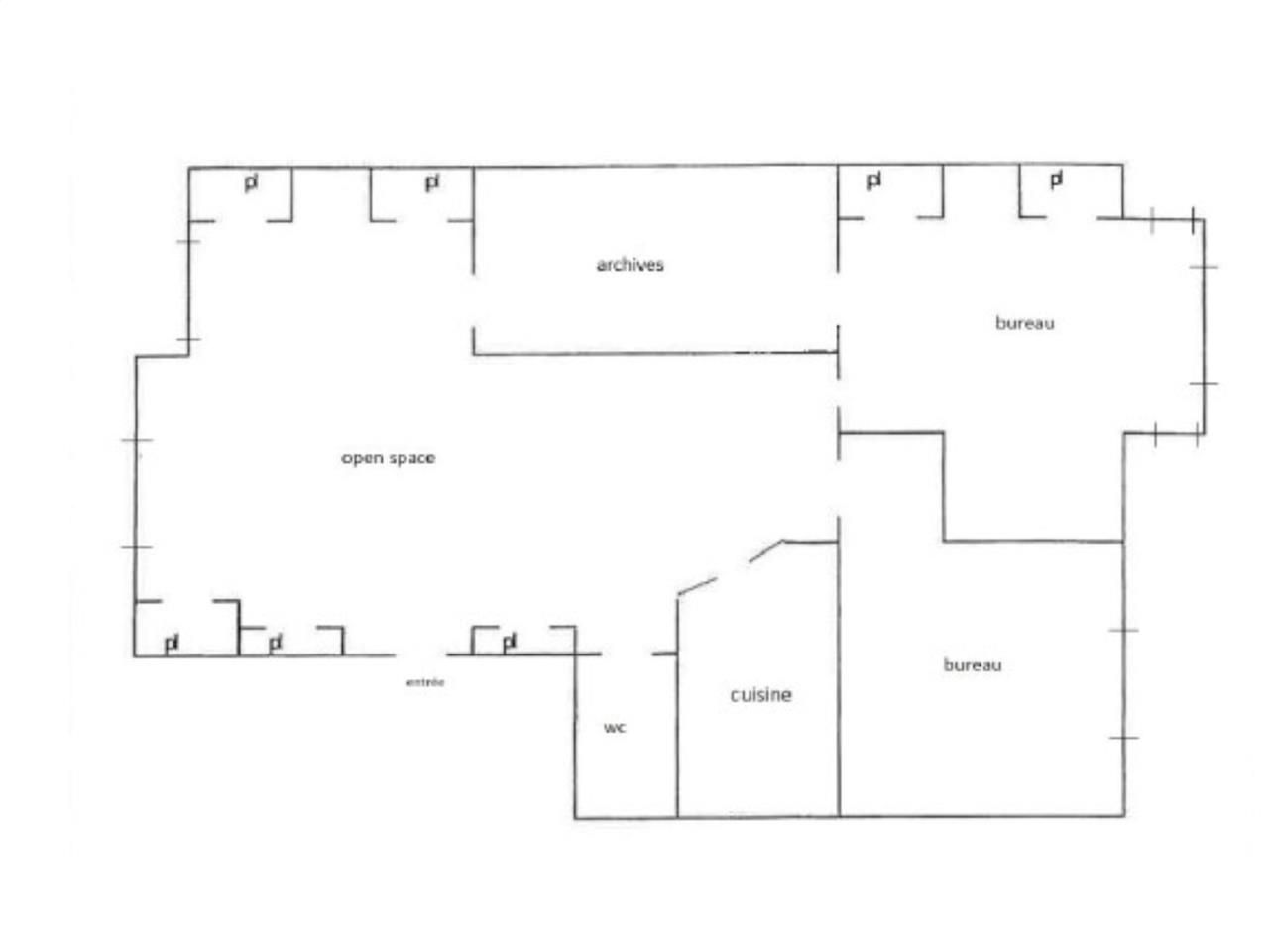
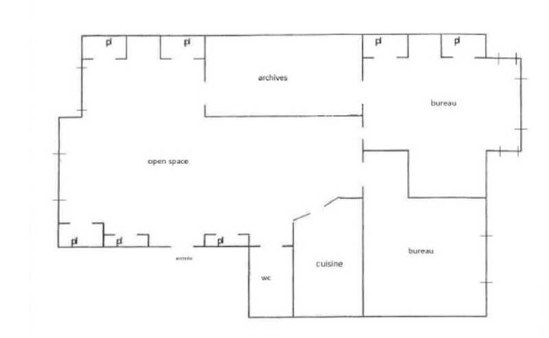
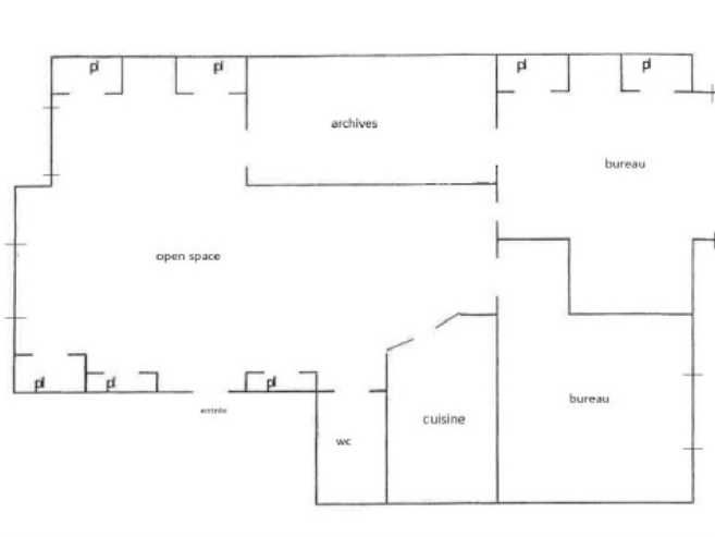
Installés dans un immeuble haussmannien rénové, ces bureaux d'une superficie d'environ 100 m² se situent à l'étage, desservis par un ascenseur. L'aménagement allie élégance et fonctionnalité, comprenant deux vastes bureaux fermés, un open space lumineux, une salle d'archives, une cuisine équipée, ainsi qu'une cave privative en sous-sol.
Les locaux bénéficient d'une climatisation complète, garantissant un confort optimal tout au long de l'année. La belle hauteur sous plafond, les moulures d'époque et la lumière naturelle confèrent à l'ensemble un caractère à la fois authentique et moderne, idéal pour accueillir une activité tertiaire, un cabinet de conseil ou une structure de services.
L'environnement immédiat offre un cadre professionnel de premier ordre : restaurants, commerces, transports et sont accessibles en quelques pas. Le quartier des Brotteaux, réputé pour sa qualité architecturale et sa vitalité économique, séduit les entreprises souhaitant combiner image de marque, accessibilité et qualité de vie au travail.
Ces bureaux sont disponibles immédiatement et constituent une opportunité rare sur le marché lyonnais, alliant cachet, modernité et localisation stratégique.
Pour toute information complémentaire ou pour planifier une visite, Cushman & Wakefield Lyon se tient à votre disposition.
Impôt Foncier : 1200 €/
Régime Fiscal : T.V.A.
Paiement Loyer : Trimestriel
Honoraires : à la charge du preneur
Information sur le Bail :
Charges : 2600 euros Dépôt de garantie : 6.982,50 euros
Prestations :
Accessibilité:
Métro Brotteaux (Métro B)
Métro Masséna (Métro A)
Bus Lignes 70-JD981-C1-C2-C6
Les informations sur les risques auxquels ce bien est exposé sont disponibles sur le site Géorisques : www.georisques.gouv.fr
Cushman & Wakefield Lyon vous propose à la location de superbes bureaux situés au 9 boulevard des Brotteaux, au coeur du 6e arrondissement de Lyon. Ce secteur emblématique, prisé pour son dynamisme et son cadre de travail prestigieux, se trouve à quelques minutes à pied de la gare Part-Dieu et du métro Brotteaux, offrant une accessibilité optimale pour vos collaborateurs et clients.
Installés dans un immeuble haussmannien rénové, ces bureaux d'une superficie d'environ 100 m² se situent à l'étage, desservis par un ascenseur. L'aménagement allie élégance et fonctionnalité, comprenant deux vastes bureaux fermés, un open space lumineux, une salle d'archives, une cuisine équipée, ainsi qu'une cave privative en sous-sol.
Les locaux bénéficient d'une climatisation complète, garantissant un confort optimal tout au long de l'année. La belle hauteur sous plafond, les moulures d'époque et la lumière naturelle confèrent à l'ensemble un caractère à la fois authentique et moderne, idéal pour accueillir une activité tertiaire, un cabinet de conseil ou une structure de services.
L'environnement immédiat offre un cadre professionnel de premier ordre : restaurants, commerces, transports et sont accessibles en quelques pas. Le quartier des Brotteaux, réputé pour sa qualité architecturale et sa vitalité économique, séduit les entreprises souhaitant combiner image de marque, accessibilité et qualité de vie au travail.
Ces bureaux sont disponibles immédiatement et constituent une opportunité rare sur le marché lyonnais, alliant cachet, modernité et localisation stratégique.
Pour toute information complémentaire ou pour planifier une visite, Cushman & Wakefield Lyon se tient à votre disposition.
| Étage | Type | Surfaces | Dispo | Loyer | Charges | Type de bailRév. annuelle |
|---|---|---|---|---|---|---|
| Bureaux | 100 | 250 HT/HC/m²/an | 3-6-9 ansSur l'indice ILAT |
Impôt Foncier : 1200 €/
Régime Fiscal : T.V.A.
Paiement Loyer : Trimestriel
Honoraires : à la charge du preneur
Information sur le Bail :
Charges : 2600 euros Dépôt de garantie : 6.982,50 euros
Prestations :
- Cushman & Wakefield Lyon vous propose à la location de superbes bureaux situés au 9 boulevard des Brotteaux, au coeur du 6e arrondissement de Lyon. Ce secteur emblématique, prisé pour son dynamisme et son cadre de travail prestigieux, se trouve à quelques minutes à pied de la gare Part-Dieu et du métro Brotteaux, offrant une accessibilité optimale pour vos collaborateurs et clients.
- Installés dans un immeuble haussmannien rénové, ces bureaux d'une superficie d'environ 100 m² se situent à l'étage, desservis par un ascenseur. L'aménagement allie élégance et fonctionnalité, comprenant deux vastes bureaux fermés, un open space lumineux, une salle d'archives, une cuisine équipée, ainsi qu'une cave privative en sous-sol.
- Les locaux bénéficient d'une climatisation complète, garantissant un confort optimal tout au long de l'année. La belle hauteur sous plafond, les moulures d'époque et la lumière naturelle confèrent à l'ensemble un caractère à la fois authentique et moderne, idéal pour accueillir une activité tertiaire, un cabinet de conseil ou une structure de services.
- L'environnement immédiat offre un cadre professionnel de premier ordre : restaurants, commerces, transports et parkings publics sont accessibles en quelques pas. Le quartier des Brotteaux, réputé pour sa qualité architecturale et sa vitalité économique, séduit les entreprises souhaitant combiner image de marque, accessibilité et qualité de vie au travail.
- Ces bureaux sont disponibles immédiatement et constituent une opportunité rare sur le marché lyonnais, alliant cachet, modernité et localisation stratégique.
- Pour toute information complémentaire ou pour planifier une visite, Cushman & Wakefield Lyon se tient à votre disposition.
Accessibilité:
Métro Brotteaux (Métro B)
Métro Masséna (Métro A)
Bus Lignes 70-JD981-C1-C2-C6
Les informations sur les risques auxquels ce bien est exposé sont disponibles sur le site Géorisques : www.georisques.gouv.fr
Voir plus
Afficher les consommations énergétiques
Localisation et transport aux alentours
Favoris
Exporter
Appeler
Contacter
Signaler cette annonce










