MCarré Conseil est une agence spécialiste de l'immobilier d’entreprise du sud de l’Île-de-France (en Essonne et dans le sud de la Seine-et-Marne et du Val-De-Marne). Elle vous accompagne à chaque é ...
En savoir plus

276 m² divisible dès 80 m²
HT HC
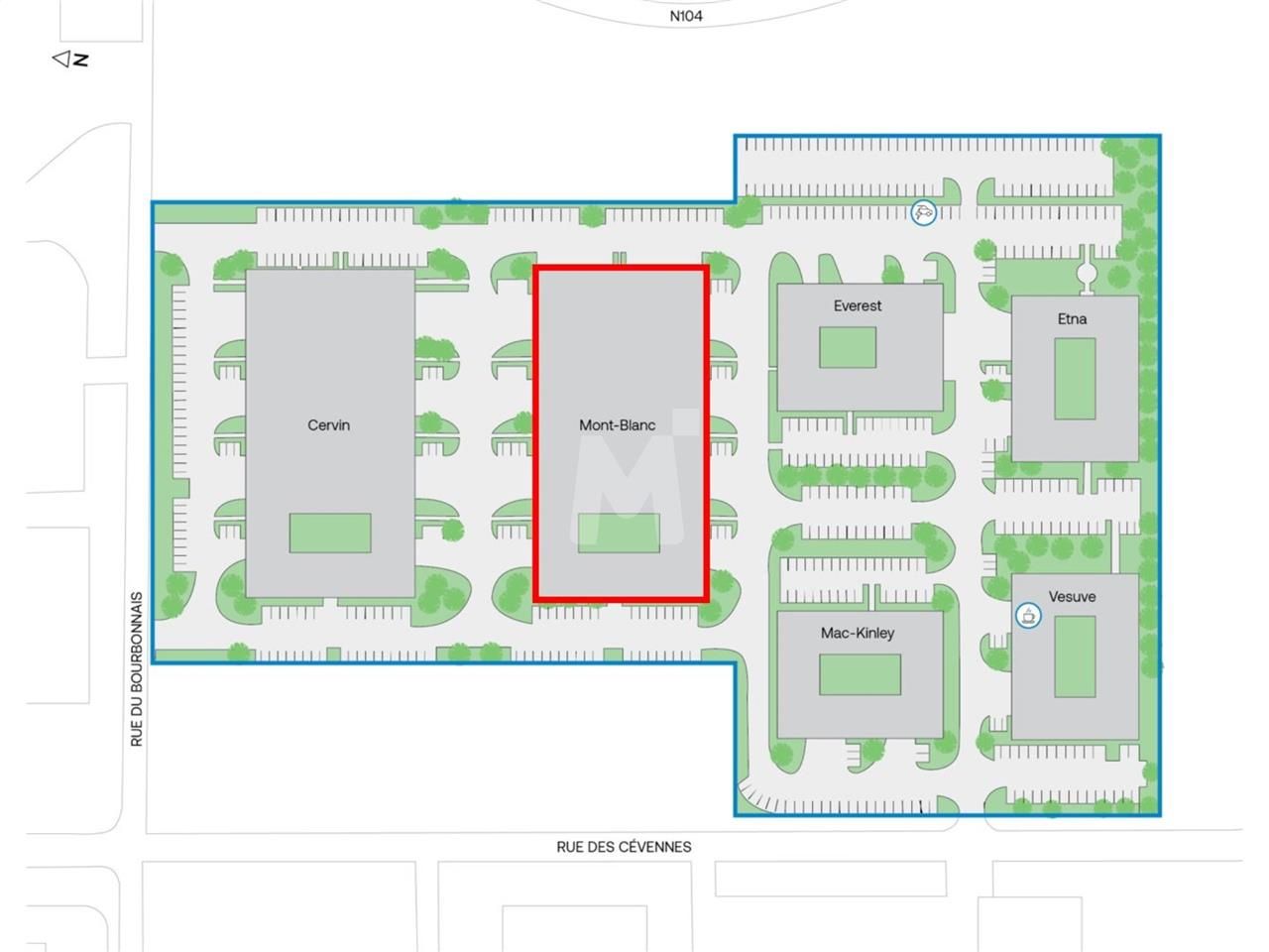
Location bureau - 276 m²
Lisses (91090)
Dernière mise à jour : Il y a 1 mois
Proche de l'autoroute A6 et de la Francilienne (N104), nous vous proposons à la location des surfaces à usage d'activité et/ou de bureaux.
Impôt Foncier : 22,8 €/HT/m²/an
Régime Fiscal : TVA
Dépôt de garantie : 3 mois de loyer TTC
Honoraires : 15% HT du loyer annuel HT HC
Taxe Bureau : 4,6 €/m²/an
Information sur le Bail :
Les charges ne comprennent pas les fluides
Prestations :
Accessibilité:
Autoroute Autoroute A6 sortie Lisses Centre - Courcouronnes - Bois Briard
Route Nationale 104 Francilienne sortie n°33 Courcouronnes - Lisses
Route Nationale 7
RER RER D4 : Evry-Courcouronnes
Bus Dauphiné (Ligne 207, Ligne 416, Ligne 415)
Les informations sur les risques auxquels ce bien est exposé sont disponibles sur le site Géorisques : www.georisques.gouv.fr
| Étage | Type | Surfaces | Dispo | Loyer | Charges | Type de bailRév. annuelle |
|---|---|---|---|---|---|---|
| 1 | Bureaux | 196 | Immédiate | 165 m²/an HT HC | 22,3 HT/m²/an | 3/6/9/12 ansIndice ILAT |
| 1 | Bureaux | 80 | Immédiate | 165 m²/an HT HC | 22,3 HT/m²/an | 3/6/9/12 ansIndice ILAT |
| Parkings | 350 place/an HT HC | Indice ILAT |
Impôt Foncier : 22,8 €/HT/m²/an
Régime Fiscal : TVA
Dépôt de garantie : 3 mois de loyer TTC
Honoraires : 15% HT du loyer annuel HT HC
Taxe Bureau : 4,6 €/m²/an
Information sur le Bail :
Les charges ne comprennent pas les fluides
Prestations :
- Nombreux emplacements de parkings extérieurs
- Bornes de recharge pour véhicules électriques
- Espace de restauration sur le parc
- Espaces verts
- Locaux entièrement rénovés
- Climatisation réversible
- Eclairage LED
- Chauffage par aérothermes électriques
- Monte-charge et/ou ascenseur
- Electricité : possibilité d'apporter facilement du triphasé sur les lots
- Parkings sur demande
Accessibilité:
Autoroute Autoroute A6 sortie Lisses Centre - Courcouronnes - Bois Briard
Route Nationale 104 Francilienne sortie n°33 Courcouronnes - Lisses
Route Nationale 7
RER RER D4 : Evry-Courcouronnes
Bus Dauphiné (Ligne 207, Ligne 416, Ligne 415)
Les informations sur les risques auxquels ce bien est exposé sont disponibles sur le site Géorisques : www.georisques.gouv.fr
Voir plus
Afficher les consommations énergétiques
Localisation et transport aux alentours
Favoris
Exporter
Appeler
Contacter
Signaler cette annonce










