L’agence CBRE Lille conseille et accompagne les chefs d’entreprise dans leurs projets immobiliers quels que soient leur taille et leur secteur d’activité. Spécialistes de la transaction de bureaux, ...
En savoir plus

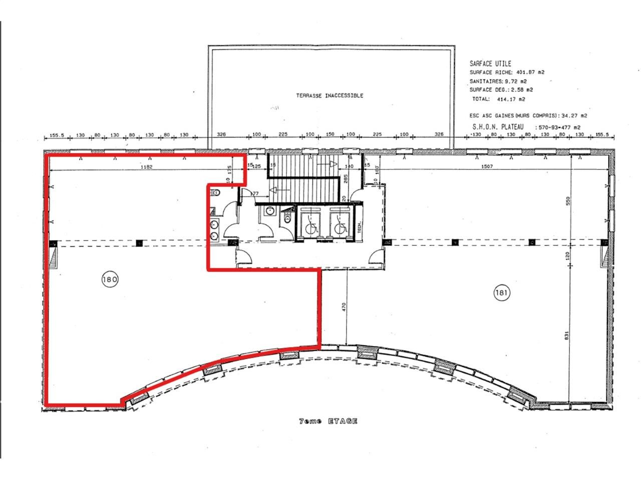
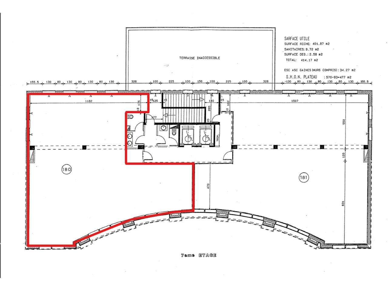
191 m²
HT HC
Location bureau - 191 m²
Lille (59000)
Dernière mise à jour : Il y a 2 jours
CBRE vous propose à la location ce plateau de bureaux entièrement rénové. La situation et l'accessibilité sont idéales, à l'entrée de Lille par le boulevard périphérique, bénéficiez d'un réel effet d'enseigne sur un axe à forte notoriété. Ce plateau lumineux et fonctionnel propose des prestations de qualité et des parkings en sous sol.
Impôt Foncier : 25 €/m²/ an
Régime Fiscal : T.V.A.
Dépôt de garantie : 3 mois de loyer HT/HC
Honoraires : 15% à la charge du preneur
Prestations :
Accessibilité:
Metro Ligne 1 station : "Grand Palais"
Autoroute A1
Route . Boulevard périphérique
. A 10 min des gares
Bus Lignes 14,18, L1 arrêt : "Liberté"
Les informations sur les risques auxquels ce bien est exposé sont disponibles sur le site Géorisques : www.georisques.gouv.fr
| Étage | Type | Surfaces | Dispo | Loyer | Charges | Type de bailRév. annuelle |
|---|---|---|---|---|---|---|
| 7 | Bureaux | 191 | Immédiate | 165 m²/an HT HC | 23 HT/m²/an | 3-6-9 ansIndice ILAT |
Impôt Foncier : 25 €/m²/ an
Régime Fiscal : T.V.A.
Dépôt de garantie : 3 mois de loyer HT/HC
Honoraires : 15% à la charge du preneur
Prestations :
- Bureaux et parties communes rénovés
- Climatisation
- Contrôle d'accès
- Chauffage par convecteurs électriques individuels
- Cave
- Double vitrage
- Dalles LED
- Plateaux rénovés
- Précâblage informatique
- Places de stationnement :
- 6 places intérieures
- Loyer place intérieure : 1 000 euros HT HC/U/an
Accessibilité:
Metro Ligne 1 station : "Grand Palais"
Autoroute A1
Route . Boulevard périphérique
. A 10 min des gares
Bus Lignes 14,18, L1 arrêt : "Liberté"
Les informations sur les risques auxquels ce bien est exposé sont disponibles sur le site Géorisques : www.georisques.gouv.fr
Voir plus
Afficher les consommations énergétiques
Favoris
Exporter
Appeler
Contacter
Signaler cette annonce










