L’agence CBRE Lille conseille et accompagne les chefs d’entreprise dans leurs projets immobiliers quels que soient leur taille et leur secteur d’activité. Spécialistes de la transaction de bureaux, ...
En savoir plus

1 726 m² divisible dès 215 m²
HT HC
Location bureau - 1726 m²
Lille (59000)
Dernière mise à jour : Il y a 4 mois
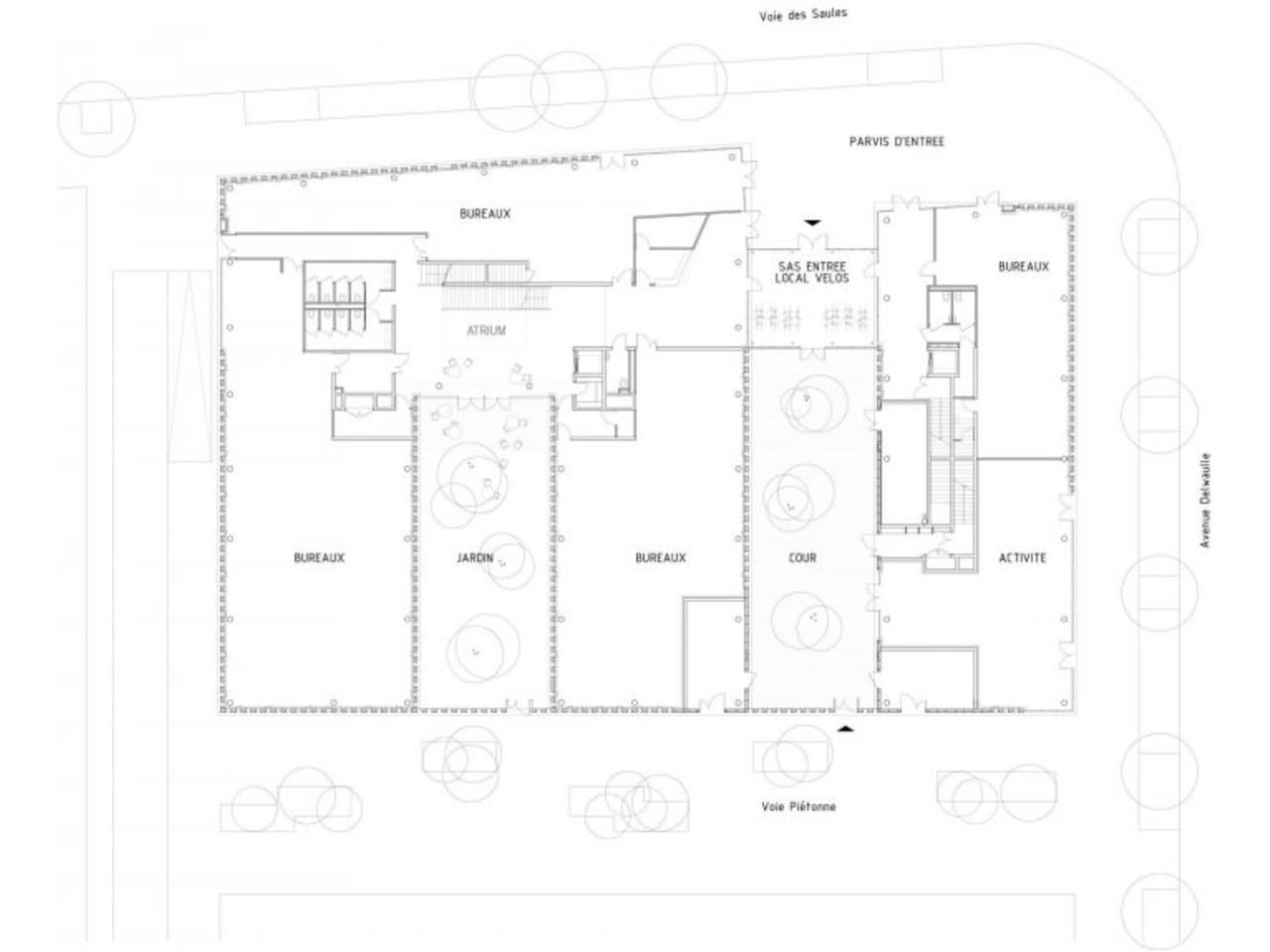
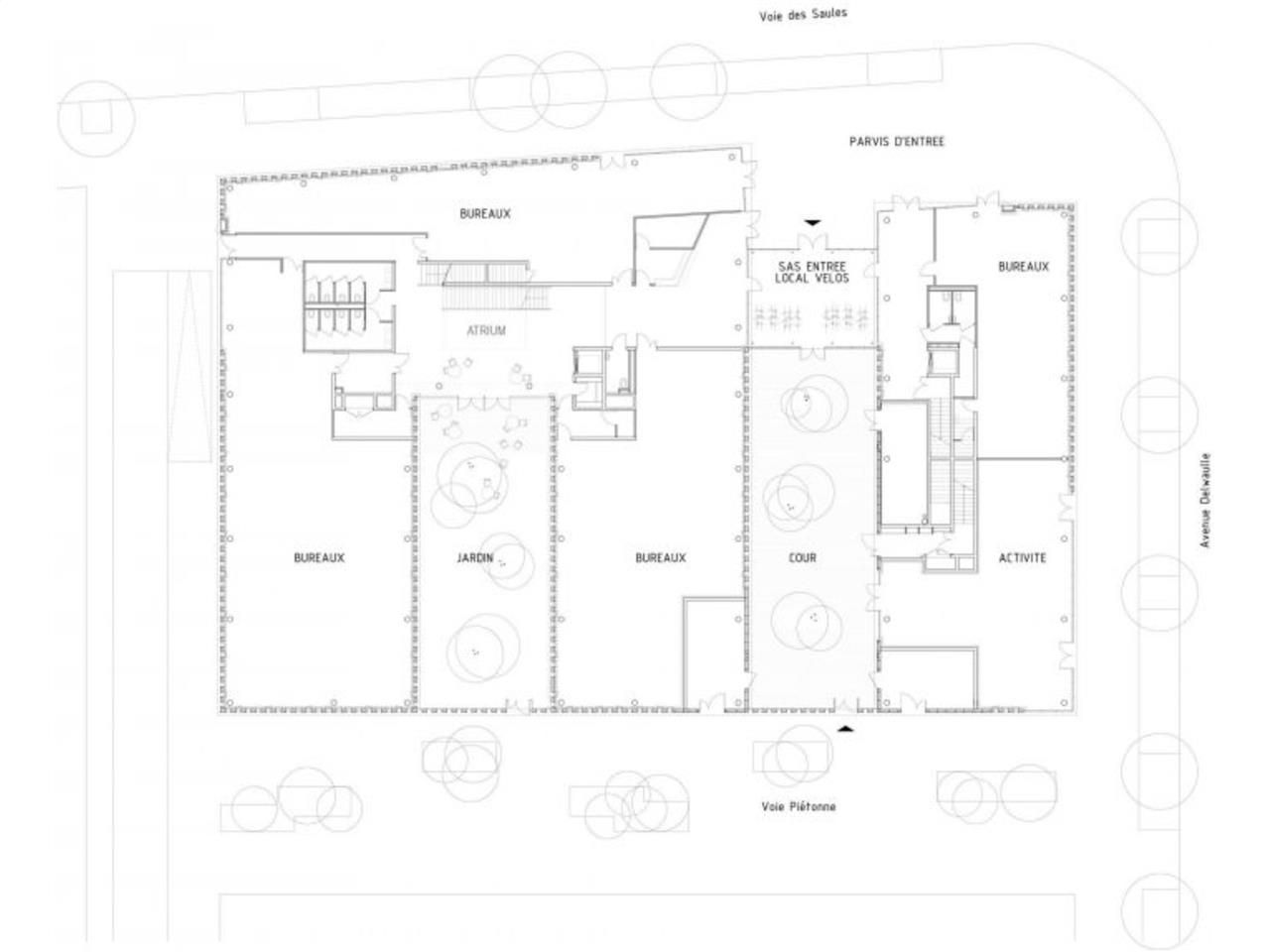
Le DOGE, est un ensemble immobilier de bureaux proposant plus de 2 000 m², destiné à des jeunes startups, est situé dans la ZAC des Rives de la Haute Deûle à Lille, au coeur d'Euratechnologies. L'immeuble propose plusieurs surfaces dans deux bâtiments réunis par une cour et un sas intérieurs. Cet immeuble propose une architecture inattendue, inventive et pertinente.
Pour correspondre à la hauteur d'étage d'un plateau de bureaux, le dessin de la façade est complété par un bandeau en béton préfabriqué blanc à chaque nez de dalle, évocation de la pierre intégrant l'appareillage en brique de l'architecture traditionnelle locale.
En raison de leur intervalle, les briques génèrent des ombres sur la façade qui protègent le bâtiment de la surchauffe en été. L'inertie thermique des planchers béton ainsi que l'habillage bois des parois intérieures participent également au confort d'usage au long de l'année de ces bureaux « à l'allure industrielle » sans climatisation ni faux plafonds et faux planchers.
Impôt Foncier : 21 €/HT/m²/an
Régime Fiscal : T.V.A.
Dépôt de garantie : 3 mois de loyer HT/HC
Paiement Loyer : trimestriel
Honoraires : 15% HT du loyer annuel HT HC à la charge du preneur
Prestations :
Accessibilité:
Bus Lignes 18, 76 arrêt : Euratechnologies
Metro Ligne 2 station : Canteleu
Route M750
SNCF Gares TER & TGV à 15 min
Les informations sur les risques auxquels ce bien est exposé sont disponibles sur le site Géorisques : www.georisques.gouv.fr
Pour correspondre à la hauteur d'étage d'un plateau de bureaux, le dessin de la façade est complété par un bandeau en béton préfabriqué blanc à chaque nez de dalle, évocation de la pierre intégrant l'appareillage en brique de l'architecture traditionnelle locale.
En raison de leur intervalle, les briques génèrent des ombres sur la façade qui protègent le bâtiment de la surchauffe en été. L'inertie thermique des planchers béton ainsi que l'habillage bois des parois intérieures participent également au confort d'usage au long de l'année de ces bureaux « à l'allure industrielle » sans climatisation ni faux plafonds et faux planchers.
| Étage | Type | Surfaces | Dispo | Loyer | Charges | Type de bailRév. annuelle |
|---|---|---|---|---|---|---|
| 1 | Bureaux | 437 | Immédiate | 155 m²/an HT HC | 41 HT/m²/an | 6-9 ansIndice ILAT |
| 2 | Bureaux | 217 | Immédiate | 155 m²/an HT HC | 41 HT/m²/an | 6-9 ansIndice ILAT |
| 3 | Bureaux | 217 | Immédiate | 155 m²/an HT HC | 41 HT/m²/an | 6-9 ansIndice ILAT |
| RDC | Bureaux | 362 | Immédiate | 155 m²/an HT HC | 41 HT/m²/an | 6-9 ansIndice ILAT |
| RDC | Bureaux | 278 | Immédiate | 155 m²/an HT HC | 41 HT/m²/an | 6-9 ansIndice ILAT |
| RDC | Bureaux | 215 | Immédiate | 155 m²/an HT HC | 41 HT/m²/an | 6-9 ansIndice ILAT |
Impôt Foncier : 21 €/HT/m²/an
Régime Fiscal : T.V.A.
Dépôt de garantie : 3 mois de loyer HT/HC
Paiement Loyer : trimestriel
Honoraires : 15% HT du loyer annuel HT HC à la charge du preneur
Prestations :
- Ascenseurs
- Aménagement du hall, de la terrasse et du roof top
- Boîte aux lettres digitale
- Chauffage collectif (chaudière au gaz)
- Douches
- ERP 5ème catégorie
- Frigidaire connecté
- Hall d'entrée
- Hauteur sous plafond : 3.25 m au RDC et 2,7 m aux étages
- Immeuble ERP 5ème catégorie
- Phones-box
- Terrasse et rooftop
- Labellisation BREEAM Very Good
- 26 places de stationnement :
- Loyer : 1 000 euros HT/U/an
- Surface RDC : 855 m²
Accessibilité:
Bus Lignes 18, 76 arrêt : Euratechnologies
Metro Ligne 2 station : Canteleu
Route M750
SNCF Gares TER & TGV à 15 min
Les informations sur les risques auxquels ce bien est exposé sont disponibles sur le site Géorisques : www.georisques.gouv.fr
Voir plus
Afficher les consommations énergétiques
Favoris
Exporter
Appeler
Contacter
Signaler cette annonce










