Conseil en immobilier d'entreprise, Cushman & Wakefield est un acteur incontournable au rayonnement international. Cushman & Wakefield offre des solutions dans toutes les étapes que comporte un p ...
En savoir plus



3 070 m² divisible dès 294 m²
HT HC
HIGHTEC 6 - Location bureau - 3070 m²
Les Ulis (91940)
Dernière mise à jour : Il y a 2 jours
À louer : bureaux avec lot en RDC à vocation d'activité aux Ulis
Immeuble HIGHTEC 6
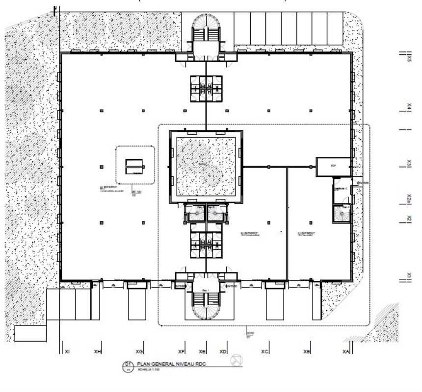
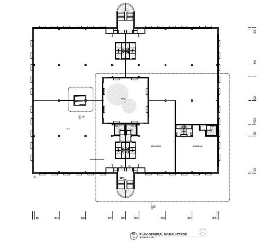
Découvrez ces bureaux d'une surface totale de 2 110 m², divisibles à partir de 255 m², situés aux Ulis, dans une zone stratégique (parc HIGHTECH6) en plein développement. Ce bien comprend un lot en rez-de-chaussée dédié aux activités, idéal pour les entreprises ayant besoin d'un accès direct ou d'un espace multifonctionnel.
Ces bureaux, lumineux et flexibles, offrent un cadre de travail agréable et modulable selon vos besoins. L'agencement est optimisé pour allier confort et productivité, et le site bénéficie d'un environnement professionnel dynamique. Sa localisation est un véritable atout, avec un accès rapide aux principaux axes routiers, notamment l'autoroute A10, ainsi qu'aux transports en commun, facilitant les déplacements pour vos équipes et clients.
Des places de stationnement sont disponibles, assurant une praticité maximale. Ce bien est une opportunité unique pour installer ou développer votre activité dans un secteur attractif et accessible.
Contactez-nous dès aujourd'hui pour plus d'informations ou pour planifier une visite.
Régime Fiscal : T.V.A.
Honoraires : 15 % HT du loyer annuel HT/HC à la charge du preneur.
Taxe Bureau : 5,82 €/m²/an
Information sur le Bail :
TF Immeuble APOGEE : 17,11 euros HT/m² TF Immeuble ZENITH : 18,32 euros HT/m²
Prestations :
Accessibilité:
Aéroport Orly à 15 min
Accès routier A10, N118, N104 (N20, A6)
Bus 1 toutes les 10 min
RER Orsay-Ville (RER B) à 5 min
RER Massy-Palaiseau (RER B - C)
Les informations sur les risques auxquels ce bien est exposé sont disponibles sur le site Géorisques : www.georisques.gouv.fr
Immeuble HIGHTEC 6
Découvrez ces bureaux d'une surface totale de 2 110 m², divisibles à partir de 255 m², situés aux Ulis, dans une zone stratégique (parc HIGHTECH6) en plein développement. Ce bien comprend un lot en rez-de-chaussée dédié aux activités, idéal pour les entreprises ayant besoin d'un accès direct ou d'un espace multifonctionnel.
Ces bureaux, lumineux et flexibles, offrent un cadre de travail agréable et modulable selon vos besoins. L'agencement est optimisé pour allier confort et productivité, et le site bénéficie d'un environnement professionnel dynamique. Sa localisation est un véritable atout, avec un accès rapide aux principaux axes routiers, notamment l'autoroute A10, ainsi qu'aux transports en commun, facilitant les déplacements pour vos équipes et clients.
Des places de stationnement sont disponibles, assurant une praticité maximale. Ce bien est une opportunité unique pour installer ou développer votre activité dans un secteur attractif et accessible.
Contactez-nous dès aujourd'hui pour plus d'informations ou pour planifier une visite.
| Étage | Type | Surfaces | Dispo | Loyer | Charges | Type de bailRév. annuelle |
|---|---|---|---|---|---|---|
| RdC | Activités | 644 | Immédiate | 90 HT/HC/m²/an | 22,56 HT/m²/an | 3-6-9 ansSur l'indice ILAT |
| RdC | Activités | 1838 | Immédiate | 130 HT/HC/m²/an | 21,38 HT/m²/an | 3-6-9 ansSur l'indice ILAT |
| RdC | Bureaux | 294 | Immédiate | 130 HT/HC/m²/an | 21,38 HT/m²/an | 3-6-9 ansSur l'indice ILAT |
| RdC | Bureaux | 294 | Immédiate | 130 HT/HC/m²/an | 21,38 HT/m²/an | 3-6-9 ansSur l'indice ILAT |
Régime Fiscal : T.V.A.
Honoraires : 15 % HT du loyer annuel HT/HC à la charge du preneur.
Taxe Bureau : 5,82 €/m²/an
Information sur le Bail :
TF Immeuble APOGEE : 17,11 euros HT/m² TF Immeuble ZENITH : 18,32 euros HT/m²
Prestations :
- Immeuble ancien
- L'immeuble APOGEE est construit en rez-de-chaussée et 1 étage.
- Rénovation totale bureaux et activités du bâtiment APOGEE
- Stationnement en extérieur autour des immeubles
- Espaces verts
- Site clos et sécurisé
- Surface RDC : 3161 m²
Accessibilité:
Aéroport Orly à 15 min
Accès routier A10, N118, N104 (N20, A6)
Bus 1 toutes les 10 min
RER Orsay-Ville (RER B) à 5 min
RER Massy-Palaiseau (RER B - C)
Les informations sur les risques auxquels ce bien est exposé sont disponibles sur le site Géorisques : www.georisques.gouv.fr
Voir plus
Afficher les consommations énergétiques
Localisation et transport aux alentours
Favoris
Exporter
Appeler
Contacter
Signaler cette annonce










