MCarré Conseil est une agence spécialiste de l'immobilier d’entreprise du sud de l’Île-de-France (en Essonne et dans le sud de la Seine-et-Marne et du Val-De-Marne). Elle vous accompagne à chaque é ...
En savoir plus

72 m²
HT HC
Location bureau - 72 m²
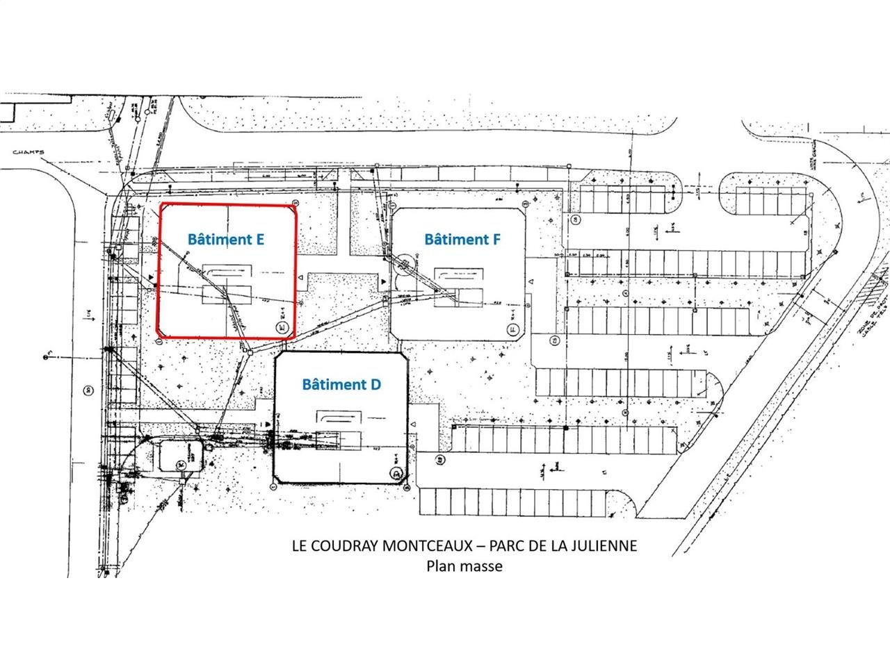
Le Coudray-Montceaux (91830)
Dernière mise à jour : Il y a 3 jours
A proximité de l'autoroute A6 et de la Nationale 7, dans le Parc de Julienne, nous vous proposons à la location une surface de 72 m² à usage de bureaux en rez-de-chaussée.
Impôt Foncier : 20 €/HT/m²/an
Régime Fiscal : TVA
Dépôt de garantie : 3 mois de loyer HT/HC
Honoraires : 15% HT du loyer annuel HT/HC
Taxe Bureau : 10,73 €/m²/an
Information sur le Bail :
Loyer annuel : 10 440 euros HT/HC Les provisions pour charges incluent les provisions pour électricité
Prestations :
Accessibilité:
Autoroute Autoroute A6
Route Nationale 7
RER RER D :" Le Coudray Montceaux"
Les informations sur les risques auxquels ce bien est exposé sont disponibles sur le site Géorisques : www.georisques.gouv.fr
| Étage | Type | Surfaces | Dispo | Loyer | Charges | Type de bailRév. annuelle |
|---|---|---|---|---|---|---|
| Rdc | Bureaux | 72 | Immédiate | 145 m²/an HT HC | 20 HT/m²/an | 3/6/9 ansIndice ILAT |
| Parkings | 3/6/9 ansIndice ILAT |
Impôt Foncier : 20 €/HT/m²/an
Régime Fiscal : TVA
Dépôt de garantie : 3 mois de loyer HT/HC
Honoraires : 15% HT du loyer annuel HT/HC
Taxe Bureau : 10,73 €/m²/an
Information sur le Bail :
Loyer annuel : 10 440 euros HT/HC Les provisions pour charges incluent les provisions pour électricité
Prestations :
- Bureaux cloisonnés
- Hauteur libre : 3,20 m
- Plinthes filantes périphériques
- Chauffage électrique par convecteur + climatisation réversible suivant les lots
- Sanitaires PMR en RDC
- Kitchenette (1 lot)
- Surface RDC : 72 m²
Accessibilité:
Autoroute Autoroute A6
Route Nationale 7
RER RER D :" Le Coudray Montceaux"
Les informations sur les risques auxquels ce bien est exposé sont disponibles sur le site Géorisques : www.georisques.gouv.fr
Emplacement(s) de Parking: extérieur(s)
Voir plus
Afficher les consommations énergétiques
Localisation et transport aux alentours
Favoris
Exporter
Appeler
Contacter
Signaler cette annonce




