Nous sommes Immprove, une grande équipe de plus de 200 experts en immobilier d’entreprise, implantés localement avec plus de 20 agences sur tout le territoire.Depuis 2009, notre proximité, notre ét ...
En savoir plus



415 m²
HT HC
LE RASPAIL - Location bureau - 415 m²
Ivry-sur-Seine (94200)
Dernière mise à jour : Il y a 7 jours
Bureaux proche du Métro et RER
Immeuble LE RASPAIL
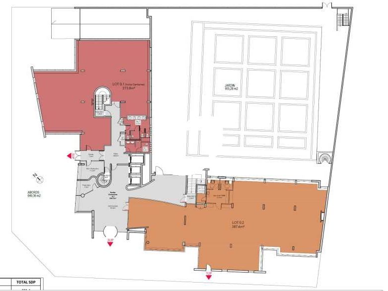
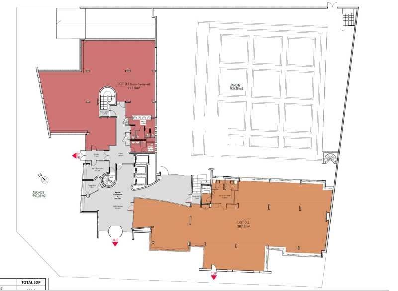
Située au coeur d'Ivry-sur-Seine, une commune en pleine effervescence économique, l'offre immobilière d'IMMPROVE se distingue par un environnement professionnel de premier choix. À quelques pas seulement des stations de métro "Mairie d'Ivry" de la ligne 7 et "Ivry-sur-Seine" du RER C, ces bureaux de standing, d'une superficie totale de 415 m², non divisibles, offrent un accès privilégié aux principaux axes de transport de la région parisienne. Cette proximité garantit une connectivité optimale pour les entreprises souhaitant s'établir dans cet épicentre stratégique, tout en bénéficiant de l'effervescence culturelle et économique d'un quartier en plein essor.
Impôt Foncier : 38 €/m²/an HT
Régime Fiscal : T.V.A. (20%)
Dépôt de garantie : 3 mois de loyer TTC HC
Honoraires : 15% HT du loyer annuel HT HC à la charge du preneur
Taxe Bureau : 6 €/m²/an
Prestations :
Accessibilité:
Bus Saint-Just (BUS-182)
Métro Mairie d'Ivry (METRO-7)
RER IVRY-SUR-SEINE (RER C)
Transilien Ivry-sur-Seine (TRAIN-RER C)
SNCF Ivry-sur-Seine (France)
Les informations sur les risques auxquels ce bien est exposé sont disponibles sur le site Géorisques : www.georisques.gouv.fr
Immeuble LE RASPAIL
Située au coeur d'Ivry-sur-Seine, une commune en pleine effervescence économique, l'offre immobilière d'IMMPROVE se distingue par un environnement professionnel de premier choix. À quelques pas seulement des stations de métro "Mairie d'Ivry" de la ligne 7 et "Ivry-sur-Seine" du RER C, ces bureaux de standing, d'une superficie totale de 415 m², non divisibles, offrent un accès privilégié aux principaux axes de transport de la région parisienne. Cette proximité garantit une connectivité optimale pour les entreprises souhaitant s'établir dans cet épicentre stratégique, tout en bénéficiant de l'effervescence culturelle et économique d'un quartier en plein essor.
| Étage | Type | Surfaces | Dispo | Loyer | Charges | Type de bailRév. annuelle |
|---|---|---|---|---|---|---|
| RDC | Bureaux | 415 | Immédiate | 180 m²/an HT HC | 61 m²/an HT | Bail Commercial 3-6-9 ansselon l'indice des loyers des activités tertiaires (ILAT) |
Impôt Foncier : 38 €/m²/an HT
Régime Fiscal : T.V.A. (20%)
Dépôt de garantie : 3 mois de loyer TTC HC
Honoraires : 15% HT du loyer annuel HT HC à la charge du preneur
Taxe Bureau : 6 €/m²/an
Prestations :
- Immeuble moderne
- Façade en pierres agrafées
- Accès PMR
- Parties communes de bon standing
- Ascenseur PMR
- Contrôle d'accès
- Digicode
- Interphone
- Accès sécurisé par badge
- Climatisation réversible
- Fibre optique
- R.I.E à proximité
- Jardin paysager commun au RDC
- Locaux livrés rénovés
- Façade ravalée
- 2 terrasses
- Archives : 88 m²
- Moquette / Faux plafond
- Climatisation réversible
- Sanitaires privatifs
- Les deux plateaux du RDC sont ERP PMR
- Surface RDC : 415 m²
Accessibilité:
Bus Saint-Just (BUS-182)
Métro Mairie d'Ivry (METRO-7)
RER IVRY-SUR-SEINE (RER C)
Transilien Ivry-sur-Seine (TRAIN-RER C)
SNCF Ivry-sur-Seine (France)
Les informations sur les risques auxquels ce bien est exposé sont disponibles sur le site Géorisques : www.georisques.gouv.fr
Voir plus
Afficher les consommations énergétiques
Localisation et transport aux alentours
Favoris
Exporter
Appeler
Contacter
Signaler cette annonce










