BNP Paribas Real Estate Lille, qui revendique plus de 40 ans de présence sur le marché lillois, est composé d''une équipe expérimentée aux expertises diversifiées. Elle est principalement composée ...
En savoir plus

340 m²
HT HC
Location bureau - 340 m²
Dunkerque (59140)
Dernière mise à jour : Aujourd'hui
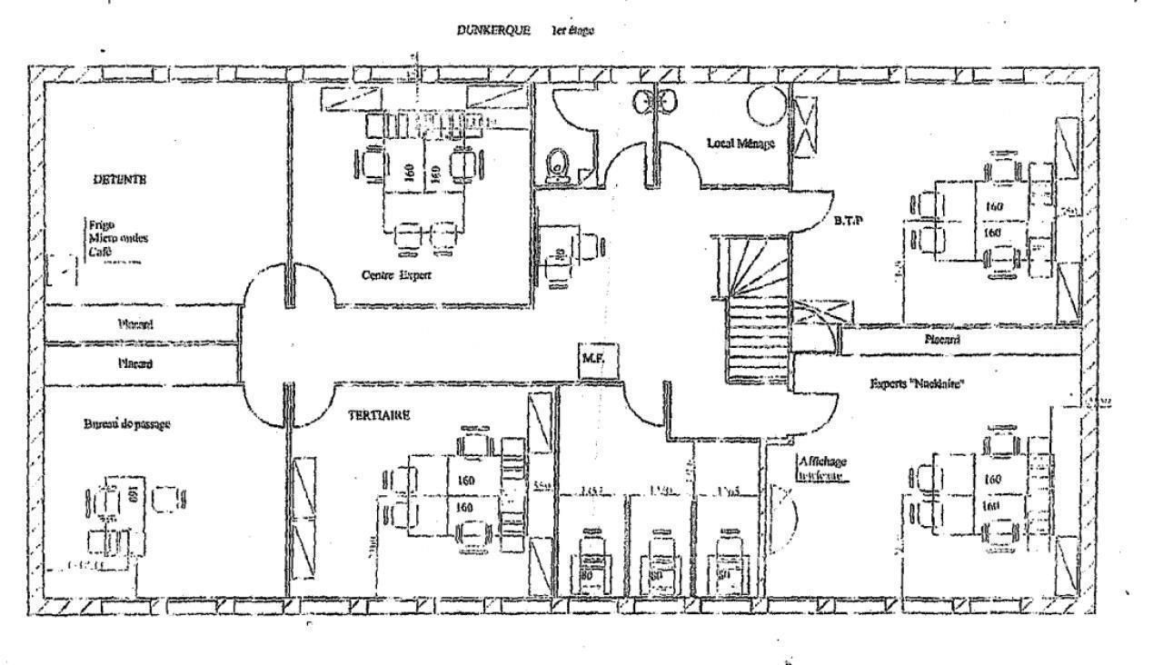
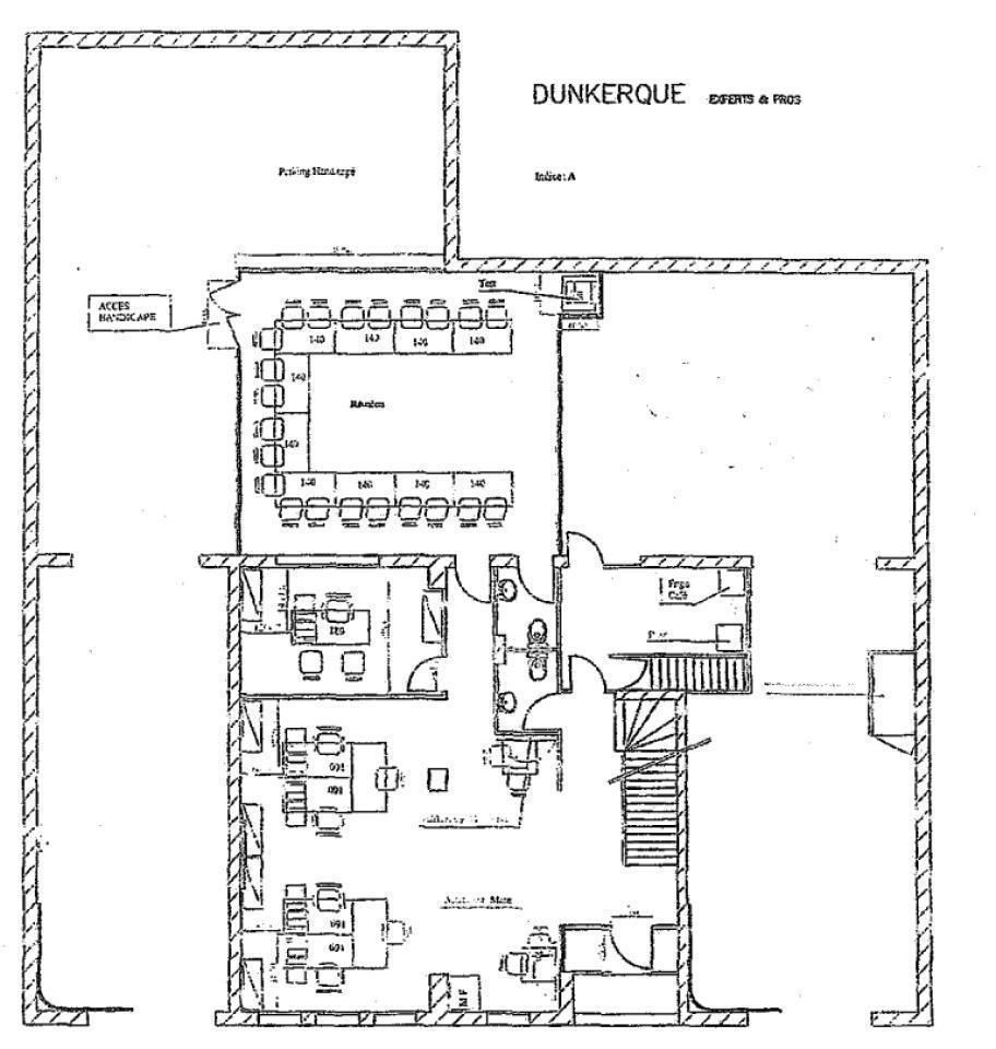
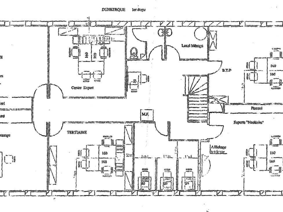
Bureaux en plein centre de Dunkerque - à louer ou à vendre - locaux aménagés avec espaces de stockage et garage BNP Paribas Real Estate vous propose, à la location ou à la vente, un batiment indépendant idéalement situé en hypercentre de Dunkerque.
Nous vous proposons des locaux en plein coeur de Dunkerque, idéalement situés à proximité des transports en commun, avec un accès immédiat aux services et commerces du centre-ville.
Prestations :
- Btiment indépendant
- Locaux aménagés : open-space, bureaux, salle de réunion
- Espace de stockage
- Garage pouvant accueillir jusqu'à 10 véhicules
- Services et commerces du centre-ville à 2 pas du btiment
Accessibilité :
- Gare de Dunkerque à 900m
- Espace DK'BUS à 900m
- Axes autoroutiers (A16 et A25) à proximité
Disponibilité : immédiate
Honoraires: 15% HT du loyer HT/HC. à la signature du bail
| Fiche technique du bien | |
|---|---|
| Bus | Espace DK'BUS à 10 minutes à pieds 900 m |
| Desserte routière | A proximité des autoroutes A16 et A25 |
| Gare | Dunkerque Gare de Dunkerque à proximité - 900m 900 m |
| Source chauffage | Electrique Convecteur électrique |
| Environnement de proximité | Services et commerces à 2 pas du bâtiment |
| Aménagement des bureaux | Bureaux aménagés : open-space, bureaux, salle de réunion |
| Faux plafond | Faux plafond |
| Sol bureaux | Moquette Dalle moquette |
| Autre élément bureau | Espace de stockage et garage |
Afficher les consommations énergétiques
Localisation et transport aux alentours
Favoris
Exporter
Appeler
Contacter
Signaler cette annonce
