L’agence CBRE Lille conseille et accompagne les chefs d’entreprise dans leurs projets immobiliers quels que soient leur taille et leur secteur d’activité. Spécialistes de la transaction de bureaux, ...
En savoir plus

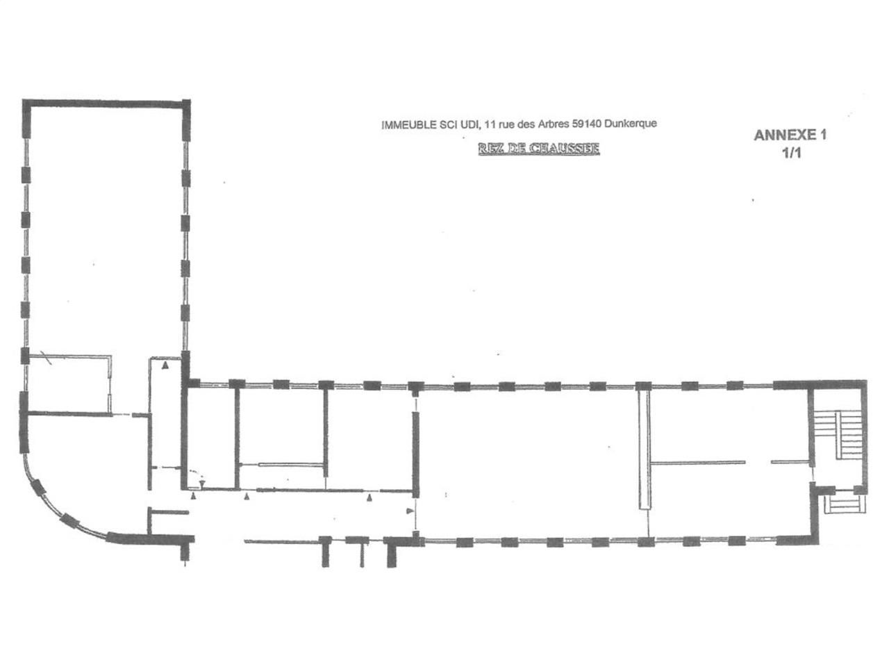
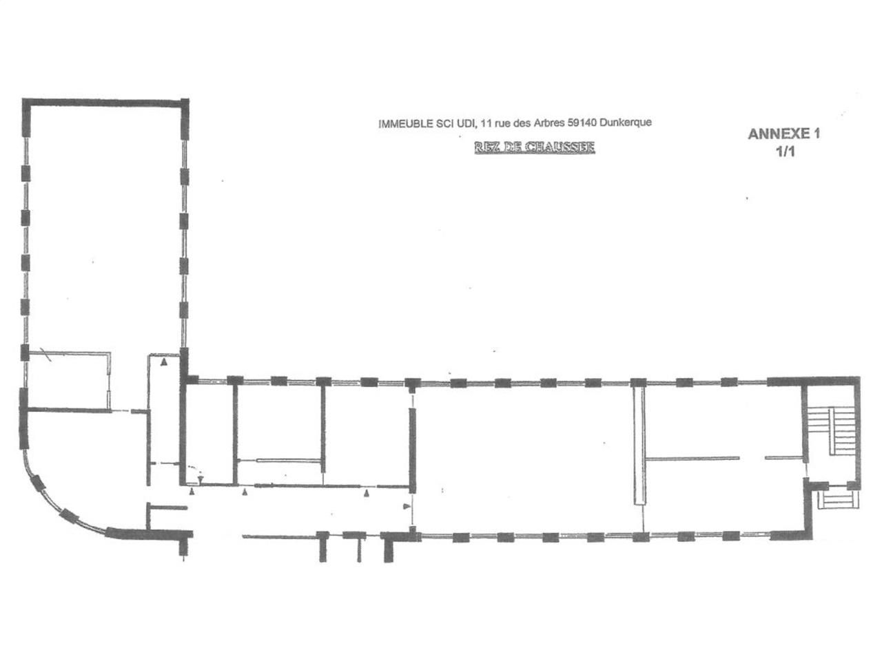
677 m² divisible dès 300 m²
HT HC
Location bureau - 677 m²
Dunkerque (59140)
Dernière mise à jour : Il y a 9 mois
CBRE vous propose à la location deux plateaux de bureaux d'une surface de 677 m² divisibles à partir de 300 m² au coeur du centre-ville de Dunkerque. L'immeuble est situé à 20 minutes à pied de la gare TGV de Dunkerque. L'immeuble dispose d'un ascenseur et les bureaux ont 10 places de parkings attitrées en box. Possibilité d'aménager les combles en sus. Disponible en septembre 2024.
Régime Fiscal : T.V.A.
Dépôt de garantie : 3 mois de loyer HT/HC
Honoraires : 15% HT du loyer annuel HT/HC à la charge du preneur
Prestations :
Les informations sur les risques auxquels ce bien est exposé sont disponibles sur le site Géorisques : www.georisques.gouv.fr
| Étage | Type | Surfaces | Dispo | Loyer | Charges | Type de bailRév. annuelle |
|---|---|---|---|---|---|---|
| RDC | Bureaux | 300 | Immédiate | 140 m²/an HT HC | 3-6-9 ansIndice ILAT | |
| 1 | Bureaux | 377 | Immédiate | 140 m²/an HT HC | 3-6-9 ansIndice ILAT |
Régime Fiscal : T.V.A.
Dépôt de garantie : 3 mois de loyer HT/HC
Honoraires : 15% HT du loyer annuel HT/HC à la charge du preneur
Prestations :
- Ascenseur
- Accès PMR - ERP
- Open Space
- Salle de réunion
- Bureaux cloisonnés
- Cloisonnement
- Faux plafond
- Fibre Optique
- 10 Places de parking intérieur
- Surface RDC : 300 m²
Les informations sur les risques auxquels ce bien est exposé sont disponibles sur le site Géorisques : www.georisques.gouv.fr
10 Parkings int.
Voir plus
Afficher les consommations énergétiques
Favoris
Exporter
Appeler
Contacter
Signaler cette annonce










