Evolis, votre partenaire en immobilier d’entreprise! Que vous soyez une entreprise, utilisateur de locaux professionnels, investisseur, ou propriétaire, Evolis met à votre service son expertise ...
En savoir plus

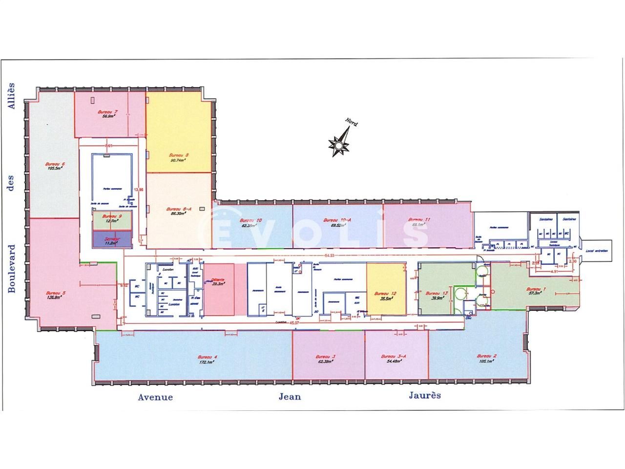
630 m² divisible dès 36 m²
HT HC
Location bureau - 630 m²
Choisy-le-Roi (94600)
Dernière mise à jour : Il y a 6 jours
ORIX MAGIDAS
EVOLIS propose à la location des bureaux à Choisy-le-Roi, offrant un cadre de travail optimal. Ces locaux lumineux et cloisonnés bénéficient d'une sécurité assurée 24h/24.
De plus, ils offrent la possibilité de se conformer aux normes E.R.P., garantissant ainsi une adaptabilité aux besoins spécifiques des entreprises.
Régime Fiscal : T.V.A.
Dépôt de garantie : 3 mois de loyer HT HC
Honoraires : 15% HT du loyer annuel HT HC à la charge du preneur
Information sur le Bail :
le loyer comprend : les charges, taxes, électricité, internet, mobiliers
Prestations :
Accessibilité:
Bus Rouget de Lisle (483, 282, TVM, 103, 393, CHOISYBUS, N71), Choisy le Roi / Rouget de Lisle (N31, N133), Choisy-le-Roi RER (182), Général Leclerc (183, 185)
RER Choisy-le-Roi (C)
Tram Rouget de Lisle (T9)
Grand Paris Express Les Ardoines (L15 Fin 2025)
Les informations sur les risques auxquels ce bien est exposé sont disponibles sur le site Géorisques : www.georisques.gouv.fr
EVOLIS propose à la location des bureaux à Choisy-le-Roi, offrant un cadre de travail optimal. Ces locaux lumineux et cloisonnés bénéficient d'une sécurité assurée 24h/24.
De plus, ils offrent la possibilité de se conformer aux normes E.R.P., garantissant ainsi une adaptabilité aux besoins spécifiques des entreprises.
| Étage | Type | Surfaces | Dispo | Loyer | Charges | Type de bailRév. annuelle |
|---|---|---|---|---|---|---|
| 2 | Bureaux | 90,74 | Immédiate | 475,01 m²/an HT HC | Bail commercial 3-6-9 ansILAT Indice des Loyers des Activités Tertiaires | |
| 2 | Bureaux | 86,3 | Immédiate | 475,01 m²/an HT HC | Bail commercial 3-6-9 ansILAT Indice des Loyers des Activités Tertiaires | |
| 2 | Bureaux | 69,52 | Immédiate | 475,01 m²/an HT HC | Bail commercial 3-6-9 ansILAT Indice des Loyers des Activités Tertiaires | |
| 2 | Bureaux | 69,1 | Immédiate | 475,01 m²/an HT HC | Bail commercial 3-6-9 ansILAT Indice des Loyers des Activités Tertiaires | |
| 2 | Bureaux | 62,38 | Immédiate | 475,01 m²/an HT HC | Bail commercial 3-6-9 ansILAT Indice des Loyers des Activités Tertiaires | |
| 2 | Bureaux | 62,38 | Immédiate | 475,01 m²/an HT HC | Bail commercial 3-6-9 ansILAT Indice des Loyers des Activités Tertiaires | |
| 2 | Bureaux | 57,3 | Immédiate | 475,01 m²/an HT HC | Bail commercial 3-6-9 ansILAT Indice des Loyers des Activités Tertiaires | |
| 2 | Bureaux | 56,9 | Immédiate | 475,01 m²/an HT HC | Bail commercial 3-6-9 ansILAT Indice des Loyers des Activités Tertiaires | |
| 2 | Bureaux | 39,9 | Immédiate | 475,01 m²/an HT HC | Bail commercial 3-6-9 ansILAT Indice des Loyers des Activités Tertiaires | |
| 2 | Bureaux | 35,5 | Immédiate | 475,01 m²/an HT HC | Bail commercial 3-6-9 ansILAT Indice des Loyers des Activités Tertiaires |
Régime Fiscal : T.V.A.
Dépôt de garantie : 3 mois de loyer HT HC
Honoraires : 15% HT du loyer annuel HT HC à la charge du preneur
Information sur le Bail :
le loyer comprend : les charges, taxes, électricité, internet, mobiliers
Prestations :
- ERP : ERP possible
- Hall de réception
- Accès PMR
- Ascenseurs
- ***IMMEUBLE***
- Immeuble récent
- Accès véhicules légers
- Parties communes de bon standing
- Ascenseur
- Ascenseur PMR
- Monte-charge
- Contrôle d'accès
- Gardienne
- PC sécurité
- Site sécurisé 24h/24h
- Digicode
- ***BUREAUX***
- Accueil
- Bureaux cloisonnés
- Salle de réunion
- Espace détente
- Cuisine
- Sanitaires
- Locaux lumineux
- Locaux rationnels et modulables
- Faux plafonds
- Sol PVC
- Pré-câblage informatique et téléphonique
- Possibilité de normes E.R.P.
Accessibilité:
Bus Rouget de Lisle (483, 282, TVM, 103, 393, CHOISYBUS, N71), Choisy le Roi / Rouget de Lisle (N31, N133), Choisy-le-Roi RER (182), Général Leclerc (183, 185)
RER Choisy-le-Roi (C)
Tram Rouget de Lisle (T9)
Grand Paris Express Les Ardoines (L15 Fin 2025)
Les informations sur les risques auxquels ce bien est exposé sont disponibles sur le site Géorisques : www.georisques.gouv.fr
Voir plus
Afficher les consommations énergétiques
Localisation et transport aux alentours
Favoris
Exporter
Appeler
Contacter
Signaler cette annonce










