Spécialisés dans l''immobilier d''entreprise et situés de la région d''Annecy, les agents BNP Paribas Real Estate s''appuient sur leur connaissance inégalée du territoire et de ses enjeux pour acco ...
En savoir plus

2 245 m² divisible dès 93 m²
HT HC
Location activité/entrepôt - 2245 m²
Chambéry (73000)
Dernière mise à jour : Aujourd'hui
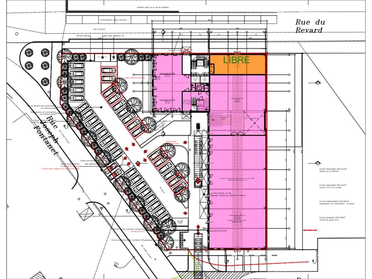
BUREAUX A LOUER DANS IMMEUBLE NEUF - FONTANETTES Nous vous proposons un batiment tertiaire et d'activité à construire d'une surface totale de 2 245 m² en R+2, réparti de la manière suivante : Environ 1 291 m² d'atelier/stockage avec pont roulant + 493 m² de bureaux en R+1 + 486 m² de bureaux en R+2 De nombreux emplacements sont disponibles en parties privatives mais également aux alentours du batiment. Le batiment sera livré au T1 2026. Pour plus d'informations, n'hésitez pas à nous contacter.
Bâtiment tertiaire et d'activité à construire sur la zone des FONTANETTES à Chambéry.
Le bâtiment à construire fera une surface totale de 2 245 m² réparti sur un foncier de 3 110 m² en Bail à construction de 60 ans.
L'immeuble est idéalement situé, à enviroon 2 minutes en voiture de l'entrée/sortie VRU ainsi qu'à 5 minutes en voiture du centre-ville de Chambéry.
Le bâtiment sera dôté de toutes les normes environnementales en vigueur.
BNP Paribas Real Estate est présent en Isère, Savoie, Haute-Savoie et Lyon avec des interlocuteurs privilégiés pour chaque ville.
N'hésitez pas à nous contacter pour de plus amples renseignements.
Disponibilité: 02/02/2026Honoraires: 15% HT du loyer HT/HC. à la signature du bail
| Fiche technique du bien | |
|---|---|
| Ascenseur(s) | 1 8P |
| Aménagement des bureaux | Espaces Ouverts Plateaux livrés paysagés |
| Faux plafond | Dal. fibres minéral. |
| Eclairage Bureaux | Spots Dalles LED |
| Sol bureaux | Moquette |
| Plinthes techniq.périphériques | Oui |
| Sanitaire(s) | 8 Parties communes 4 PMR |
Voir plus
Afficher les consommations énergétiques
Surfaces divisibles : 9
| Surface | LoyerHT/HC/m²/an | Étage / Batiment | Infos complémentaires |
| 1266 m² | N.C | RDC | RDC Acti + Bureaux |
| 150 m² | N.C | R+1 | R+1 - Lot 11 |
| 100 m² | N.C | R+1 | R+1 - Lot 13 |
| 93 m² | N.C | R+1 | R+1 - Lot 14 |
| 150 m² | N.C | R+1 | R+1 - Lot 12 |
| 143 m² | N.C | R+2 | R+2 - Lot 21 |
| 150 m² | N.C | R+2 | R+2 - Lot 22 |
| 100 m² | N.C | R+2 | R+2 - Lot 23 |
| 93 m² | N.C | R+2 | R+2 - Lot 24 |
Favoris
Exporter
Appeler
Contacter
Signaler cette annonce
