Conseil en immobilier d'entreprise, Cushman & Wakefield est un acteur incontournable au rayonnement international. Cushman & Wakefield offre des solutions dans toutes les étapes que comporte un p ...
En savoir plus



699 m² divisible dès 349 m²
HT HC
LE BREGET - Location bureau - 699 m²
Bron (69500)
Dernière mise à jour : Il y a 8 mois
Bureaux à vendre ou louer à BRON (69500)
Immeuble LE BREGET
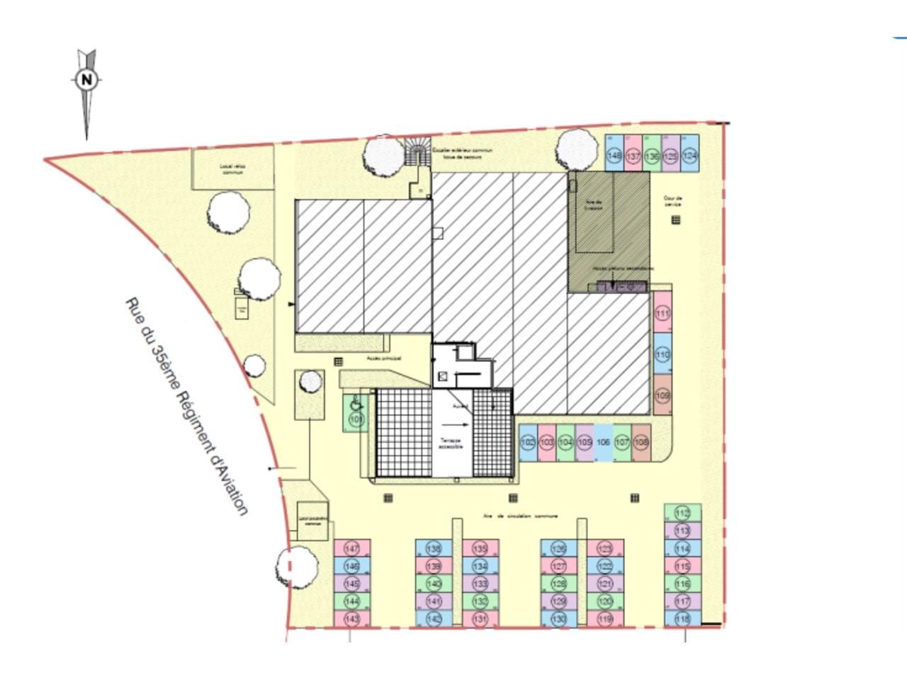
Cushman & Wakefield Lyon vous propose à la vente ou à la location plusieurs surfaces de bureaux situées à Bron, au 22 rue du 35ème Régiment d'Aviation, au sein de l'immeuble neuf « Le Bréguet ». Ce programme tertiaire moderne se distingue par son positionnement stratégique dans l'Est lyonnais, à proximité des grands axes et des transports, et offre un cadre de travail fonctionnel et agréable, en lien direct avec les nouvelles attentes des entreprises.
Le Bréguet propose des plateaux de bureaux neufs, lumineux et facilement aménageables, divisibles à partir de 164 m², afin de s'adapter aussi bien aux besoins des petites structures qu'aux sociétés de plus grande envergure. Ces espaces offrent une excellente modularité pour imaginer des environnements de travail sur-mesure, adaptés à votre activité. Les plateaux sont livrés avec un sol en moquette, des menuiseries en PVC double vitrage assurant confort thermique et acoustique, ainsi qu'une arrivée et une évacuation d'eau prévues pour l'installation d'une cuisine. Certains lots bénéficient également de balcons, ajoutant une qualité d'usage appréciable pour vos collaborateurs.
L'immeuble en lui-même se distingue par la qualité de ses finitions et de ses parties communes, élégamment traitées et dotées d'un ascenseur, garantissant confort et accessibilité. L'un des atouts majeurs du bâtiment est son rooftop commun, accessible à l'ensemble des utilisateurs : un espace unique et convivial, idéal pour vos pauses, réunions informelles ou moments de détente en plein air, les jours de beau temps.
Enfin, plusieurs emplacements de stationnement extérieurs sont disponibles à l'acquisition ou à la location, avec des installations prévues pour la recharge des véhicules électriques, anticipant les besoins de mobilité durable de vos collaborateurs et visiteurs.
Si vous recherchez des bureaux neufs, bien desservis et implantés dans un environnement calme mais connecté, cette opportunité au sein du Bréguet constitue une réponse adaptée à de nombreux projets immobiliers professionnels. Contactez dès maintenant notre équipe Cushman & Wakefield Lyon pour plus d'informations ou pour organiser une visite.
Impôt Foncier : 19 €/HT/m²/an
Régime Fiscal : T.V.A.
Dépôt de garantie : 3 mois de loyer HT/HC
Paiement Loyer : Trimestriel
Prestations :
Accessibilité:
Tram Parc du Chêne (T2-T5) à 6 min à pied
Bus Lignes 52-79-Zi7 à 200 m
Accès routier Accès direct A43- bd périphérique
Métro Parilly (ligne D) à 10 min en voiture
Les informations sur les risques auxquels ce bien est exposé sont disponibles sur le site Géorisques : www.georisques.gouv.fr
Immeuble LE BREGET
Cushman & Wakefield Lyon vous propose à la vente ou à la location plusieurs surfaces de bureaux situées à Bron, au 22 rue du 35ème Régiment d'Aviation, au sein de l'immeuble neuf « Le Bréguet ». Ce programme tertiaire moderne se distingue par son positionnement stratégique dans l'Est lyonnais, à proximité des grands axes et des transports, et offre un cadre de travail fonctionnel et agréable, en lien direct avec les nouvelles attentes des entreprises.
Le Bréguet propose des plateaux de bureaux neufs, lumineux et facilement aménageables, divisibles à partir de 164 m², afin de s'adapter aussi bien aux besoins des petites structures qu'aux sociétés de plus grande envergure. Ces espaces offrent une excellente modularité pour imaginer des environnements de travail sur-mesure, adaptés à votre activité. Les plateaux sont livrés avec un sol en moquette, des menuiseries en PVC double vitrage assurant confort thermique et acoustique, ainsi qu'une arrivée et une évacuation d'eau prévues pour l'installation d'une cuisine. Certains lots bénéficient également de balcons, ajoutant une qualité d'usage appréciable pour vos collaborateurs.
L'immeuble en lui-même se distingue par la qualité de ses finitions et de ses parties communes, élégamment traitées et dotées d'un ascenseur, garantissant confort et accessibilité. L'un des atouts majeurs du bâtiment est son rooftop commun, accessible à l'ensemble des utilisateurs : un espace unique et convivial, idéal pour vos pauses, réunions informelles ou moments de détente en plein air, les jours de beau temps.
Enfin, plusieurs emplacements de stationnement extérieurs sont disponibles à l'acquisition ou à la location, avec des installations prévues pour la recharge des véhicules électriques, anticipant les besoins de mobilité durable de vos collaborateurs et visiteurs.
Si vous recherchez des bureaux neufs, bien desservis et implantés dans un environnement calme mais connecté, cette opportunité au sein du Bréguet constitue une réponse adaptée à de nombreux projets immobiliers professionnels. Contactez dès maintenant notre équipe Cushman & Wakefield Lyon pour plus d'informations ou pour organiser une visite.
| Étage | Type | Surfaces | Dispo | Loyer | Charges | Type de bailRév. annuelle |
|---|---|---|---|---|---|---|
| RdC | Bureaux | 310,6 | Sur l'indice ILAT | |||
| RdC | Autres | 38,2 | Sur l'indice ILAT | |||
| Total Cellule Lot 1 | Bureaux | 348,8 | 140 HT/HC/m²/an | 27,79 HT/m²/an | 3-6-9 ansSur l'indice ILAT | |
| 1 | Bureaux | 311,9 | Sur l'indice ILAT | |||
| 1 | Autres | 38,4 | Sur l'indice ILAT | |||
| Total Cellule Lot 5 | Bureaux | 350,3 | 145 HT/HC/m²/an | 27,79 HT/m²/an | 3-6-9 ansSur l'indice ILAT | |
| pkg Ext | Parkings | 350 HT/HC/place/an | Sur l'indice ILAT |
Impôt Foncier : 19 €/HT/m²/an
Régime Fiscal : T.V.A.
Dépôt de garantie : 3 mois de loyer HT/HC
Paiement Loyer : Trimestriel
Prestations :
- Immeuble tertiaire indépendant en cours de restructuration
- Site clos et arboré
- Eclairage d'ambiance extérieur
- Contrôle d'accès extérieur (visiophone)
- Porte d'accès principale automatique
- RT 2012
- Isolation thermique intérieure (façade et plafonds)
- Menuiserie en PVC blanc
- Faux plafond acoustique avec dalles LED
- Production chaud / froid des bureaux par PAC air / fluide frigorigène (système 3 tubes)
- Emission chaud / froid par unités intérieures plafonnières
- Système de rafraichissement d'air et de chauffage réversible
- Régulation de la température ambiante par thermostat
- Chaque lot de bureaux a son propre système de ventilation et/ou moteur en toiture
- Sols : dalle moquette ou PVC souple
- Ascenseur
- Fibre optique
- Plinthes techniques en périphérie
- Alarme incendie en parties communes
- Balcons et rooftop avec auvent bénéficiant des branchements eau et électricité
- Local 2 roues clos et couvert avec prise électrique
- 48 parkings extérieurs
- Prédisposition électrique pour bornes de recharge
- Parking paysagé avec places adaptées aux PMR
- Terrasse accessible en toiture : 203.2 m²
- Locaux accessibles PMR
- Sanitaires : prestation haut de gamme / ventilation mécanique
- Lot 7 : 7.3 m² de balcon
- Immeuble indépendant
- Surface RDC : 348,8 m²
Accessibilité:
Tram Parc du Chêne (T2-T5) à 6 min à pied
Bus Lignes 52-79-Zi7 à 200 m
Accès routier Accès direct A43- bd périphérique
Métro Parilly (ligne D) à 10 min en voiture
Les informations sur les risques auxquels ce bien est exposé sont disponibles sur le site Géorisques : www.georisques.gouv.fr
Voir plus
Afficher les consommations énergétiques
Localisation et transport aux alentours
Favoris
Exporter
Appeler
Contacter
Signaler cette annonce










