L’agence CBRE Toulouse conseille et accompagne les chefs d’entreprise dans leurs projets immobiliers quels que soient leur taille et leur secteur d’activité. Spécialistes de la transaction de burea ...
En savoir plus

437 m²
HT HC
Location bureau - 437 m²
Balma (31130)
Dernière mise à jour : Il y a 2 jours
Bureaux à louer à BALMA, dans un immeuble récent proche du métro et du Centre Commercial AUCHAN. Accès routier aisé. Bonne desserte par transports en commun.
CBRE TOULOUSE vous propose des bureaux à louer dans un immeuble de bon standing.
Accès immédiat par la rocade Est (sortie n° 15 - Route de Lavaur).
Lignes de bus 51 - 72 - 102 et 103.
À Proximité immédiate du Terminus de la ligne A du métro.
Impôt Foncier : 25 €/m²/an, en sus
Régime Fiscal : T.V.A.
Dépôt de garantie : 3 mois de loyer HT/HC
Honoraires : 15% (+TVA) du loyer annuel HT HC à la charge du preneur
Information sur le Bail :
Loyer parkings sous-sol : 1000.00 euros HT/ place/an Loyer parkings extérieurs : 350.00 euros HT/ place/an Loyer et charges payables par trimestre d'avance
Prestations :
Accessibilité:
Route Accès immédiat par la rocade Est (sortie n° 15 ) Route de Lavaur).
Bus Lignes 51 - 72 - 102 et 103
Metro À Proximité immédiate du Terminus de la ligne A du métro.
Les informations sur les risques auxquels ce bien est exposé sont disponibles sur le site Géorisques : www.georisques.gouv.fr
CBRE TOULOUSE vous propose des bureaux à louer dans un immeuble de bon standing.
Accès immédiat par la rocade Est (sortie n° 15 - Route de Lavaur).
Lignes de bus 51 - 72 - 102 et 103.
À Proximité immédiate du Terminus de la ligne A du métro.
| Étage | Type | Surfaces | Dispo | Loyer | Charges | Type de bailRév. annuelle |
|---|---|---|---|---|---|---|
| RDC | Bureaux | 437 | Immédiate | 140 m²/an HT HC | 15,71 HT/m²/an | 3-6-9 ansIndice ILAT |
Impôt Foncier : 25 €/m²/an, en sus
Régime Fiscal : T.V.A.
Dépôt de garantie : 3 mois de loyer HT/HC
Honoraires : 15% (+TVA) du loyer annuel HT HC à la charge du preneur
Information sur le Bail :
Loyer parkings sous-sol : 1000.00 euros HT/ place/an Loyer parkings extérieurs : 350.00 euros HT/ place/an Loyer et charges payables par trimestre d'avance
Prestations :
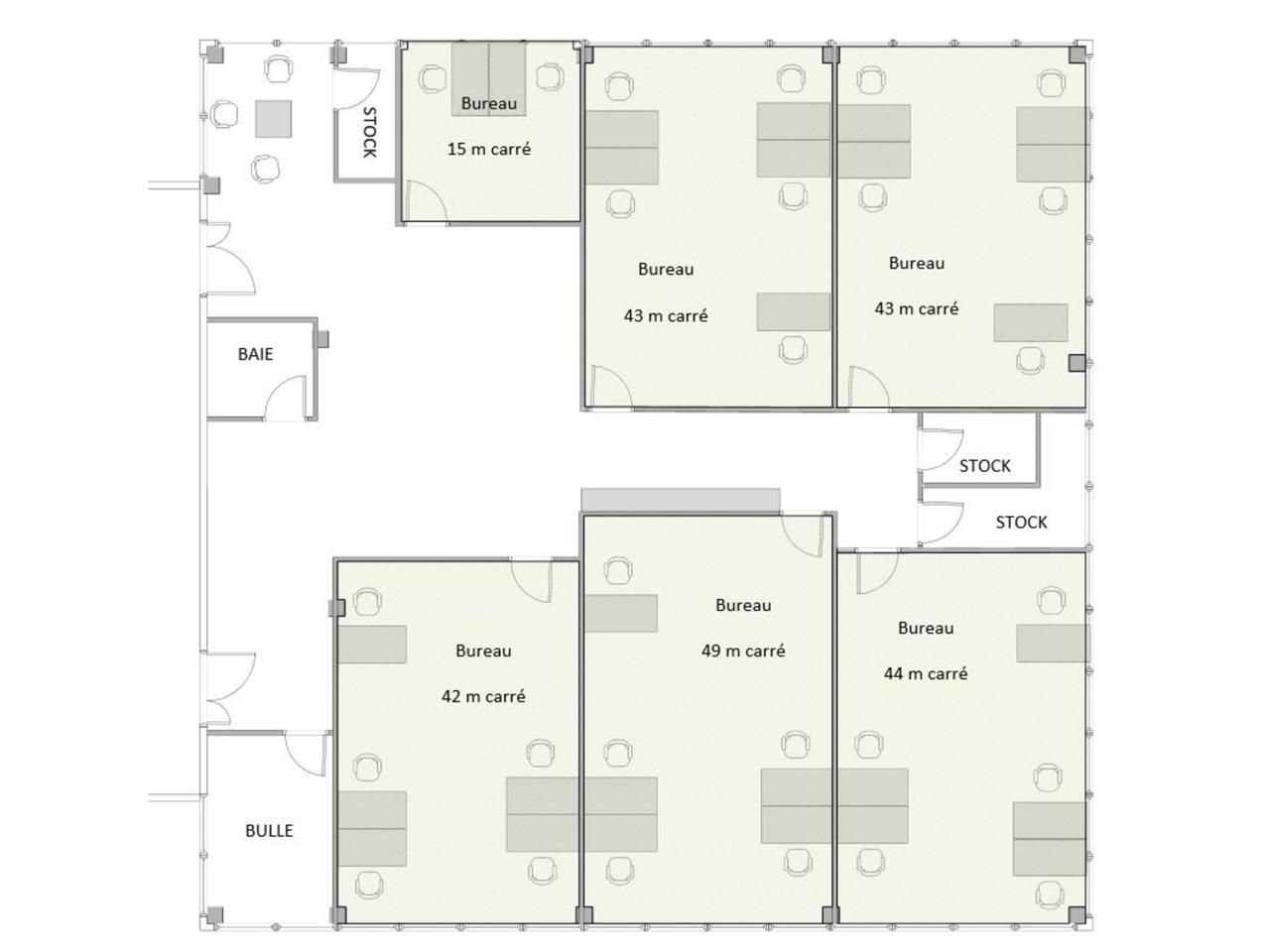
- Au RdC du Bâtiment B.
- Locaux livrés déjà cloisonnés et climatisés.
- Emplacements de voitures privatifs :
- 2 extérieurs et 13 en sous-sol.
- Surface RDC : 437 m²
Accessibilité:
Route Accès immédiat par la rocade Est (sortie n° 15 ) Route de Lavaur).
Bus Lignes 51 - 72 - 102 et 103
Metro À Proximité immédiate du Terminus de la ligne A du métro.
Les informations sur les risques auxquels ce bien est exposé sont disponibles sur le site Géorisques : www.georisques.gouv.fr
Voir plus
Afficher les consommations énergétiques
Favoris
Exporter
Appeler
Contacter
Signaler cette annonce










